EasyManua.ls Logo

Lenze EPM-T1 Series - Page 56

Lenze EPM-T1 Series
544 pages
To Next Page IconTo Next Page
To Next Page IconTo Next Page
To Previous Page IconTo Previous Page
To Previous Page IconTo Previous Page
Loading...
8×digital output 1A
4
The modular system
4.9
L
4.9−2
EDSPM−TXXX−9.0−11/2009
DO 8xDC24V 1A
.0
L+
.1
.2
.3
.4
.5
.6
.7
F
1
2
3
4
5
6
7
8
9
L
10
EPM T220 1A
1
2
0
3
1
2
3
4
5
6
7
8
9
10
.
Z
Z
Z
Z
Z
Z
Z
Z
+
DC 24 V
(DC 18
…35V)
epm−t017 epm−t016
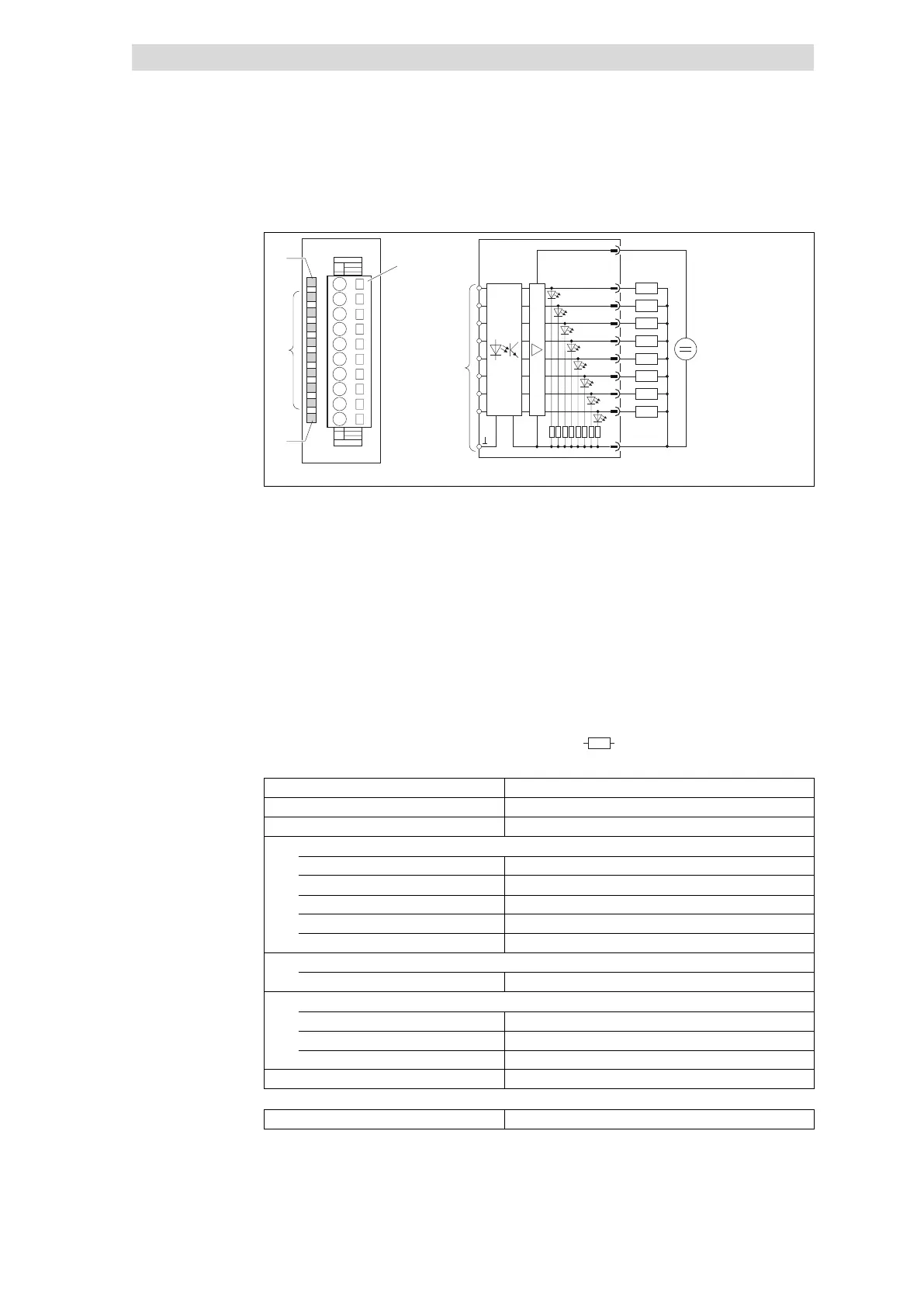
Fig. 4.9−2 Front view and connection of 8×digital output 1A
Status display L+; LED (yellow) is lit
when a supply voltage is applied
Terminal strip assignment
details
1 DC 24 V supply voltage
2 Digital output A.0
Status display .0 ... .7; LED (green) is
lit when the corresponding output is
triggered
3 Digital output A.1
4 Digital output A.2
5 Digital output A.3
Status display F; LED (red) is lit in
case of overload, overheating or
short circuit
6 Digital output A.4
7 Digital output A.5
8 Digital output A.6
9 Digital output A.7
10 GND (reference potential)
Connection to backplane bus
Z
Load
Type
8×digital output 1A
Voltage supply DC 5 V / 50 mA (via backplane bus)
Connectable cable cross−section £ 2.5 mm
2
(³ AWG 14)
Digital output data
Rated load voltage DC 24 V (DC 18 ... 35 V)
Number of outputs 8
Max. output current per output 1 A (sustained short−circuit−proof)
Delay time < 1 ms
Electrical isolation from backplane bus Yes, via optocouplers
Communication
Output data 1 byte
Dimensions
Width 25.4 mm
Height 76.0 mm
Depth 76.0 mm
Weight 50 g
Order designation EPM−T220
Status display and terminal
assignment
Technical data

Table of Contents

Related product manuals