EasyManua.ls Logo

Maxsys PC4020 - 2.3.3 How to Determine Line Loss; 2.3.4 Step by Step Procedure for Calculating Line Loss

Maxsys PC4020
84 pages
Print Icon
To Next Page IconTo Next Page
To Next Page IconTo Next Page
To Previous Page IconTo Previous Page
To Previous Page IconTo Previous Page
Loading...
4
Four wire runs at 1000'/305m each
Six wire runs at 666'/203m each
Eight wire runs at 500'/152m each
10 wire runs at 400'/122m each etc…
NOTE: Contact the wire manufacturer for the capacitance ratings of
the wire being used.
PC4204/PC4204CX Power Supply
PC4204/PC4204CX power supply modules are required to power
additional modules and devices when the total current from the
main panel is insufficient. A PC4204/PC4204CX should also be
used if excessive line loss is encountered.
PC4204/PC4204CX Current Requirement
AUX - 1.0A available for devices connected to the AUX terminal,
including devices connected to relay outputs and modules con
-
nected for Combus repower (see 2.5 ”Combus Operation and
Wiring).
Combus Repower
Only Relay 1 on the PC4204/PC4204CX can be used for Combus
repower. The Combus must be wired to the PC4204/PC4204CX
according to the following diagram for Combus repower:
PC4204
PC4204CX
IMPORTANT NOTE: Do not use any power supply other than the
PC4204/PC4204CX to repower the Combus. In the event of a power
surge or transient, a module may lock up and cease to communicate
with the control panel. If the panel loses communication with the
module, it will initiate a module reset and will power down the Com
-
bus for five seconds in an attempt to reset the problem module. After
five seconds, the panel will reapply power to the Combus and the
problem module should begin to operate as intended.
NOTE: If a power supply other than the PC4204/PC4204CX is used,
the Combus repower function will not operate as intended.
NOTE: New versions of the PC4204/PC4204CX power supply mod-
ule have a jumper marked ‘J1’. Ensure that this jumper is configured
for ’Combus Relay’. Otherwise, the power reset function will not
operate. For more information regarding the PC4204/PC4204CX,
please refer to the PC4204/PC4204CX Installation Instructions.
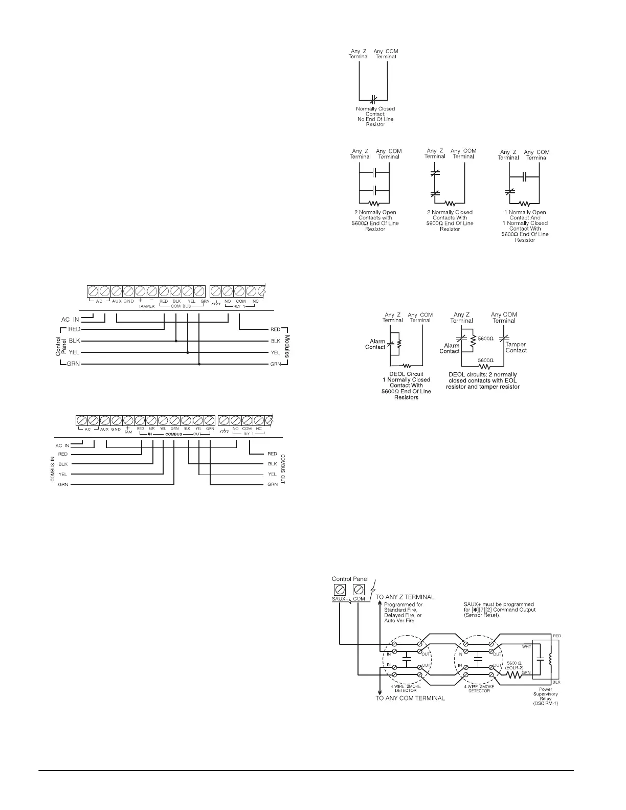
2.6 Zone Wiring
Zones on the system are wired according to the diagrams below.
Once you have selected which type of zone supervision you
require, you must program the ’Zone Supervision’ section. See
5.1 ”Zone Supervision’ for instructions.
NOTE: Fire, LINKS Supervisory, LINKS Answer, AC Delay or
Forced Answer zones always use single EOL supervision, regardless
of the programmed zone supervision.
No End of Line (No EOL)
All No EOL zones are normally closed loops. The zone will be
violated when it is open.
Single End of Line (EOL)
All Single EOL zones have a 5600 resistor
across them. If the zone is shorted or open, it
will be violated. Resistors should always be
placed at the device end of the wire run.
If programmed as a fire or waterflow zone,
the open zone will generate a trouble condi
-
tion and the short will generate an alarm.
Double End of Line (DEOL)
All Double EOL zones have two 5600 resistors across them.
DEOL loops will allow the panel to detect zone faults, zone tam
-
pers, violated zones and restored zones. Resistors should always
be placed at the device end of the wire run.
NOTE: Only normally closed detection devices can be used with this
type of zone supervision. Only one normally closed contact can be
connected to each zone; multiple detection devices/ ontacts on one
loop are not allowed, the tamper condition will not be monitored.
2.7 Specialized Zone Wiring
Some zones require wiring configurations unique to the selected
zone type. These zones are listed below. For information regard
-
ing the various zone types, please see 5.4 ”Zone Programming’.
Fire Zone
This zone type uses normally open contacts. The zone will initiate a
fire alarm when the loop is shorted (contacts close). A Fire Zone
trouble will be generated when the loop is opened (wire break).
Typically, fire alarm initiating contacts originate from 4-wire smoke
detectors. These types of detectors must be wired as shown in the
diagram below.
The power for the 4-wire detectors must be supervised with an
end-of-line relay (RM-1). The contacts of that relay are wired in
series with the zone end-of-line resistor. With the relay energized,
the relay contacts are closed and the zone is normal. If the power
Wiring for Combus Repower and Regeneration

Table of Contents

Other manuals for Maxsys PC4020