EasyManua.ls Logo

Minebea CSD-581-15 - Page 33

Default Icon
122 pages
Print Icon
To Next Page IconTo Next Page
To Next Page IconTo Next Page
To Previous Page IconTo Previous Page
To Previous Page IconTo Previous Page
Loading...
13
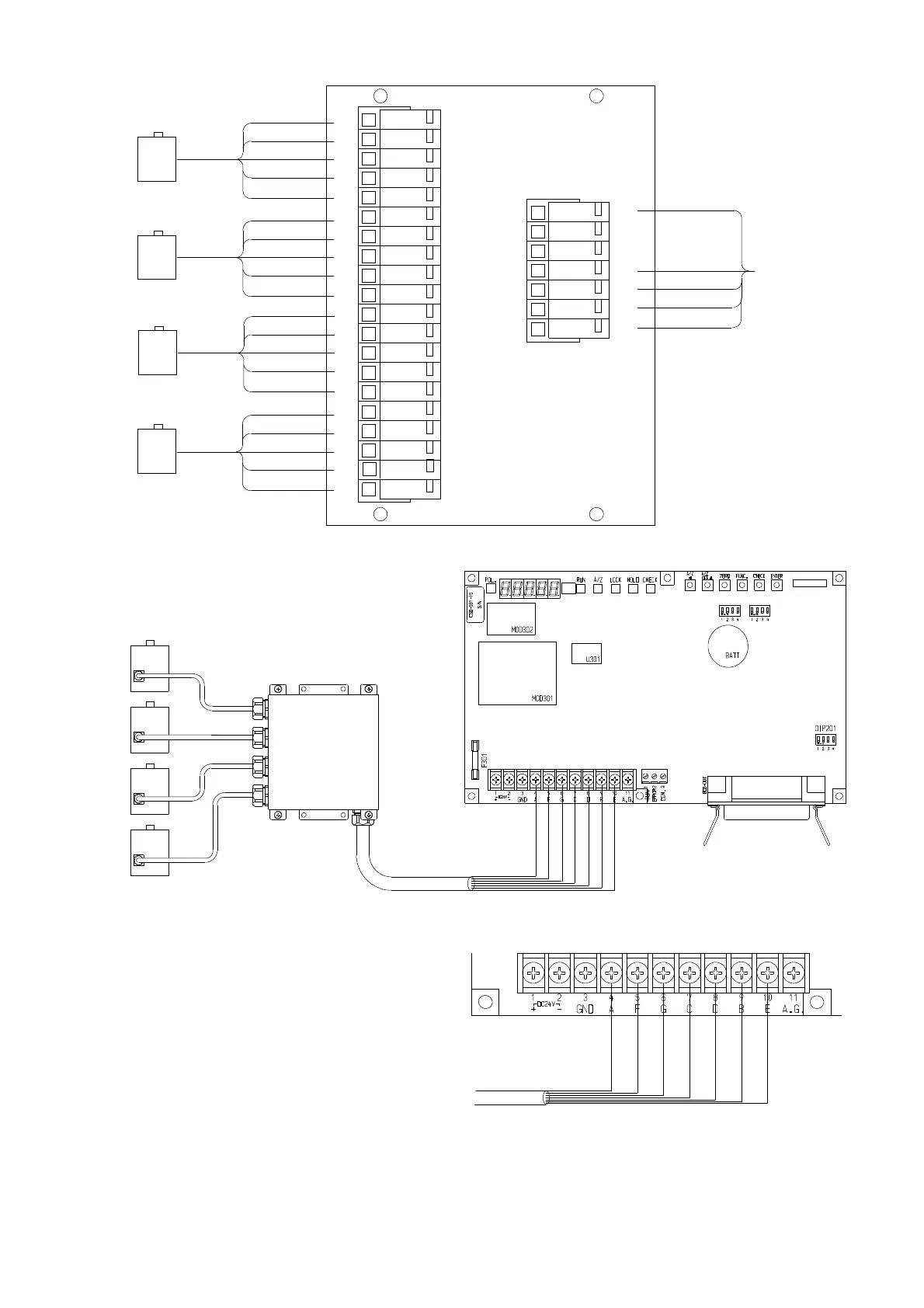
B−307 Internal terminal connections
To
CSD−581−15
WHT
RED
GRN
BLU
YEL(shield)
1W
1R
1G
1B
1Y
WHT
RED
GRN
BLU
YEL(shield)
2W
2R
2G
2B
2Y
WHT
RED
GRN
BLU
YEL(shield)
3W
3R
3G
3B
3Y
WHT
RED
GRN
BLU
YEL(shield)
4W
4R
4G
4B
4Y
RD
OR
BK
WH
GN
BL
YE
WHT
RED
GRN
BLU
YEL(shield)
ii) In case of application of CAB−501(6 cores cable)
3 (Length of CAB−501 should be
100 m totally.)
B−307
Junction box
CAB−501
RED
WHT
1GRN
1BLU
Shield
ORN
BLK
Enlarged figure for connecting section
RED
WHT
1BLU
Shield
1GRN
BLK
ORN
CN202
DIP202
DIP203

Table of Contents

Related product manuals