EasyManua.ls Logo

Mitsubishi Electric Q170MSCPU-S1 - Checking Serial Number and Operating System Software Version; Checking Serial Number

Mitsubishi Electric Q170MSCPU-S1
264 pages
To Next Page IconTo Next Page
To Next Page IconTo Next Page
To Previous Page IconTo Previous Page
To Previous Page IconTo Previous Page
Loading...
2 - 12
2 SYSTEM CONFIGURATION
2.2 Checking Serial Number and Operating System Software Version
Checking for the serial number of Motion controller and Motion module, and the
operating system software version is described below.
2.2.1 Checking serial number
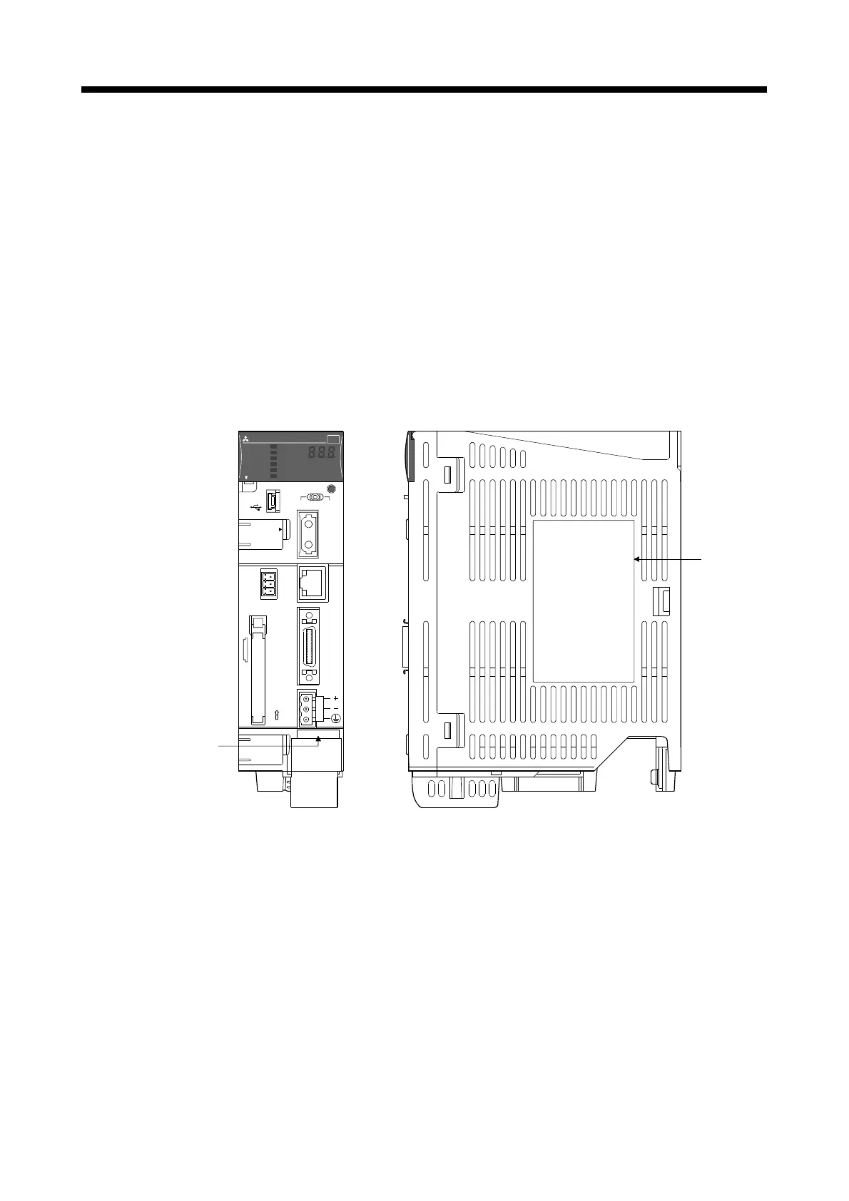
(1) Motion controller (Q170MSCPU)
(a) Rating plate
The rating plate is situated on the side face of the Motion controller.
The SERIAL line displays the Motion controller serial No.
(b) Front of the Motion controller
The serial number is displayed on the front of the Motion controller.
USB
POWER
STOPRESET RUN
CN1
EXT.IO
24VDC
EJECT
OUT
FRONT
CARD
RS-232
MODE
RUN
ERR.
USER
BAT.
BOOT
PULL
PERIPHERAL I/F
EMI
NC
EMI.COM
MITSUBISHI Q170MSCPU
A32659999
Rating plate
Serial number
(c) System monitor (product information list)
The serial number can be checked on the system monitor screen in
GX Works2. (Refer to Section 2.2.2.)

Table of Contents

Other manuals for Mitsubishi Electric Q170MSCPU-S1

Related product manuals