EasyManua.ls Logo

Miyachi IPB-5000A - Outline Drawing; IPB-5000 A-00-00;01;03;04

Miyachi IPB-5000A
119 pages
Print Icon
To Next Page IconTo Next Page
To Next Page IconTo Next Page
To Previous Page IconTo Previous Page
To Previous Page IconTo Previous Page
Loading...
IPB-5000A
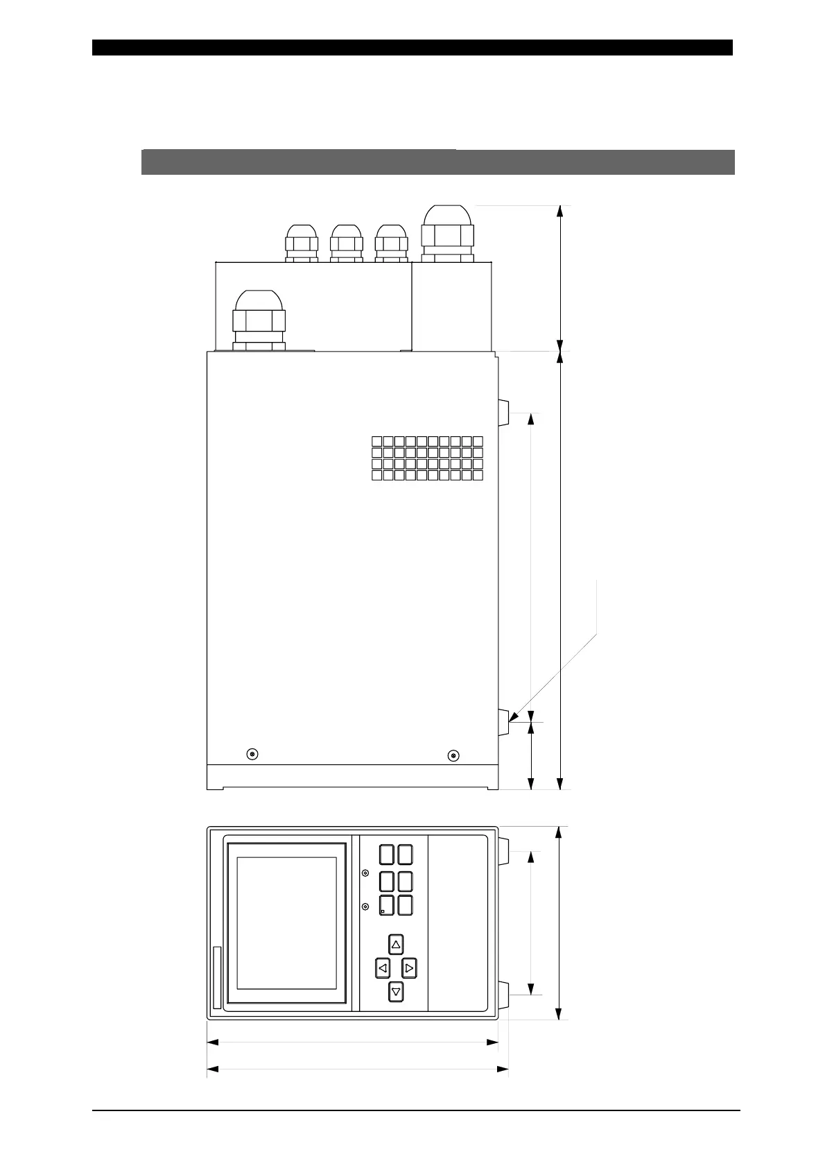
13. Outline Drawing
13-1
13. Outline Drawing
(1) IPB-5000A-00-00/01/03/04
Dimensions in mm
POWERSTART
IPB-5000A
CURSOR
WELD MENU RESET
ENTER
WELDING POWER SUPPLY
60
4-M4
(130)
275
390
128
172
260
269

Table of Contents

Related product manuals