EasyManua.ls Logo

Myray RX DC - INCORPORATED VERSION

Myray RX DC
Print Icon
To Next Page IconTo Next Page
To Next Page IconTo Next Page
To Previous Page IconTo Previous Page
To Previous Page IconTo Previous Page
Loading...
82
OPERATOR'S MANUAL
EN
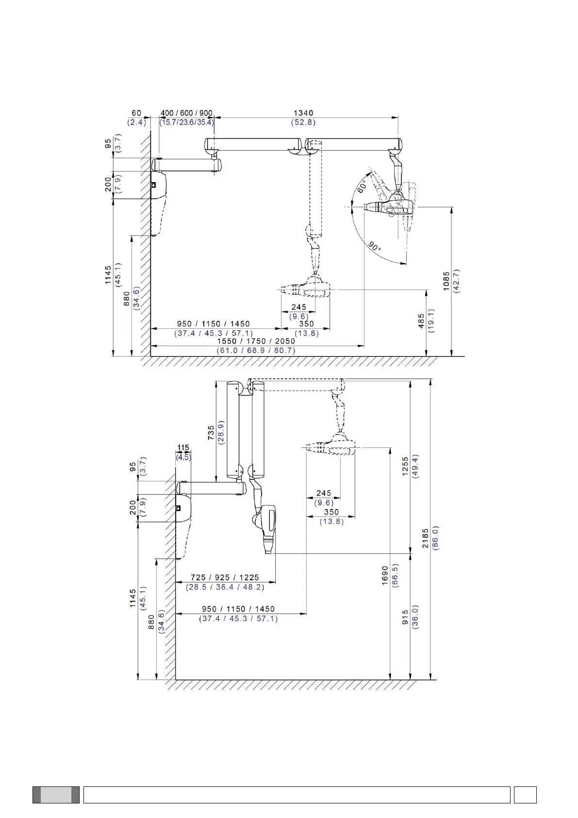
11.1. WALL-MOUNTED VERSION
All dimensions are expressed in millimeters (inches).

Table of Contents

Other manuals for Myray RX DC

Related product manuals