EasyManua.ls Logo

NDC BenchMike Pro - Drawings; Model 2025

NDC BenchMike Pro
146 pages
Print Icon
To Next Page IconTo Next Page
To Next Page IconTo Next Page
To Previous Page IconTo Previous Page
To Previous Page IconTo Previous Page
Loading...
8-4 BenchMike Pro 2025/2050 & Z-Mike Pro 4025/4050 Instruction Handbook: Specifications
Laser beam spot size
250 µm (0.010 in.)
Laser beam velocity
100 m/sec. (4,000 inch/sec.)
Notes:
1
Specifications valid after a warm-up period of four hours in a stable temperature environment.
2
Specified repeatability is the maximum deviation (±) from the mean value of 90 consecutive readings, with 2-
second averaging. (A 2-second averaging reading is the average of 200 single scans.) Test conditions include
using a gauge pin with a low coefficient of expansion, without removing the gauge pin and with minimal air flow
around the working area of the BenchMike Pro.
3
Specified linearity confirmed using standard factory calibration @ 68 °F at 50% relative humidity. Testing condi-
tions include a measured part composed of material with low coefficient of expansion, with minimal air flow
around the working area of the BenchMike Pro. The BenchMike Pro must be linearized by the factory yearly to
maintain this specification.
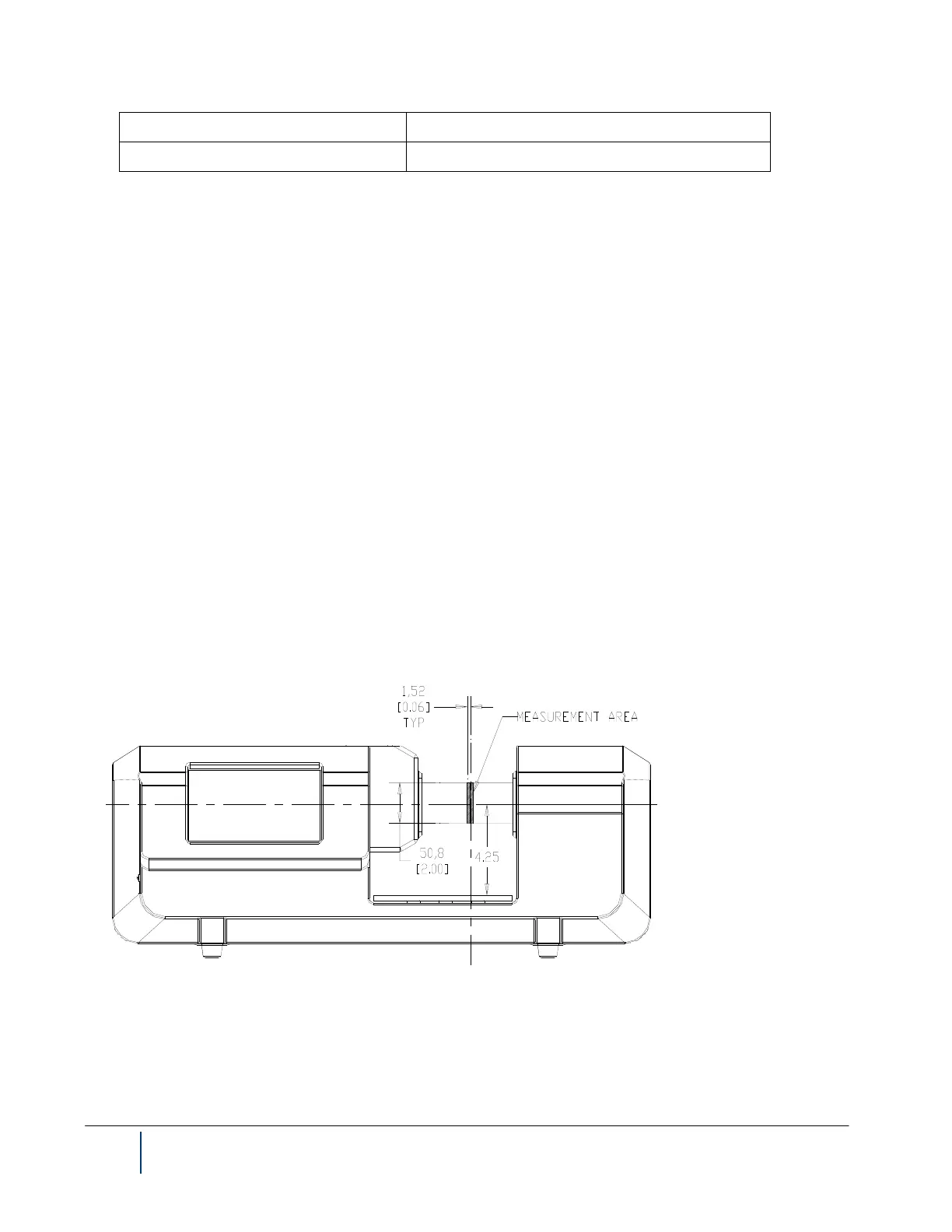
8.3 Drawings
The drawings below indicate the measurement area of both models.
8.3.1 Model 2025

Table of Contents

Related product manuals