EasyManua.ls Logo

Ormazabal ekor.rps - Page 14

Ormazabal ekor.rps
144 pages
Print Icon
To Next Page IconTo Next Page
To Next Page IconTo Next Page
To Previous Page IconTo Previous Page
To Previous Page IconTo Previous Page
Loading...
IG-150-EN version 04; 03/10/16
14
General description General instructions
ekor.rps
C
B
A
Front
RS232
Port COM1
X2
32
31
30
29
27
25
23
21
X1
19
17
10
9
8
7
6
5
4
3
2
1
11
10
9
8
7
6
5
4
3
2
1
16
15
14
13
12
X3
11
10
9
8
7
6
5
4
3
2
1
XFA
23
Power Supply Vdc
+-
ED16
ED15
ED14
ED13
ED12
ED11
ED10
ED9
ED6
ED5
ED4
ED3
ED2
ED1
0V 5
Tx 3
Rx 2
SD 6
SD 5
SD 4
SD 3
SD 2
SD 1
DC/DC
T1 (IA)
T2 (IB)
T3 (IC)
T4 (IN)
T6 (VA)
T7 (VB)
T8 (VC)
A
X1
ED17
X3
BC
CBA
52
T5 (INS)
General trip
Close
Phase trip
Ground trip
Free
Free
52 state
Close command
Open command
ED7
ED8
12
13
14
15
16
IRIG-B
+
-
11
13
12
SD 7
25
SD 14
26
14
SD 8
SD 9
SD 10
SD 11
SD 12
SD 13
23
24
22
21
19
20
17
18
15
16
X2
18
20
22
24
26
28
Free
Free
Free
Synchronization
OPTIONAL
HW status
1
OPTIONAL
Free
Free
or Ethernet
Rear
Port COM2
Rear
Port COM1
OPTIONAL
RJ45
4
6
8
7
5
1
2
3
Tx+
Tx -
Rx+
Rx-
RS485
3
2
4
1
5
+
-
GND
Glass O.F.
Plastic O.F.
Tx
Rx
0V 5
RTS 7
Tx 3
DTR 4
Rx 2
RS232
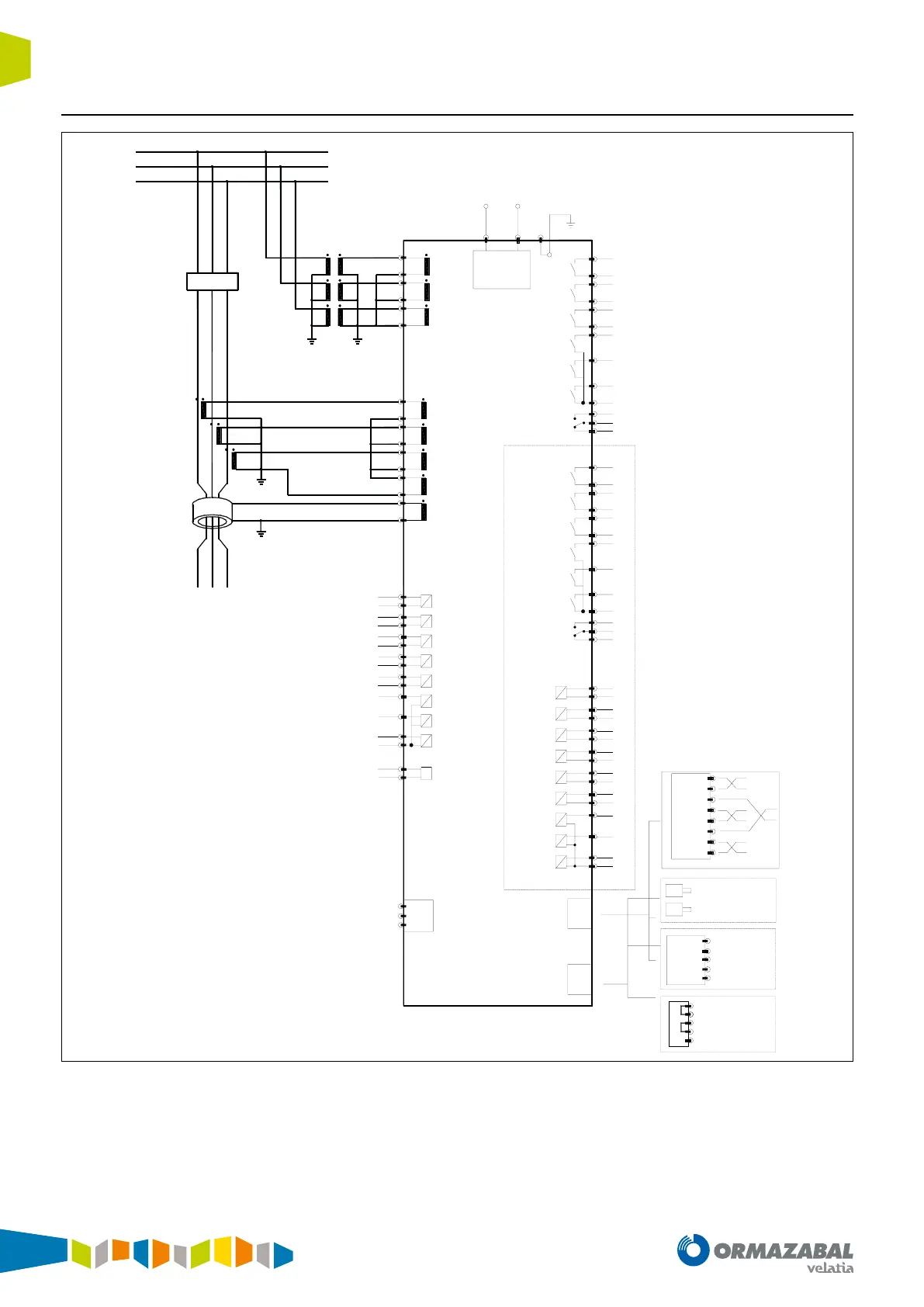
Figure 1.3. nc model

Table of Contents

Related product manuals