EasyManua.ls Logo

Panasonic SA-PT750PC - Page 110

Panasonic SA-PT750PC
155 pages
Print Icon
To Next Page IconTo Next Page
To Next Page IconTo Next Page
To Previous Page IconTo Previous Page
To Previous Page IconTo Previous Page
Loading...
C
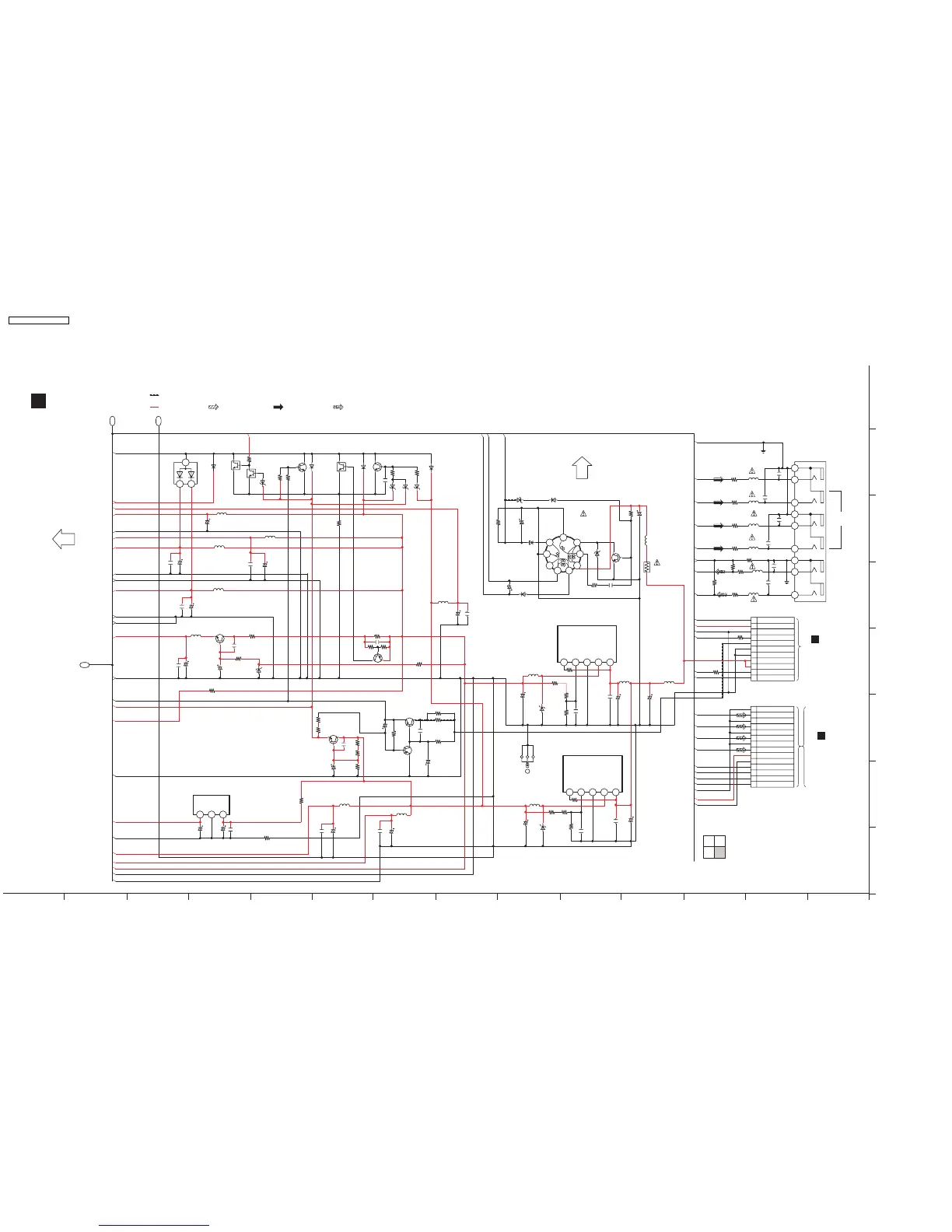
SCHEMATIC DIAGRAM - 10
MAIN CIRCUIT
C13
C14
C15
SA-PT750P/PC MAIN CIRCUIT
1/4 2/4
3/4 4/4
TO MAIN
SECTION (3/4)
TO MAIN
SECTION (2/4)
I
TO
SMPS CIRCUIT
(CN5802)
IN SCHEMATIC
DIAGRAM - 15
G
TO
WIRELESS ADAPTER
CIRCUIT (CN6300)
IN SCHEMATIC
DIAGRAM - 18
:+B SIGNAL LINE :DVD VIDEO LINE
:MAIN SIGNAL LINE
:-B SIGNAL LINE
:AUX SIGNAL LINE
15 16 17 18 19 20 21 22 23 24 25 26 27 28
I
J
L
M
N
P
O
K
DC_DET1
R2946
33
L2908
G0A200D00002
C2940
0.01
C2925
6.3V220
C2932
16V100
C2926
0.1
G0A220GA0026
L2913
C2977
0.1
C2976
6.3V100
B1BACG000023
Q2904
+2.7V REGULATOR
G0A220GA0026
L2912
C2924
0.1
C2933
6.3V100
D2914
B0ACCK000005
C2946
6.3V100
D2915
B0ACCK000005
W2657
0
Q2909
Q2909
B1ABCF000176
B0BC5R000009
D2949
39KR2937
R2909
39K
B1GBCFJJ0051
Q2922 - Q2924
DC DETECT DC DETECT DC DETECT
Q2924
Q2923
33KR2938
3
12
D2943
B0ADCJ000020
-7V
R2902
47
DC_DET2
+18V
FP2902
SYNC
R2935
4.7K
C2900
35V33
G0A220GA0026
L2910
5.6K
R2900
D2901
B0BC035A0007
B1BABK000001
PSAVE CONTROL
Q2900
Q2900
TRANSFORMER
SWITCHING
C2903
3900
PCONT
AMBP
4.7K
R2930
L2909
G0A200D00002
25V1000
C2901
R2010
W2566
0
1K
6
8
9
7
2
1
4
5
3
10
11
CN2004
0.01
C2939
C2955
25V220
L2911
G0A200D00002
L2906 G0A200D00002
0.01
C2915
L2907
G0A101EA0017
6.3V220
C2916
B0ACCK000005
D2945
D2945
D2944
B0ACCK000005
B1ABCF000176
Q2919
Q2919
4.7K
R2948
R2947
4.7K
R2926
47K
D2948
B0BC7R500001
D2947
B0BC010A0007
D2947
D2948
D2946
B0BC7R500001
D2946
Q2922
C2970
1
B0JAME000029
D2906
C2918
16V100
B0EAMM000057
D2903
D2908
B0EAMM000057
53
4
8
7
62
1
9
T2900
G4D1A0000117
D2909
MAZ82400HL
C2904
35V33
D2904
B0JCPD000025
(SM330A)
R2936
470
32 1
E2900
1K
R2919
D2912
B0BC3R400001
R2908
470
R2907
2.7K
C2908
16V100
1.5
R2973
C2913
16V100
470
R2953
3.9K
R2952
R2954
47
C2910
0.01
47
R2913
10V33
C2914
B1BCCG000002
Q2901
R2915
2.7K
R2914
3.9K
B1ADCF000001
Q2902
B1BACG000023
Q2903
R2905
39
C2906
0.01
G0C220JA0055
L2914
16V100
C2963
C2962
0.1
R2921
390
10K
R2976
R2975
15K
+5.3V
C2922
6.3V820P
Q2921
Q2921
B1ADCF000001
DC DETECT
G0A101G00022
L2902
1.5
R2925
C2975
0.1
R2927
1.5
R2920
3.9K
42135
C0DAAYY00042
IC2900
C2920
1000P
42135
C0DAAMH00012
IC2903
-13V
GNDE
SYS6V
SW+5V
SW+5V
R2813
75
L2805
J0JBC0000015
CYOUT
CROUT
VOUT
VGND
R2816
75
C2826
100P
G0A100HA0023
L2904
213
IC2901
C0DAGHG00002
G0A101G00022
L2903
R2906
6.8K
R2923
1.2K
C2923
25V220
L2905
G0A100HA0023
1K
R2922
D2913
B0JCPD000025
0.01
C2927
10V680P
C2930
C2929
0.01
C2936
16V220
C2951
16V100
16V100
C2952
0.1
C2953
0
W2542
C2935
0.01
C2938
16V220
C2937
0.01
C+9V
C+9V
DGND
DGND
DGND
AGND
VGND
C2827
100P
10K
R2264
AUX-LCH
8
9
11
12
10
2
5
6
3
4
114
7
14 1
13
CN2003
WL_SUBW_LCH
FX_DI
FX_DO
FX_CLK
WL_SUBW_RCH
FX_DET1
CH2_L_OUT
CH2_R_OUT
R2812
75
10K
R2164
0
W2567
R2809
75
+7V
CBOUT
AGND
AUX-RCH
DVD_2R7
DVD_A+5V
DVD_ADAC+5V
DVD_D+5V
XM+5.3V
TU+9V
R2265
10K
R2165
10K
J0JBC0000015
L2802
C2823
100P
L2201
J0JBC0000015
L2101
J0JBC0000015
C2164
220P
C2264
220P
5
6
3
1
2
4
7
8
9
JK2001
J0JBC0000015
L2804
L2803
J0JBC0000015
C2825
100P
M+9V
RF+5V
AGND
RF+5V
0.09A
0.8A
0.6A
VIDEO OUT
COMPONENT
VIDEO OUT
CHASSIS GND
PCONT
AMBP
+18V
DC_DET
GND
GND
+18V
-13V
OUT
GND
VCC
VIN
+5V REGULATOR
GND
VOUT
0.22A
0.6A
0.6A
0.25A
0.02A
0.22A
0.6A
INV
+9V
STBY
GND
VCC
SYS6VGND
SYS6V
SYNC
OUT
STBY
SWITCHING REGULATOR
SWITCHING REGULATOR
0.2A
0.39A
INV
[RCH]
AUX
5V
SCL
5V_GND
5V_GND
AGND
AGND
AGND
AGND
CH2_L_OUT
AGND
WM_DET
CH1_R_OUT
CH2_R_OUT
CH1_L_OUT
MAINSETRX(SDI)
MAINSET TX(SDO)
[LCH]
[PB]
[PR]
[Y]
5V_GND
DOCK5VGND
DOCK+5.3V
ADGND
F+
F-
-VP
5A
W2578
0
MGND
+7V REGULATOR
-7V REGULATOR
VOLTAGE CONTROL
SA-PT750P / SA-PT750PC
110

Table of Contents