EasyManua.ls Logo

Panasonic SA-PT750PC - DVD Interface

Panasonic SA-PT750PC
155 pages
Print Icon
To Next Page IconTo Next Page
To Next Page IconTo Next Page
To Previous Page IconTo Previous Page
To Previous Page IconTo Previous Page
Loading...
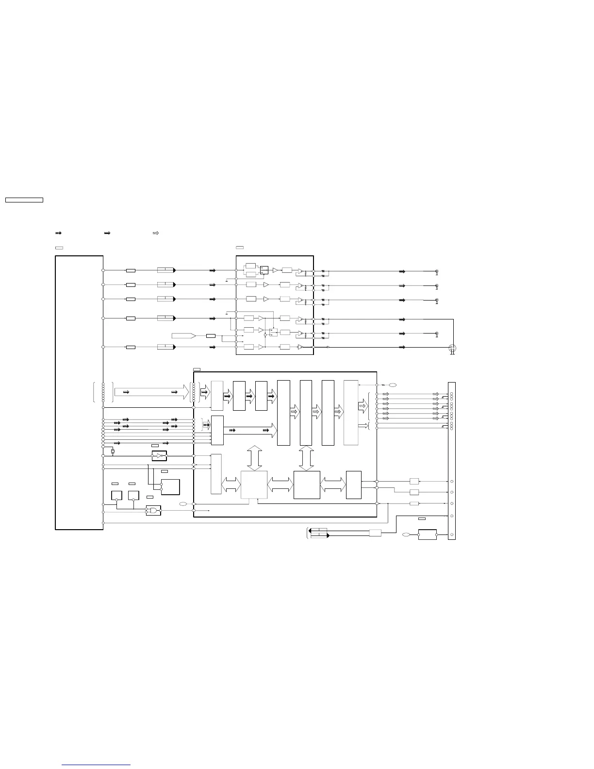
18.4. DVD Interface
SCLOCK
VCLK
X8621
OSCO
OSCI
NRST
TRCDATA2
P1
P2
FG
HDMI TRANSMITTER
MN864702
HDMI
CONNECTOR
P3901
IC8001
DV5.0 LSI
MN2DS0018VP
61
156
155
70
5
6
1
1
79
46
47
71
PCLK IN
HCLK
HSDA
HSCL
NRESET
107
NIRQ
HPD
SDA
SCL
10
119
120
121
12
14
16
18
20
22
24
8
TXCM
TXCP
TX0M
TX0P
TX1M
TX1P
TX2M
TX2P
EXT SWING
D2-
D2 GND
D2+
D1-
D1 GND
D1+
D0-
D0 GND
D0+
CLK-
CLK GND
HDMISDA
HDMISCL
HOTPLG
CEC
18
+ 5V
CLK+
OUT
1
OUT
RESET
C0EBA0000029
C0JBAB000907
( Not Supplied)
SDA
SDA
HOTPLG
TXRST
SCL
SCL
RESET
C0EBE0000456
IC8606
16M EEPROM
IC8611
AND GATE
C0JBAA000501
IC8901
INVERTER GATE
CR/PR/R
CB/PB/B
Y/PY/G
4
C IN
8
5
14
Y IN
MUTE 1
MUTE 2
CR IN
15
13
CB IN
CY IN
11
C OUT
32
C
Y
S-VIDEO OUT
JK2001
IC2801
VIDEO BUFFER
C9ZB00000461
10
VIDEO OUT
JK2001
PR(BLUE)
JK2001
PB(GREEN)
JK2001
Y(RED)
JK2001
BIAS
6dB
LPF
6 MHz
CLAMP
6dB
LPF
6 MHz
LPF
6 MHz
BIAS
6dB
LPF
12 MHz
BIAS
6dB
LPF
12 MHz
6dB
LPF
12 MHz
CLAMP
+
CY OUT
CY SAG
23
24
75
CR OUT
CR SAG
17
18
75
Y OUT
Y SAG
26
27
75
V OUT
V SAG
29
30
75
CB OUT
CB SAG
20
21
75
75
BIAS
6
CV IN
CLAMP
6dB
L
H
SEL
7
SEL
131
130
L
H
C
Y
129
138
DAC1 OUT
DAC2 OUT
DAC3 OUT
DAC4 OUT
DAC5 OUT
139
2
4
1
IC8601
IC3901
117
114
113
VMUTE
FROM
SYSTEM CONTROL
CEC CIRCUIT
Q3941,Q3942,Q3943
AMSDI0
AMSDI1
AMSDI2
AMSDI3
AMDAWS
AMDACL
AUDIO I/F
VIDEO I/F
DRV4
SRCK
LRCK
DRV3
DRV5
ADOUT
38
37
36
35
41
151
62
63
149
150
64
45
9
10
11
12
13
14
17
18
EXDT15
EXDT7
EXDT14
EXDT6
EXDT13
EXDT15
EXDT12
EXDT4
DVOUT0
DVOUT1
DVOUT2
DVOUT3
DVOUT4
DVOUT5
DVOUT6
DVOUT7
D7
D6
D5
D4
D3
D2
D1
D0
87
88
89
90
92
93
94
95
AMRX
AMDAM
DACCK
IEC OUT
33
43
148
152
UP
CONVERTER
&
SQUEEZE
COLOR
SPACE
CONVERTER
AV
CONTROLLER
HDCP
CIPHER /
ENCRYPTOR
TDMS
ENCODER
TDMS
TRANSMITTER
CONFIGURATION
REGISTER
DDC I/F
D+3.3V
D+3.3V
CEC IN
CEC OUT
CONFIGURATION
REGISTER
I2C I/F
LEVEL
SHIFTER
LEVEL
SHIFTER
BUFFER
Q3902
Q3903
Q3901
1
2
3
4
5
6
7
8
9
10
11
12
16
15
19
13
IC8701
BUFFER
Q8331
BUFFER
Q8335
BUFFER
Q8341
BUFFER
Q8321
BUFFER
Q8325
111
108
MUTING
Q2801
54
IN OUT
TERMINAL VOLTAGE
REGULATOR
IC3952
M + 9V
4
2
C0CBCDC00063
49
CN2001
FP8101
47
CN2001
FP8101
45
CN2001
FP8101
43
CN2001
FP8101
41
CN2001
FP8101
7
CN2010
5
FP3902
CN2010
FP3902
SYSTEM CONTROL
TO/FROM
: DVD
: DVD VIDEO SIGNAL LINE : MAIN SIGNAL LINE
AUDIO SIGNAL LINE
SA-PT750P/PC DVD INTERFACE BLOCK DIAGRAM
SA-PT750P / SA-PT750PC
94

Table of Contents