EasyManua.ls Logo

Panasonic SA-PT750PC - DVD (Video;Audio)

Panasonic SA-PT750PC
155 pages
Print Icon
To Next Page IconTo Next Page
To Next Page IconTo Next Page
To Previous Page IconTo Previous Page
To Previous Page IconTo Previous Page
Loading...
18.3. DVD (Video/Audio)
IC8651
32M FLASH MEMORY
ADDRESS
ADDRESS
DATA
OPTICAL PIC-UP UNIT
ADDRESS
MEMORY
DATA
MEMORY
IC8051
64M SDRAM
ADDRESS
MEMORY
DATA
MEMORY
CLK
NWE
NCAS
NRAS
NCS
A11
A10
A9
A8
A7
A6
A5
A4
A3
A2
A1
A0
DQ15
DQ14
DQ13
DQ12
DQ11
DQ10
DQ9
DQ8
DQ7
DQ6
DQ5
DQ4
DQ3
DQ2
DQ1
DQ0
38
16
17
18
19
35
22
34
33
32
31
30
29
26
25
24
23
53
51
50
48
47
45
44
42
13
11
10
8
7
5
4
2
MCK
NWE
NCAS
NRAS
NCSM
MA11
(DQM3)
MA10
MA9
MA8
MA7
MA6
MA5
MA4
MA3
MA2
MA1
MA0
MDQ15
MDQ14
MDQ13
MDQ12
MDQ11
MDQ10
MDQ9
MDQ8
MDQ7
MDQ6
MDQ5
MDQ4
MDQ3
MDQ2
MDQ1
MDQ0
IC8001
DV5.0 LSI
ADDRESS
ADDRESS / DATA
RFINP
VN1RF
VN2RF
VN3RF
VN4RF
RFINN
P6
P7
P8
53
55
INTERFACE
TO/FROM DVD
CPU CLOCK
CPU STATUS
CPU CMD
FP8101
2
CN2001
1
3
FP8101
CN2001
NRST
NEXOE
NEXCE
NEXWE
EXADR20
EXADR19
EXADR18
EXADR17
EXADR16
EXADT15
EXADT14
EXADT13
EXADT12
EXADT11
EXADT10
EXADT9
EXADT8
EXADT7
EXADT6
EXADT5
EXADT4
EXADT3
EXADT2
EXADT1
EXADT0
XRST
12
28
XOE
XCE
26
11
XWE
A20
10
9
A19
A18
16
17
A17
A16
48
1
A15
A14
2
3
A13
A12
4
5
A11
A10
6
7
A9
A8
8
18A7
A6 19
20A5
A4 21
22A3
A2 23
24A1
A0 25
45
DQ15
DQ14
43
41
DQ13
DQ12
39
36
DQ11
DQ10
34
32
DQ9
DQ8
30
DQ7
44
DQ6
42
DQ5
40
38
DQ4
DQ3
35
33
DQ2
31
DQ1
DQ0
29
100
212
14
FP8531
RFP
RFN
13
FP8531
42
41
40
39
38
37
36
29
28
27
26
25
24
23
22
21
35
34
30
45
31
213
214
70
160
162
164
168
170
172
176
178
177
175
171
169
201
203
207
209
208
206
202
200
198
199
192
190
189
188
194
181
185
167
163
161
151
TD(DVD)
19
TC(DVD)
18
20
TB(DVD)
TA(DVD)
21
95
96
97
98
99
IC9002
LATCH
LE
11
D8
9
D7
D6
8
7
D5
D4
6
5
D3
D2
4
3
D1
EXADT15
EXADT14
EXADT13
EXADT12
EXADT11
EXADT10
EXADT9
EXADT8
EXADT7
EXADT6
EXADT5
EXADT4
EXADT3
EXADT2
EXADT1
EXADT0
2
12
13
14
15
16
17
18
19
Q8
Q7
Q6
Q5
Q4
Q3
Q2
Q1
IC9001
LATCH
LE
11
D8
9
D7
D6
8
7
D5
D4
6
5
D3
D2
4
3
D1
EXADT7
EXADT6
EXADT5
EXADT4
EXADT3
EXADT2
EXADT1
EXADT0
EXADT7
EXADT6
EXADT5
EXADT4
EXADT3
EXADT2
EXADT1
EXADT0
2
12
13
14
15
16
17
18
19
Q8
Q7
Q6
Q5
Q4
Q3
Q2
Q1
1
2
4
54
FP8101
CN2001
62
151
63
64
150
149
58
215
148
57
76
FP8101
CN2001
39
FP8101
CN2001
37
FP8101
CN2001
35
FP8101
CN2001
33
FP8101
CN2001
27
FP8101
CN2001
25
23
FP8101
CN2001
A MUTE
QR8420
MUTING
OUTPUT AMP AND
LOW-PASS FILTER
OUTPUT AMP AND
C0JBAZ001251
C0JBAZ001251
AND GATE
AND GATE
IC8695
C0JBAA000502
IC8691
C0JBAA000502
6
13
12
11
7
8
SRCK
LRCK
DRV3
DRV4
DRV5
ADOUT
DATA1
DATA4
DATA3
DATA2
LRCK
BCK
4
3
2
DACCK
P11
STB DAC
P10
MD
5
TRC CLK
SCK
MC
MS
27
28
15
16
19
20
21
22
26
DVD MIX L
DVD MIX R
DVD FL
DVD FR
DVD CNT
SUBW
ZFLAG
MN2DS0018VP
IC8421
AUDIO DAC
C0FBBK000050
I/F
INPUT
SERIAL
CONTROLLER
FUNCTION
WITH
DIGITAL FILTER
OVERSAMPLING
4X/8X
MODULATOR
DELTA-SIGMA
MULTI-LEVEL
ENHANCED
LOW-PASS FILTER
OUTPUT AMP AND
DAC
LOW-PASS FILTER
OUTPUT AMP AND
DAC
LOW-PASS FILTER
OUTPUT AMP AND
DAC
LOW-PASS FILTER
OUTPUT AMP AND
DAC
LOW-PASS FILTER
OUTPUT AMP AND
DAC
V OUT5
V OUT4
V OUT3
V OUT2
V OUT1
LOW-PASS FILTER
DAC
OUTPUT AMP AND
DAC
LOW-PASS FILTER
DAC
ZERO2
V OUT8
V OUT7
V OUT6
MANAGER
CLOCK
SYSTEM
ZERO DETECT
CLOCK
SYSTEM
I/F
CONTROL
FUNCTION
RFKWMHB0G320
TO AUDIO
TO
SYSTEM CONTROL
C3ABPG000145
FP8531
FP8531
FP8531
FP8531
1
2
4
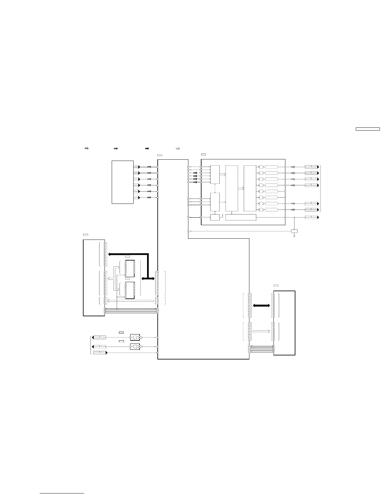
SA-PT750P/PC
DVD (VIDEO/AUDIO) BLOCK DIAGRAM
: DVD
: DVD VIDEO SIGNAL LINE : MAIN SIGNAL LINE
AUDIO SIGNAL LINE
: DVD RF SIGNAL LINE
SA-PT750P / SA-PT750PC
93

Table of Contents

Related product manuals