EasyManua.ls Logo

Panasonic SA-PT750PC - 17 Wiring Connection Diagram

Panasonic SA-PT750PC
155 pages
Print Icon
To Next Page IconTo Next Page
To Next Page IconTo Next Page
To Previous Page IconTo Previous Page
To Previous Page IconTo Previous Page
Loading...
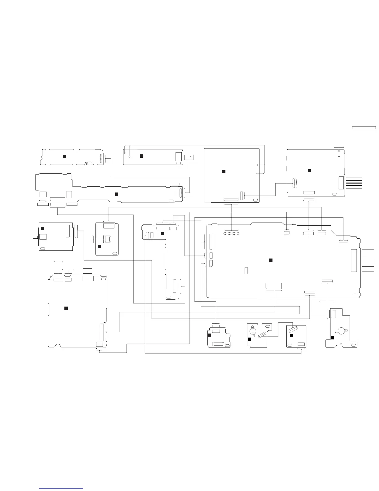
17 Wiring Connection Diagram
SA-PT750P/PC WIRING CONNECTION
AC IN
120V 60HZ
TO OPTICAL
PICKUP
TO
DOCK
TO SPINDLE
MOTOR ASS’Y
HEADPHONE
XM
MUSIC PORT
SENSOR
TO TUNER PACK UNIT
FRONT SPEAKER L
TO FAN UNIT
FRONT SPEAKER R
CENTER SPEAKER
SUBWOOFER
AUX
COMPONENT
VIDEO OUT
VIDEO OUT
FP8101
FP8251
FP8531
FP3902
1
25
226
1
5
2
6
1
50
17
P3901
23
22
21
20
19151051
HDMI AV
OUT
P5701
BLK
RED
AC-INLET P.C.B.
J
(SOLDER SIDE)
Z6900
PbF
CN7003
CN7004
CN7001
CN7002
K
TRAY P.C.B.
(SOLDER SIDE)
PbF
2
1
11
1
2
9
10
2
127
28
10
2
1
27
28
JK6801
JK6802
H6801
CN6902
E
PANEL P.C.B.
(SOLDER SIDE)
PbF
7
6
5
4
3
2
1
7
6
5
4
3
2
1
8
1
123
2
127
28
CN90
03
LOADING
MOTOR
LOADING
MOTOR P.C.B.
L
(SOLDER SIDE)
M
+
-
PbF
11
1
11
1
10
2
FC9101
TRAY
MOTOR
TRAY
MOTOR
P.C.B.
M
(SOLDER SIDE)
+
M
PbF
6
1
CN9102
FC9101
SENSOR
P.C.B.
N
(SOLDER SIDE)
PbF
6
1
1
1
10
2
JK1
FP1
B
XM MODULE P.C.B.
(SIDE:A)
PbF
4
3
2
1
5
67
1
2
16
17
CN8002
(OPTION
V.1)
CN8001
D
D-PORT P.C.B.
(SIDE:A)
PbF
PbF
112
24
23
2
1
H6901
F
KEY P.C.B.
(SOLDER SIDE)
PbF
8
1
CN6301
CN6300
G
WIRELESS
ADAPTER P.C.B.
PbF
1
2
13
14
1
2
21
22
CN5801
CN5802
BLK
RED
I
SMPS P.C.B.
(SOLDER SIDE)
PbF
1
8
11 1
CN2012
CN2002
CN2009
JK2001
CN2003
CN2010
CN2005
CN2001
CN2011
CN2004
CN2007
CN2008
C
MAIN P.C.B.
(SOLDER SIDE)
PbF
1
2
17
16
1
1
2
17
16
1
2
6
7
50
49
48
47
4
3
2
1
1
2
9
10
111
2
1
27
28
2
1
11
12
2
1
10
11
CN2006
2
1
8
7
10
9
7
64
31
8
5
2
1
2
13
14
CN5050
H5500
CN5501
JK5001
H
D-AMP P.C.B.
(SOLDER SIDE)
PbF
1
8
2
1
16
17
1
3
1
2
3
4
5
6
7
8
2
28
1
27
2
1
17
14 2
13 1
117
11
1
A
DVD MODULE P.C.B.
(SIDE:B)
1
7
SA-PT750P / SA-PT750PC
89

Table of Contents

Related product manuals