EasyManua.ls Logo

Panasonic SA-PT750PC - Page 112

Panasonic SA-PT750PC
155 pages
Print Icon
To Next Page IconTo Next Page
To Next Page IconTo Next Page
To Previous Page IconTo Previous Page
To Previous Page IconTo Previous Page
Loading...
K
TO
TRAY CIRCUIT
(CN7002)
IN SCHEMATIC
DIAGRAM - 17
F
TO
KEY CIRCUIT
(H6901)
IN SCHEMATIC
DIAGRAM - 18
E
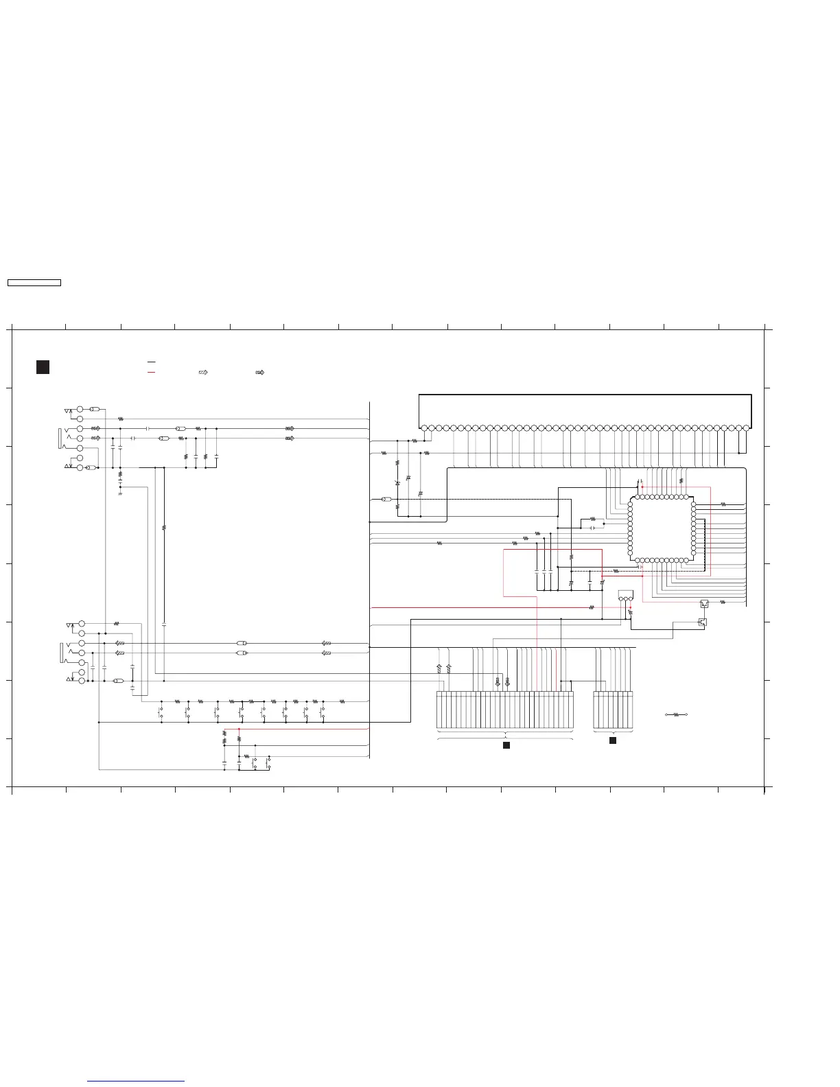
SCHEMATIC DIAGRAM - 12
PANEL CIRCUIT
SA-PT750P/PC PANEL CIRCUIT
:+B SIGNAL LINE :MAIN SIGNAL LINE :MUSIC PORT SIGNAL LINE
:-B SIGNAL LINE
1
28
A
B
C
D
E
F
G
H
1234567891011121314
1234567891011121314
A
B
D
E
F
H
G
C
2.2K
R6960
1K
R6804
1.2K
R6803
1K
R6805
S6802
S6803
S6801
1.8K
R6812
S6907
S6804
0.01
C6909
12 3
Z6900
B3RAD0000143
REMOTE SENSOR
LED DRIVE
LED DRIVE CONTROL
R6934
47
P15
P14
G3
0.01
C6925
P17
P16
LED2
G9
G7
G8
G10
LED3
LED4
LED5
P13
P12
R6914
56K
P11
P9
P10
P12
P13
P6
P7
P4
P3
P5
P8
P14
P15
Q6901
B1GBCFJN0033
Q6903
B1GDCFJJ0047
P16
P17
G3
G2
G6
G4
G5
G10
G8
G5
G7
G6
G9
G2
P2
G1
G4
G1
P1
21
5
6
3
1
2
4
19
9
7
8
16 17
11
10
12 151413 18 20
35374244 43 39 3841 40 36
33
22
31
29
27
24
23
26
25
28
30
32
34
C0HBB0000057
DISPLAY DRIVER
IC6901
C6918
10V47
50V3.3
C6913
R6927
68
C6916 100P
C6917
100P
68R6916
R6917 68
C6919 100P
B0BC2R4A0006
D6910
R6935
470
50V10
C6903
50V10
C6905
P4
P6
P8
P9
P7
P5
F1
0
R6939
0
R6940
P2
P3
P1
R6918
22K
L6903
J0JBC0000019
C6906 100P
C6910
6.3V100
C6911
0.01
F2
P10
P11
232114 15
16 17
19 201810 11
12 13
7
98
21
3
4
56
22 444140 423736 383332 3429 3025 2624 2827 31 35 39 43 45
FL6901
A2BD00000170
FL DISPLAY
S6809
S6810
100P
C6805
5
6
1
3
4
2
8
7
H6801
6
7
5
9
24
23
25
17
16
19
18
12
14
13
10
11
15
21
22
20
26
8
1
3
4
2
28
27
CN6902
100P
C6806
22K
R6807
KEY21
KEY21
LED5
LED4
LED3
LED2
KEY11
KEY11
RMT1
F+1
F+1
SW+5V1
SW+5V1
F-1
F-1
FL_IC_IN
FL_IC_IN
FL_IC_STB
FL_IC_STB
-VP1
-VP1
FL_IC_CLK
FL_IC_CLK
22K
R6809
MPORT-RCH
0.047
C6201
C6101
0.047
L6905
J0JBC0000019
C6923
0.01
C6924
0.01
R6810
6.8K
1
7
6
4
3
2
5
JK6802
J0JBC0000019
L6904
1
6
7
4
2
3
5
JK6801
2.7K
R6802
4.7K
R6801
1
C6102
0.1
C6801
1
C6202
J0JBC0000019
L6101
R6948
220
L6102
J0JBC0000019
C6920 0.033
R6950
1.2K
220
R6949
C6921
0.033
R6951
1.2K
L6202
J0JBC0000019
0.1
C6933
L6201
J0JBC0000019
0.01
C6931
4.7K
R6947
0.01
C6930
0
W6860
L6801
J0JBC0000019
S6805
S6806
JOG_B1
JOG_B1
JOG_A1
JOG_A1
S6808
MPORT-LCH
MPORT-LCH
MPORT-RCH
HP-RCH1
HP-RCH1
HP-LCH1
HP-LCH1
F-
P1
P4
P3
P6
P8
P9
P11
P10
P7
P5
P2
NP
NX(G9)
NX(G8)
NX(G10)
NX(G6)
NX(G5)
NX(G6)
NX(G7)
NX(G10)
F+
F+
G2
P17
P16
G5
G1
G7
P13
G9
G8
G4
G6
G3
P15
G10
P14
P12
NX(G4)
NX(G1)
NX(G1)
NX(G4)
NP
F-
G6
G5
G8
G7
G3
G1
G4
P13
P11
[23]P9
P12
P16
P14
P15
[34]G2
P3
P2
P6
KEY1
LED3
LED5
LED4
LED1
LED1
LED1
LED2
DGND
MPORT
MPORT
P8
P7
P4
P5
-VP
P10
P1
LED3
VCC
G10
GND
[1]LED2
G9
K1
GND
CLK
STB
OSC
DOUT
DIN
VCC
P18
P17
[11]K2
LED5
LED4
R-CH
L-CH
CHASSIS
HEADPHONE
R-CH
L-CH
MUSIC PORT
MPORT-RCH
HPOUT_MUTE
JOG_A
-7V
AGND
+7V
KEY2
ACS
HP-LCH
HP-RCH
JOG_B
UP
DOWN
AGND
ACS_MUTE
MPORT-LCH
DISC1_LED
JOG_LED
FORWARD
DISC SKIP
STOP
SELECTOR
DISC EXC
OPEN/CLOSE
PLAY
SW_+5V
F+
RMT
DGND
DGND
KEY1
VREF
VREF
VREF
VREF
F-
-VP
FL_IC_STB
FL_IC_CLOCK
FL_IC_DATA
BACKWARD
RMT1
MPORT
0
W6856
0
W6851
0
W6858
0
W6855
0
W6854
0
W6894
0
W6857
0
W6861
0
W6862
0
W6859
0
W6893
0
W6853
SA-PT750P / SA-PT750PC
112

Table of Contents