EasyManua.ls Logo

Panasonic SA-VK470EE - DVD (Audio)

Panasonic SA-VK470EE
154 pages
Print Icon
To Next Page IconTo Next Page
To Next Page IconTo Next Page
To Previous Page IconTo Previous Page
To Previous Page IconTo Previous Page
Loading...
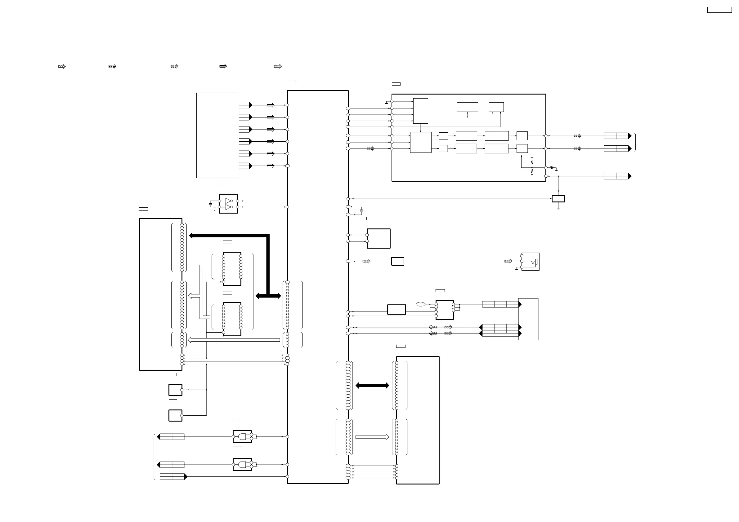
18.3. DVD (Audio)
: DVD AUDIO SIGNAL LINE : MAIN SIGNAL LINE : USB SIGNAL LINE : DVD RF SIGNAL LINE
OPTICAL PICKUP UNIT
ADDRESS
MEMORY
DATA
MEMORY
IC8051
64M SDRAM
ADDRESS
MEMORY
DATA
MEMORY
CLK
NWE
/CAS
/RAS
/CS
A11
A10
A9
A8
A7
A6
A5
A4
A3
A2
A1
A0
DQ15
DQ14
DQ13
DQ12
DQ11
DQ10
DQ9
DQ8
DQ7
DQ6
DQ5
DQ4
DQ3
DQ2
DQ1
DQ0
38
16
17
18
19
35
22
34
33
32
31
30
29
26
25
24
23
53
51
50
48
47
45
44
42
13
11
10
8
7
5
4
2
MCK
NWE
NCAS
NRAS
NCSM
MA11
(DQM3)
MA10
MA9
MA8
MA7
MA6
MA5
MA4
MA3
MA2
MA1
MA0
MDQ15
MDQ14
MDQ13
MDQ12
MDQ11
MDQ10
MDQ9
MDQ8
MDQ7
MDQ6
MDQ5
MDQ4
MDQ3
MDQ2
MDQ1
MDQ0
IC8001
DV5.0 LSI
RFINP
VN1RF
VN2RF
VN3RF
VN4RF
RFINN
P6
P7
P8
53
55
FROM/TO
SYSTEM CONTROL
CPU CLOCK
CPU STATUS
CPU CMD
FP8101
49
CN2801
50
48
2
CN2801
39
FP8101
12
CN2801
37
FP8101
14
CN2801
11
FP8101
40
1
3
FP8101
CN2801
100
18
FP8531
RFP
RFN
19
FP8531
160
162
164
168
170
172
176
178
177
175
171
169
201
203
207
209
208
206
202
200
198
199
192
190
189
188
194
181
185
167
163
161
159
TD(DVD)
26
TC(DVD)
17
15
TB(DVD)
TA(DVD)
25
95
96
97
98
99
1
2
4
54
FP8101
CN2801
58
215
57
76
A MUTE
QR8420
MUTING
AND GATE
AND GATE
IC8695
C0JBAA000502
IC8691
C0JBAA000502
2
4
11
12
103
148
150
LRCK
DACCK
BICK
1
MCLK
LOUT1
VCOM
16
DZF1
ROUT1
MIX-L
ZFLAG
TO
SYSTEM CONTROL
TO AUDIO
MIX-R
LRCK
SDTI1
6
7
8
CSN
9
P/S
CCLK
CDTI
149
SRCK
P11
STBDAC
STBDAC
SBT3
SBO3
ADAC-CLK
SRCK
LRCK
151
ADOUT
DMIXOUT
P10
TRCCLK
MN2DS0018MP
IC8420
AUDIO DAC
C0FBBK000047
DELTA-SIGMA
MODULATOR
CLOCK
DIVIDER
uP
INTERFACE
8X
INTERPOLATOR
DE-EMPHASIS
CONTROL
ATT
AUDIO
DATA
INTERFACE
SCF
LPF
DELTA-SIGMA
MODULATOR
8X
INTERPOLATOR
ATT
SCF
LPF
C3ABPY000011
FP8531
FP8531
FP8531
FP8531
1
2
4
SA-VK470EE DVD (AUDIO) BLOCK DIAGRAM
P5
50
IC9003
X9004
INVERTER GATE
C0JBAB000908
60
65
82
3
4
5
7
IC8651
32M FLASH MEMORY
ADDRESS
ADDRESS
DATA
ADDRESS
ADDRESS / DATA
NRST
NEXOE
NEXCE
NEXWE
EXADR20
EXADR19
EXADR18
EXADR17
EXADR16
EXADT15
EXADT14
EXADT13
EXADT12
EXADT11
EXADT10
EXADT9
EXADT8
EXADT7
EXADT6
EXADT5
EXADT4
EXADT3
EXADT2
EXADT1
EXADT0
XRST
12
28
XOE
XCE
26
11
XWE
A20
10
9
A19
A18
16
17
A17
A16
48
1
A15
A14
2
3
A13
A12
4
5
A11
A10
6
7
A9
A8
8
18A7
A6 19
20A5
A4 21
22A3
A2 23
24A1
A0 25
45
DQ15
DQ14
43
41
DQ13
DQ12
39
36
DQ11
DQ10
34
32
DQ9
DQ8
30
DQ7
44
DQ6
42
DQ5
40
38
DQ4
DQ3
35
33
DQ2
31
DQ1
DQ0
29
212
42
41
40
39
38
37
36
29
28
27
26
25
24
23
22
21
35
34
30
45
31
213
214
70
IC9002
LATCH
LE
11
D8
9
D7
D6
8
7
D5
D4
6
5
D3
D2
4
3
D1
EXADT15
EXADT14
EXADT13
EXADT12
EXADT11
EXADT10
EXADT9
EXADT8
EXADT7
EXADT6
EXADT5
EXADT4
EXADT3
EXADT2
EXADT1
EXADT0
2
12
13
14
15
16
17
18
19
Q8
Q7
Q6
Q5
Q4
Q3
Q2
Q1
IC9001
LATCH
LE
11
D8
9
D7
D6
8
7
D5
D4
6
5
D3
D2
4
3
D1
EXADT7
EXADT6
EXADT5
EXADT4
EXADT3
EXADT2
EXADT1
EXADT0
EXADT7
EXADT6
EXADT5
EXADT4
EXADT3
EXADT2
EXADT1
EXADT0
2
12
13
14
15
16
17
18
19
Q8
Q7
Q6
Q5
Q4
Q3
Q2
Q1
C0JBAZ001251
C0JBAZ001251
3
1
4
6
USB
D +
D -
1
CN7002
VBUS OUT
2
FP9001
1
FP9001
2
FP9001
3
5
CN8002
CN7002CN8002
CN7002CN8002
4
IC9005
OC
EN
IN
IN
OUT
OUT
6
OUT
C0DBZYY00266
QR9030
LEVEL
SHIFTER
USB VBUS
USB OVER
D+5V
146
ROUT
144
LOUT
60
65
P13
DRV2
REGULATOR
RFKWMH32B325
X8621
OSCO
OSCI
P1
156
IECOUT
156
155
5
6
46
1
OUT
RESET
C0EBA0000039
C3EBGC000056
SDA
SDA
P2
47
SCL
SCL
RESET
C0EBE0000456
IC8606
16M EEPROM
IC8611
IC8601
1
OUT
JK2801
DIGITAL OUT
(COAXIAL)
1
2
3 CHASSIS GND
BUFFER
Q2980
: AUDIO SIGNAL LINE
SA-VK470EE
91

Table of Contents

Related product manuals