EasyManua.ls Logo

Philips Q528.1E - Side I;O Panel

Philips Q528.1E
166 pages
Print Icon
To Next Page IconTo Next Page
To Next Page IconTo Next Page
To Previous Page IconTo Previous Page
To Previous Page IconTo Previous Page
Loading...
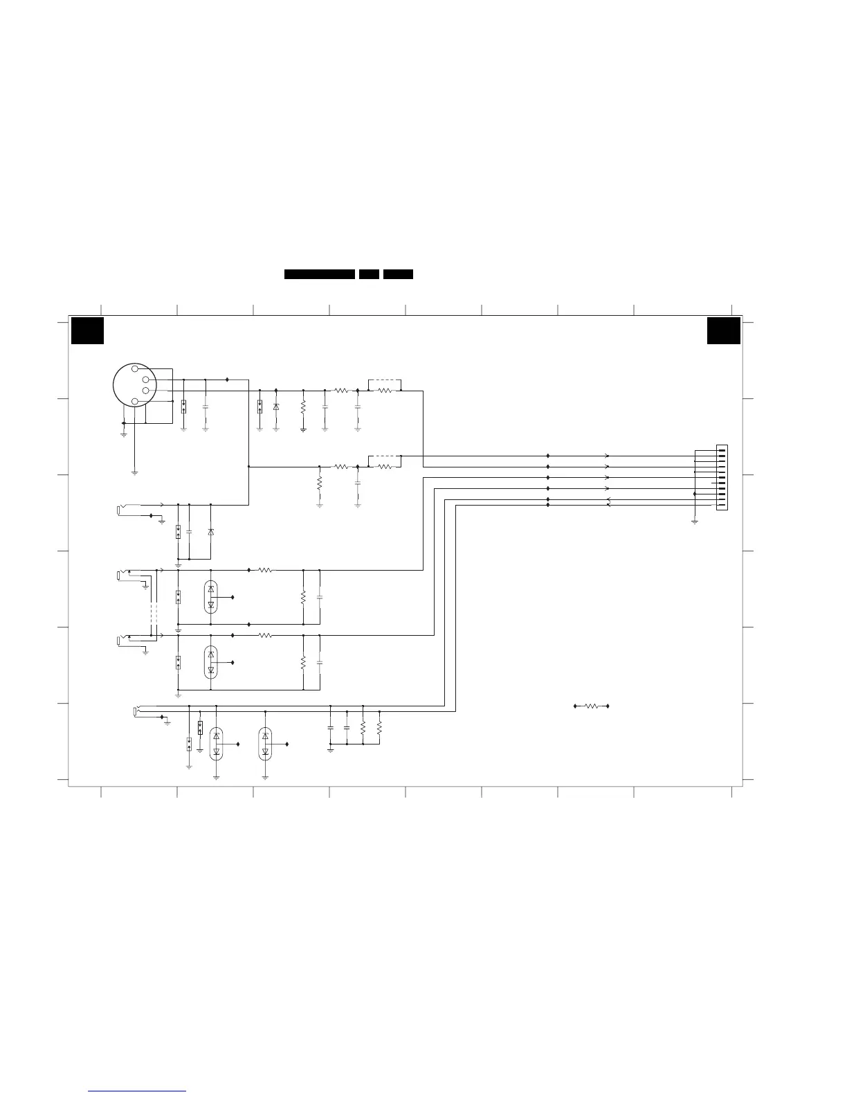
114Q528.1E LA 7.
Circuit Diagrams and PWB Layouts
Side I/O Panel
I305 B4
I307 C1
I308 D2
I309 E2
I310 E2
I313 F1
I314 B6
I316 B6
I318 C6
I319 C6
I320 C6
I321 C8
I322 D2
3309 D3
3310 E3
3311 E3
3312 F4
3313 F4
3999 E7
6302 B3
I323 E2
I324 F2
I325 F3
I330 E7
I331 E7
S301 B2
S302 B3
S303 C1
S304 D1
S305 E1
S307 F2
S308 F2
6304 D2
6305 E2
6306 F2
6307 F3
9301 A4
9302 B4
9305 D1
9306 D1
I301 A2
I302 B1
I303 A3
I304 A4
HEADPHONE
2305 D3
2306 E3
I315 B6
SIDE IO
2311 C2
3301 C3
3302 B3
3303 A4
3304 A4
3305 B4
3306 B4
3308 D3
6303 C2
1302-1 C1
1302-2 D1
1302-3 E1
1303 E1
1304 B8
2301 B3
2302 B4
2303 B2
2304 C4
CVBS
2309 F3
2310 F4
567 8
A
B
C
D
E
F
R
567 8
123
A
B
4
L
1234
SVHS
TO SSB
C
D
E
F
1301 A1
6
8
S304
RED
1302-3
7
2311
22p
9306
6302
PDZ6.8-B
3309
100K
I314
S308
I315
9305
100p
2305
I309
I304
22n
2309
I318
I301
9302
I302
3304
100R
I310
3302
75R
S307
2306
100p
100R
3306
DF3A6.8
6305
2310
22n
100R
3310
10K
3312
I320
PDZ6.8-B
6303
I308
DF3A6.8
6306
10K
I321
3313
I324
S302
9301
2304
47p
1
2
I325
YELLOW
1302-1
2302
47p
100K
3311
47p
2301
10R
3303
I313
YKB21-5157N
1303
2
1
3
3305
10R
5
6
7
8
9
I322
1304
1
10
11
2
3
4
I323
I331
100R
3308
7
5
6
I303
1
2
3
4
S301
YKF51-5359
1301
S303
3301
75R
3999
1K0
DF3A6.8
6304
I305
I330
I307
WHITE
1302-2
4
3
5
22p
2303
I319
6307
DF3A6.8
I316
HEAD_PH_L
HEAD_PH_R
S305
R_FRONT_IN
FRONT_C_IN
L_FRONT_IN
FRONT_Y_CVBS_IN
D D
H_16800_085.eps
070507
3104 313 6186.4

Table of Contents

Related product manuals