EasyManua.ls Logo

Philips Q528.1E - PNX 8535: Control

Philips Q528.1E
166 pages
Print Icon
To Next Page IconTo Next Page
To Next Page IconTo Next Page
To Previous Page IconTo Previous Page
To Previous Page IconTo Previous Page
Loading...
70Q528.1E LA 7.
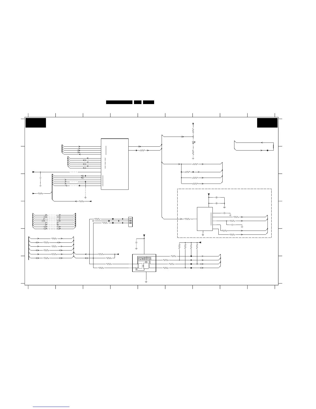
Circuit Diagrams and PWB Layouts
PNX 8535: Control
GPIO
I2C1
I2C2
I2C3
EJTAG
SDA
SCL
TDO
TRST
TMS
TCK
TDI
SCL
SDA
SCL
SDA
VPP_ID
0
1
2
3
4
5
27MHz_OUT
RESET_SYS
2
C
INP
-BUS
CTRL
FIL
I
2
1
CLKOUT
3
CLK
VDD
4
GND
REF
IHF7 C3
IHF8 D4
IHF9 D4
IHPF F6
IHS7 B4
IHS8 C2
7HF1 D7
7HP5 E4
9HF8 B2
9HG0 C2
9HG1 C2
9HG2 C3
9HP7 D1
9HP8 D1
9HPC D1
9HPD D1
FHP0 D4
FHP1 D3
FHP2 D4
FHP3 E7
FHP4 B9
FHPA F6
FHPB F6
3HFY C2
3HP8 C1
3HPA D3
3HPB D3
3HPC E6
3HPD E1
IHF0 B6
IHF4 D4
IHF5 B7
IHF6 C3
PCA9540BDP
3HPE E1
3HPF E1
3HPG E1
3HPH E1
3HPJ F1
3HPK E3
3HPM F3
3HPQ F3
3HPR E6
3HPS F6
3HPT F3
3HPU F6
3HPW F6
3HPX E6
3HPY E7
3HPZ E6
6HF0 A6
7H00-4 A3
456789
9HP5 D1
9HP6 D1
9HPA D1
9HPB D1
2HF5 C7
2HF6 D7
2HF7 D8
2HF8 D8
2HP1 E4
3HF0 B5
3HF2 C7
3HF3 A6
3HF4 C7
3HF9 B6
3HFG B7
3HFH B6
3HFK D8
3HFM E8
3HFN E8
3HFP D8
3HFR D6
C
D
E
F
A
B
PNX8535: CONTROL
E
F
2HF2 C1
RESERVED
SDA
SCL
123456789
123
A
B
C
D
1HP0 D4
4K7
3HPZ
4K7
3HPY
3HPX
4K7
FHP4
2HF6
100n
IHS7
AK2
AK3
AJ3
AE27
AH27
AK29
AK28
AJ28
AJ27
AJ26
AJ2
AK1
AK26
T1
T2
T3
G27
E27
D28
AK27
PNX8535
7H00-4
MIPS C0NTROL
100R
3HPF
3HPE
100R
9HPD
+1V2
100R
3HPT
IHPF
33R
3HFP
100R
3HPS
3HPR
100R
9HPA
VDD
3
6
VSS
5
SC0
8
SC1
1
SCL
4
SD0
7
SD1
2
SDA
NULL
7HP5
9HP8
9HP6
9HP7
9HP5
2HF2
100n
+3V3
9HF8
33R
3HFR
10K
3HF3
33R
3HFK
IHF6
4K7
3HPC
FHPA
100R
FHPB
3HPW
3HFM
33R
100R
3HPB
3HPA
100R
IHF5
IHF9
100R
3HPD
3HF2
33R
3HFG
33R
33R
3HFH
100R
3HPG
3HPQ
100R
RES
9HG2
3HFY
10K
IHS8
2HF8
15p
FHP3
2HF5
10n
33R
3HFN
FHP0
3HPM
4K7
1
6
IHF8
3
2
5
7
8
4
7HF1
CY2305S
BUFFER
Φ
ZERO
DELAY
IHF0
33R
3HF4
330R
3HF9
9HG1
33R
3HF0
100R
FHP2
3HPH
9HPB
9HPC
SML-310
6HF0
+3V3-STANDBY
3HP8
10K
100p
2HP1
2HF7
10p
FHP1
100R
3HPU
9HG0
+3V3-STANDBY
4K7
3HPK
100R
3HPJ
IHF4
2
3
45
IHF7
1HP0
1
SDA-SSB
SCL-SSB
+3V3-PER
JTAG-TD-PNX5050-PNX8535
JTAG-TD-PNX8535-FE
CA-INT
+3V3-PER
PCI-CLK-USB20
PCI-CLK-DEBUG
PCI-CLK-USB20
PCI-CLK-OUT
PCI-CLK-PNX8535
PCI-CLK-PNX5050_CLK-MOP
CA-CTRLEN_BOOTMODE
+3V3-PER
PCI-CLK-DEBUGPCI-CLK-OUT
PCI-CLK-PNX5050_CLK-MOP
PCI-CLK-PNX8535
EV
AL
S-
ADS1
A
D
S
2-
LC
S
2L
C
S
2-A
D
S2A
D
S
B
S
S
-
L
C
S3LCS
BS
S
-
A
DS3A
D
S
+3V3-PER
SCL-SSB-MUX1
SDA-SSB-MUX1
SDA-SSB-MUX2
SCL-SSB-MUX2
S
P
IM
-
P
U
-
L
C
S
EVALS-LCS
S
P
IM
-
P
U
-
A
D
S
E
V
A
L
S
-
A
DS
SPI
M
-PU-L
C
S2
-
L
C
S
SP
I
M-PU
-
ADS2-AD
S
1XU
M
-
B
S
S
-
L
C
S
BSS-LCS
2XUM
-
BSS-L
C
S
B
SS
-
L
CS
1
X
U
M
-BSS-ADSBSS-A
D
S
2XUM-BSS-ADS
B
SS-AD
S
E
V
A
L
S
-
L
C
S
1
LCS
IRQ-PCI
CTRL1-MIPS_LCD-PWR-ON
CA-CTRLEN_BOOTMODE
PCI-CLK-OUT
RESET-SYS-DETECT
RESET-SYS-DETECT
SCL1
SCL2
SCL3
SDA1
SDA2
SDA3
EJTAG-TCK
EJTAG-TDI
EJTAG-TDO
EJTAG-TMS
EJTAG-TRSTN
TXD-MIPS
RXD-MIPS
CA-INT
B04E B04E
H_16800_042.eps
250407
3104 313 6194.3

Table of Contents

Related product manuals