EasyManua.ls Logo

Philips Q528.1E - Small Signal Board (B1-B11); SSB: Supply

Philips Q528.1E
166 pages
Print Icon
To Next Page IconTo Next Page
To Next Page IconTo Next Page
To Previous Page IconTo Previous Page
To Previous Page IconTo Previous Page
Loading...
60Q528.1E LA 7.
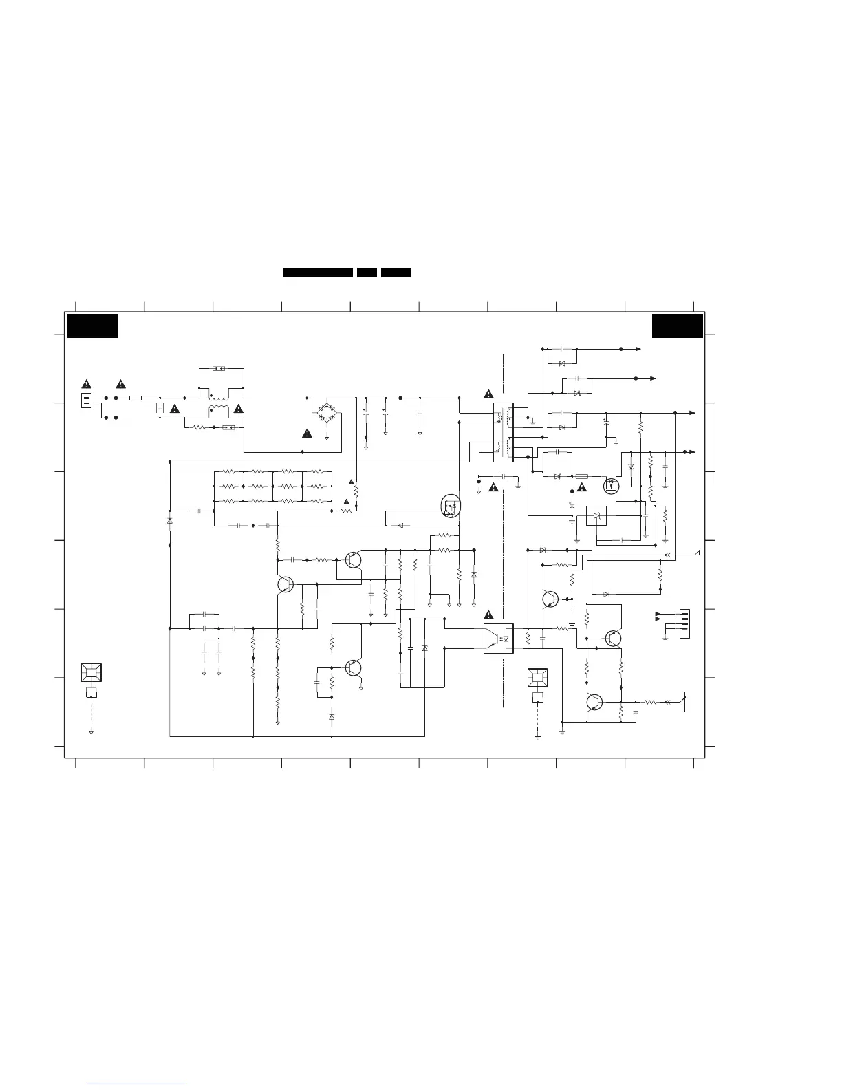
Circuit Diagrams and PWB Layouts
SSB: Supply
IB73 E4
FB36 D6
FB37 B7
FB38 A5
FB39 C6
FB45 B1
IB10 B3
IB75 A7
IB76 C3
IB77 E8
cB01 B8
cB02 D8
cB04 D6
IB46 D3
IB47 D4
IB48 D4
IB49 E3
IB50 E3
IB51 E3
IB52 E4
HOT
IB45 D4
6B10 C5
6B11 C2
6B13 D7
6B14 F4
6B15 B9
7B01 E4
IB54 E5
IB55 E6
IB56 E6
IB60 D7
IB61 D8
IB63 D9
COLD
SUPPLY
B01A B01A
H_16800_031.eps
250407
3104 313 6194.3
IB64 B2
IB65 E2
IB68 A7
IB69 C3
IB70 C4
IB71 C3
IB72 F9
FB35 D8
3B70 C4
3B71 B2
3B72 B9
3B73 B9
3B74 C9
FB46 B1
3B76 B3
IB74 E5
IB12 D2
IB13 D9
IB14 F4
IB15 C9
IB30 A2
IB31 D5
IB34 B6
IB36 B7
IB37 C7
IB38 E8
IB39 E8
IB40 A6
IB41 B7
IB42 C3
IB43 C4
IB44 C5
6B09 D6
3B43 E4
3B44 F4
3B45 E5
3B46 D5
3B47 D5
7B00 D3
3B49 D5
IB53 F4
7B04 E7
7B05 C6
7B06 B8
7B07 C8
7B50-2 E8
9B01 F1
9B02 F7
FB27 A8
FB30 A1
FB31 B1
FB32 B9
FB33 B9
FB34 A9
3B69 C4
2B52 C7
2B55 F9
2B56 D5
2B57 D2
2B58 E2
3B75 B3
2B60 B5
IB11 C9
3B78 B4
5B00 A2
5B01 A7
HOT
IB32 A4
IB33 B4
IB35 B5
6B02 D8
6B03 E6
6B04 B4
6B05 C8
6B06 B8
6B07 A8
6B08 A8
3B42 F3
1B40 D9
1P02 A1
2B30 B2
2B31 B5
2B32 C2
3B48 D5
2B34 C3
7B02 D4
3B51 D6
3B52 C6
3B54 D9
7B50-1 F8
3B60 C4
3B61 E8
3B62 E8
3B63 E8
3B64 F8
3B65 F9
3B66 E8
3B67 C3
3B68 C3
2B51 A8
12345
2B59 F4
7
3B77 B4
2B62 B9
2B63 C9
3B29 C9
3B31 C3
3B33 C4
3B34 C4
3B35 D3
3B36 D4
3B37 D4
3B38 E3
3B39 E3
3B40 E3
3B41 E3
1B33 C8
E
F
A
B
C
2B33 C3
F
3B50 D6
2B36 D5
2B37 D4
2B38 E3
2B40 E2
3B55 E7
2B42 E7
2B43 D6
2B44 E5
2B45 B8
2B46 B8
2B47 B8
2B48 A8
2B49 D8
2B50 B5
9
89
A
B
6
2B61 C8
COLD
C
D
3B30 C3
3B32 C4
1B11 E7
1B30 A3
1B31 B3
1B32 A1
2B39 E3
E
2B41 E5
1B10 E1
D
1
2B35 D4
2345678
3B34
2M2
2B45
1n0
GND
+5V-STANDBY
2B62
1u0
1K0
3B37
+5V-STANDBY
FB37
GND
IB15
PHD38N02LT
7B06
+12VS
3B48
10K
2B38
1u0
2B49
2B52
470p
2m2 16V
2B32
1n5
15R
3B35
GND
BZG05C6V8
6B09
+AUDIO-POWER
2B37
RES 1n0
1n0
2B51
47K
3B24
GND
IB17
cB01
10n
2B28
3B73
+12VS
IB46
1K0 1%
FB46
3B38
390R
FB39
2B61
2n2
GND
6B10
100p
2B34
100K
BZG05C15
2B46
3B43
1n0
3B25
IB16
1K2
3B74
1%1K0
BC847BW
7B08
2B39
IB30
1u0
IB51
IB64
1u0
1K2
3B55
2B57
3B39
IB37
390R
IB36
IB43
IB70
470R
IB34
3B36
2B40
1u0
PDZ5.6-B
6B02
1
2
3
4
56
1B40
7B07
TS2431
3
A
1
K
2
R
IB60
2B35
10p
220R
3B71
IB41
IB76
GND
IB10
BC817-25W
7B00
3B40
IB75
390R
FB38
GND
GND
IB68
GNDP
IB50
GND
100n
2B63
10K
10u
2B55
GNDV
3B65
IB71
RES
47R
3B52
3B69
1K0
FB34
IB69
IB42
1K0
3B61
GNDP
IB31
6B05
SS36
IB48
IB74
IB63
FB33
IB61
2B56
FB36
2B36
47n
RES
47p
IB44
2M2
3B60
2B58
1u0
IB12
IB14
B2P-VA-BF-BK
1
2
T1.6A-250V
1B32
1%
1P02
330R
3B54
47R
3B29
GNDP
47n
2B43
HEATSINK
1B11
GNDV
1K0
3B683B67
FB27
1K0
9B01
4K7
3B44
3B46
1K0
2B50
GNDSND
450V68u
IB49
68R
3B50
BC857BW
7B02
450V
1%
2B31
22u
3B42
390R
IB73
10n
2B60
IB77
GNDP
2B47
25V1m0
3B49
IB33
1%18R
IB11
2B59
470n
6B07
MBRS1100
BYW29-200
6B06
1K0
3B31
4K7
3B66
15K
3B64
1B31
3B70
GNDP
4
3
1K0
6B04
DF06M
1
2
IB52
6B15
BZX384-C5V6
1B33
2.5AT
IB53
3B72
2K2
IB56
GNDV
GNDP
GNDP
GNDV
BZX384-C18
6B03
1B30
3B47
-AUDIO-POWER
470R
6B14
PDZ5.6-B
10K
3B62
7B01
BC857BW
IB45
RS1D
6B11
2B30
220n
1K0
3B32
2B33
GNDV
56p
6B13
PDZ5.6-B
GND
IB65
TCET1102(G)
7B04
IB55
IB47
3B41
390R
IB13
FB32
3B78
1K0
3B77
1K0
3B76
1K0
3B75
1K0
1
3
IB38
STP5NK60ZFP
7B05
2
1B10
HEATSINK
220n
2B42
GNDP
IB54
5B00
UF2327L
2
1
3
4
IB32
FB30
FB45
FB31
3B30
FB35
GNDV
1K0
1R0
IB72
3B51
2B41
9B02
220n
3K3
3B45
GNDP
IB40
4
22K
3B63
5
3
7B50-1
BC847BPN
2
6
1
7B50-2
BC847BPN
IB35
cB04
GNDV
10n
2B44
cB02
IB39
2B48
MBRS1100
6B08
1n0
1K0
12
2
3
5
7
8
9
3B33
BS28601-00
5B01
1
10
11
STANDBY
GND
AUDIO-PROT

Table of Contents

Related product manuals