EasyManua.ls Logo

Philips Q528.1E - Page 77

Philips Q528.1E
166 pages
Print Icon
To Next Page IconTo Next Page
To Next Page IconTo Next Page
To Previous Page IconTo Previous Page
To Previous Page IconTo Previous Page
Loading...
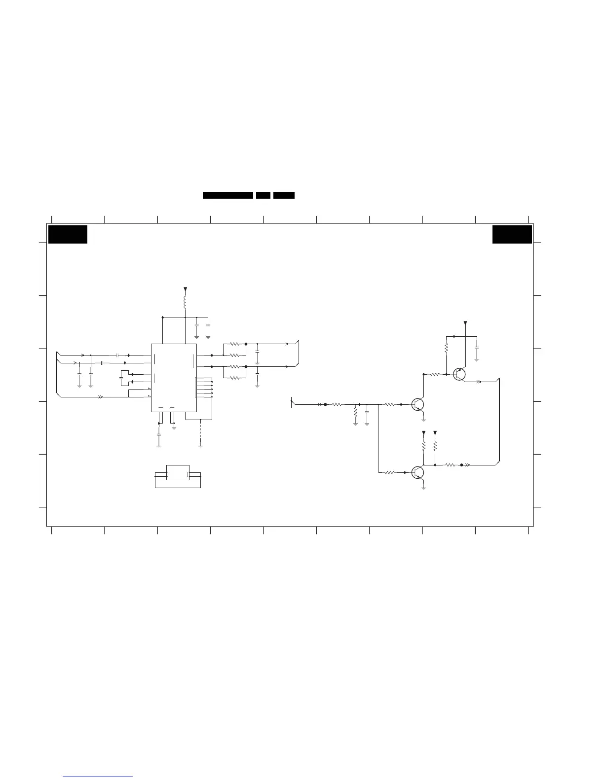
Circuit Diagrams and PWB Layouts
77Q528.1E LA 7.
PNX 8535: Audio
VIA
VIA
PVDD
P
VSS
SP
GND
DNC
R
L
OUT
S
C1
IN
SVDD
N
L
R
SDR
NC
HEATSINK
SDL
P
IHV5 B8
IHV7 E8
IHV9 E7
IHVA C8
IHVB C6
IHVC C2
IHVD C2
IHW7 C7
IHW8 C7
IHWA B2
IHWE C2
IHWJ C4
IHWL C2
3HV7 C8
3HV8 E7
3HVN C4
3HVP B4
3HVR C4
3HVS C4
3HVT E8
3HVW D6
3HVX D6
3HVY D7
3HVZ D8
5HV0 B3
7HV0-1 B2
7HV0-2 E3
7HV1 E8
7HVA-1 D8
7HVA-2 C8
9HV1 D3
FHV1 C4
FHV2 B4
FHV3 C6
FHV4 E8
IHV0 D2
IHV1 C4
123456789
123456789
A
B
C
D
E
A
B
C
D
E
2HV2 C4
2HV3 D2
2HV4 C4
2HV6 C1
2HV7 B8
2HV9 C2
2HVA C1
2HVB B3
2HVC B3
2HVD C2
2HVE C1
2HVG D6
3HV3 D7
3HV4 B8
PNX 8535: AUDIO
25
1u0
2HVE
TPA4411RTJ
7HV0-2
VIA
22
23
24
2HV9
10u
+5VS
22K
3HV7
FHV2
IHVD
IHV9
22K
3HV8
3n3
2HVA
2
6
1
3HVS
33R
7HVA-1
BC847BPN
+3V3
IHV5
3HVP
3HVN
33R
33R
IHWJ
IHVA
IHWL
2HV2
1n0
1u0
2HVD
+3V3-STANDBY
IHW7
IHWA
IHV1
3HV4
22K
3HVZ
47K
47K
3HVY
RES
1n0
2HVG
3HVX
22K
FHV3
BC847BPN
7HVA-2
5
3
4
2HV7
100n
IHWE
22K
3HVW
2HV4
1n0
10u
9HV1
2HVB
2HV6
3n3
2HV3
+3V3
10u
100n
2HVC
7HV1
1
3
2
33R
3HVR
BC847BW
FHV1
FHV4
IHVC
14
17
10
7
IHW8
16
20
9
11
2
19
5
18
3
1
21
13
15
4
6
8
12
DRIVER
7HV0-1
TPA4411RTJ
IHV0
HEADPHONE
Φ
5HV0
30R
12K
3HVT
22K
3HV3
IHVB
IHV7
ADAC(3)
A-PLOP-HDPH
AUDIO-RESET
ADAC(4)
AUDIO-HDPH-R-AP
A-PLOP
AUDIO-HDPH-L-AP
A-PLOP-HDPH
B04M B04M
H_16800_050.eps
250407
3104 313 6194.3

Table of Contents

Related product manuals