EasyManua.ls Logo

PianoDisc 228CFX - Page 19

Default Icon
84 pages
Print Icon
To Next Page IconTo Next Page
To Next Page IconTo Next Page
To Previous Page IconTo Previous Page
To Previous Page IconTo Previous Page
Loading...
PianoDisc Installation Guide 19
. . . . .
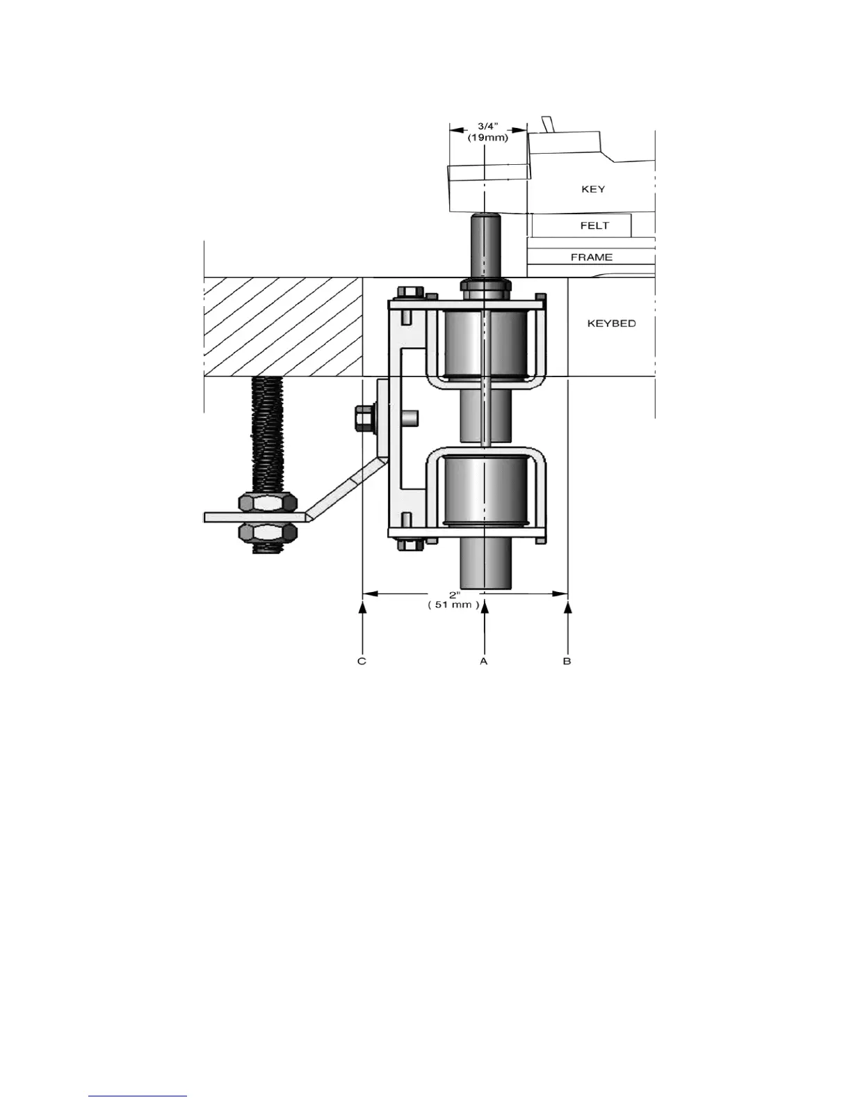
Figure 7B

Table of Contents

Related product manuals