EasyManua.ls Logo

PianoDisc 228CFX - Step 12: Reinforce the Keybed

Default Icon
84 pages
Print Icon
To Next Page IconTo Next Page
To Next Page IconTo Next Page
To Previous Page IconTo Previous Page
To Previous Page IconTo Previous Page
Loading...
22 PianoDisc Installation Guide
228CFX - PianoCD - iQ
Step 12: Reinforce the keybed
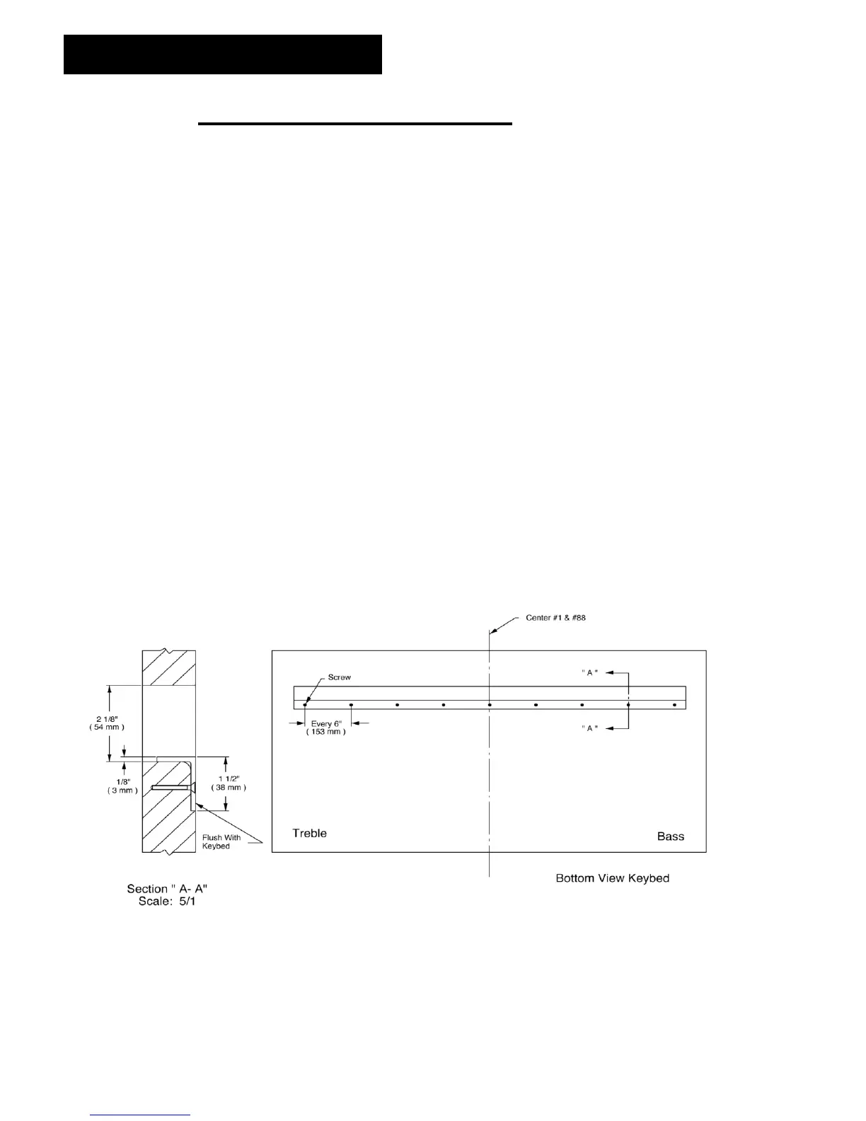
Note: If the keybed is sectioned (as in some Steinways) or if the keybed is less
than 1 1/2” (38 mm) thick, we strongly recommend reinforcing the keybed after
cutting the slot. In weaker keybeds, this will greatly improve the stability of the
action regulation.
Note: On the plank style keybeds, the connecting point of the planks will most
likely be cut away when the slot is cut. It is advisable to locate and router out
the area for the angle iron support before cutting the solenoid slot. (See Fig. 9)
A. Prepare the reinforcement. Use a piece of 1/8" (3 mm) by 1 1/2" (38 mm)
angle iron and cut it to match the length of the slot.
Drill screw holes in the angle iron at 6" (153 mm) intervals or into each plank so
that it can be secured to the bottom of the keybed.
Also, use a countersink bit on the holes drilled to flush mount flat head screws.
B. Prepare the mounting location for the angle iron by routing out the
equivalent thickness and length along the bottom of the keybed. (See Fig.
9)
This is so that the angle iron will not protrude from the bottom of the keybed,
allowing the rail cover to fit properly. Use a wood router for this purpose.
Also, after routing for flush fit of angle iron, round off the edge of keybed to match
inside radius of angle iron. A router bit works well in making radius cut.
Figure 9
C. Paint and mount the angle iron by screwing it into the bottom of the keybed.
Make sure that the angle iron is flush with the bottom of the keybed.

Table of Contents

Related product manuals