EasyManua.ls Logo

Rosemount 2700 - Quick Start-Up

Rosemount 2700
94 pages
Print Icon
To Next Page IconTo Next Page
To Next Page IconTo Next Page
To Previous Page IconTo Previous Page
To Previous Page IconTo Previous Page
Loading...
1-6
1.4 QUICK START-UP
The following quick start-up procedures explain how to
put the analyzer and attached sensor(s) into immediate
operation.
NOTE
These procedures are only applicable to
the very first power up.
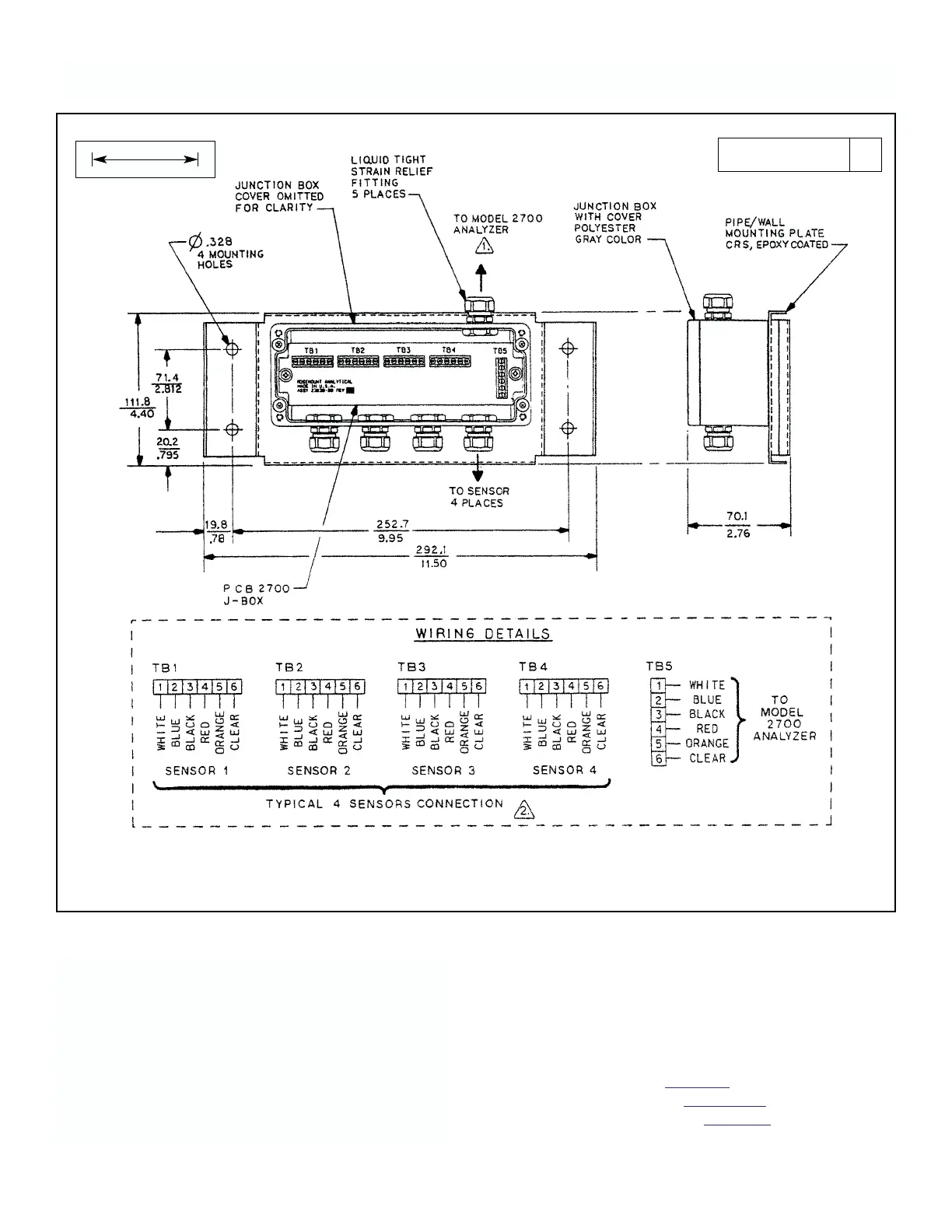
1. Install sensor(s) as described in their instruction
manual, and wire to analyzer as shown in Section 1.3.
2. A summary of factory settings for pH/ORP sensors,
and conductivity sensors, based on cell constant
(K) is contained in Table 1-1. If these values are not
acceptable, refer to Section 4.0 Configuration for
procedures to change. Table 4-1 contains a more
complete summary of factory settings.
MODEL 2700 SECTION 1.0
INSTALLATION AND QUICK START-UP
FIGURE 1-6. Junction Box and Multiple Sensor Wiring.
DWG. NO. REV.
40270008 D
MILLIMETER
INCH

Table of Contents

Related product manuals