EasyManua.ls Logo

Rosemount 2700 - INSTALLATION AND QUICK START-UP; Mechanical Installation

Rosemount 2700
94 pages
Print Icon
To Next Page IconTo Next Page
To Next Page IconTo Next Page
To Previous Page IconTo Previous Page
To Previous Page IconTo Previous Page
Loading...
1-1
4. Be shielded from direct sunlight.
5. Not exceed a 0-50°C ambient temperature range.
6. Be easily accessible to AC power.
When code requires wiring must be brought in through
conduit, install in this order:
1. Run conduit to where bottom of case will be.
2. Fasten conduit connector to conduit.
3. Insert connector through case and tighten nut.
NOTE
Case may break when knockouts are not
removed as described above!
MODEL 2700 SECTION 1.0
INSTALLATION AND QUICK START-UP
SECTION 1.0
INSTALLATION AND QUICK START-UP
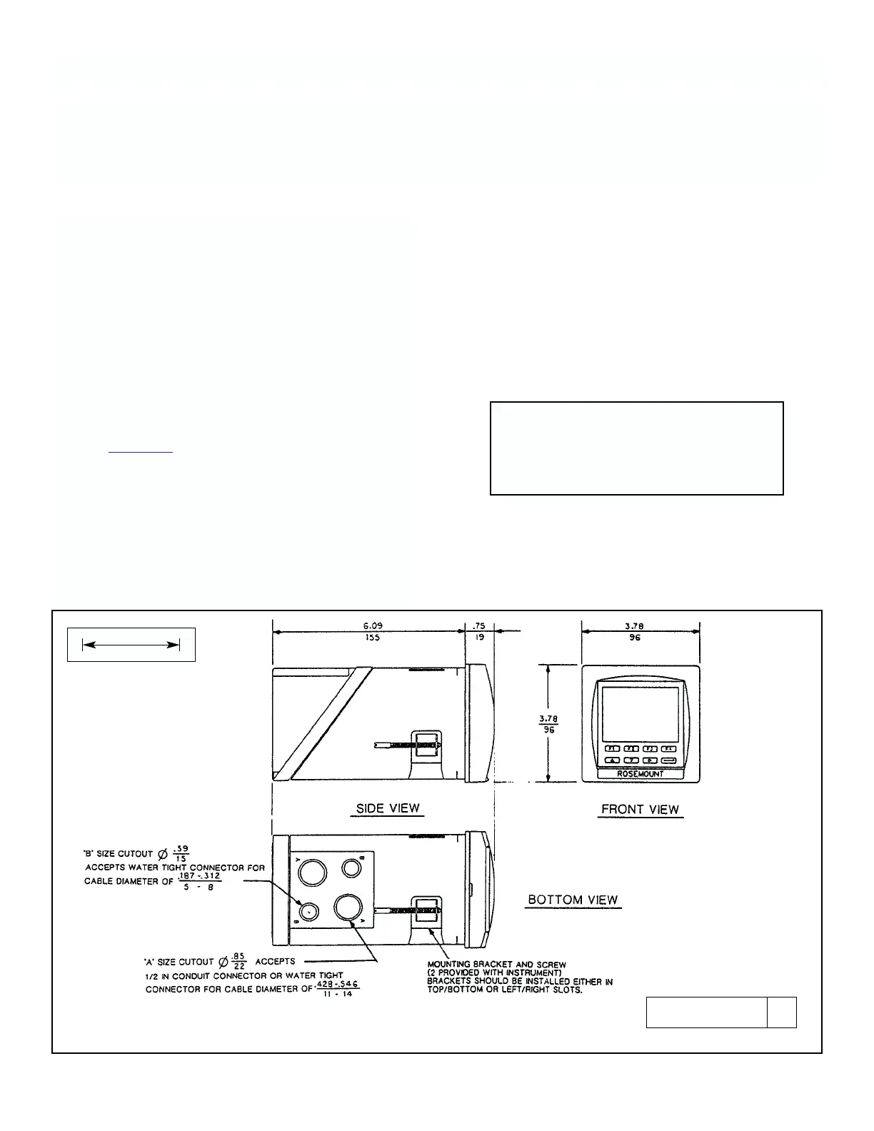
FIGURE 1-1. Outline Dimensional Drawing
1.1 INSPECTION
Inspect shipping container for damage, instrument for
exterior signs of damage, and verify contents using
enclosed packing list.
Notify Rosemount if items are missing or contact carrier
if container appears damaged.
1.2 MECHANICAL INSTALLATION
General.
Installation must be preformed by a trained technician.
Overall dimensions of the Model 2700 Solu Cube are
given in Figure 1-1.
Location should:
1. Provide easy access for wiring and operation
personnel.
2. Be at least .3 meters (1ft) from any high voltage
conduit.
3. Eliminate or minimize vibrations, electromagnetic
and radio frequency interferences.
DWG. NO. REV.
40270001 A
NOTICE
Removal of knockouts must be done with
back cover in place and by striking along
crease of knockout. Do Not strike center of
knockout with a hammer.
MILLIMETER
INCH

Table of Contents

Related product manuals