EasyManua.ls Logo

Rowe NiteHAWK - Figure 7-1 - Nitehawk Wiring Diagram (Sheet 4)

Rowe NiteHAWK
94 pages
Print Icon
To Next Page IconTo Next Page
To Next Page IconTo Next Page
To Previous Page IconTo Previous Page
To Previous Page IconTo Previous Page
Loading...
Troubleshooting NiteHAWK Internet Jukebox
7-8 22022602
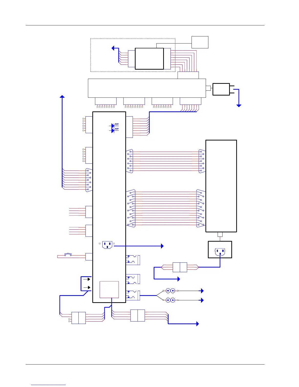
Figure 7-1 - NiteHAWK Wiring Diagram (Sheet 4)
LN
G
ETHERNET
RJ45 JACK
1
2
3
4
5
6
7
8
SVGA VIDEO
DB15 MALE
10
15
5
9
14
4
8
13
3
7
12
2
6
11
1
TOUCHSCREEN
DB9 FEMALE
5
9
4
8
3
7
2
6
1
SVGA VIDEO
DB15 MALE
10
15
5
9
14
4
8
13
3
7
12
2
6
11
1
TOUCHSCREEN
DB9 MALE
5
9
4
8
3
7
2
6
1
1
2
3
4
1
2
3
4
Green-Audio
Blue - headphones
Yellow - Microphone
1
2
3
4
5
6
7
8
COMPUTER
TO J UKEBOX
1
2
3
4
5
6
7
8
1
2
3
4
5
6
7
8
1
2
3
4
5
6
7
8
1
2
3
4
5
6
7
8
RJ12
1
2
3
4
5
6
WA N or
ETHERNET
1
2
3
4
5
6
7
8
1
2
3
1
2
3
PS2 KEYBOARD
MINI- DIN 6
1
2
3
4
5
6
MO US E
MINI- DIN 6
1
2
3
4
5
6
ROWELINK
DB9 MALE
5
9
4
8
3
7
2
6
1
1
2
3
4
1
2
3
4
1
2
1
2
3
4
1
2
3
4
19 INCH
FLATPANEL
DISPLAY &
TOUCHSCREEN
22160806
D+
IE C 32 0 MALE
POW ER INLET
61176511
CORE
COMPUTER
ETHERNET
LEDS
D+
D-
COM1
COM2
D-
DSRa
<
RIa
MONITOR ID 1 I N (or DDC data I /O)
MONITOR ID 2 IN (or reserved)
<
MONITOR ID 0 IN
GND
SIGNAL GND
GREEN
<
BLUE
GREEN RETURN
H-SYNC
<
DCDa
MONITOR ID 3 I N (or DDC clock I/O)
>
V-SYNC
<
RTSa
RED RETURN
RXDa
SYNC RETURN
DTRa
CTSa
>
BLUE RETURN
NC
>
RED
TXDa
GND
US B PORT
GND
+5V DC
+5V DC
US B PORT
ROUTER
AC
ADAPTER
SPA RE PORTSPA RE PORTSPA RE PORT
WIRELESS ETHERNET ROUTER
30934222
34037926
TO ISP
PROVIDER
PROVIDED BY CUSTOMER WHEN REQUIRED
MODEM
MO DEM
POWER
12 VDC
AC ADAPTER
ATX
POWER
SUPPLY
Plugs into ROUTER
outlet of 22145809
POWER SUPPLY
ASSEMBLY
SHEET 1
28280004 D-LINK 4-PORT WBR 1310
21121236
WW
B
G/Y G/Y
B
30934214
34038702
TO
ROWELINK
CONTROLLER
P22 SHEET 2
EXT ERNAL
POWER / ATX
RESET
TO 34039922 HARNESS SHEET 1
TO COMPUTER outlet
of POWER SUPPLY
ASSEMBLY SHEET 1
(SUPPLIED WITH
COMPUTER)
21121225
(SUPPLIED
WITH MONITOR)
34038701
61138123
(SUPPLIED
WITH MONITOR)
+5 VDCR
RTSb
>
DSRb
<
RIb
<
>
CTSb
DTRb
TXDb
<
>
RXDb
>
DCDb>
GND
34087602 TO INTERCONNECT
BOARD P4 SHEET 2
+12 V DC
Y
GND
GND
B
B
+12 VDC
GND
GND
+5 VDCR
B
Y
B
R
B
FAN
FAN
ASSEMBLY
22216401
30934213
W
R
B
R
+12 VDC
GND
GND
+5 VDCR
B
Y
B
FOR EQUIVALENT ENGINEERING DRAWING, SEE 21871075-Q7 REV C
TO 4 CH PREAMPLIFIER
MAIN STEREO INPUT
SHEET 3

Table of Contents

Related product manuals