EasyManua.ls Logo

Siemens 3RS2 - Circuit Diagrams; Using the 3 RS25 Analog Device to Implement a Simple 2-Step Controller

Siemens 3RS2
120 pages
Print Icon
To Next Page IconTo Next Page
To Next Page IconTo Next Page
To Previous Page IconTo Previous Page
To Previous Page IconTo Previous Page
Loading...
Circuit diagrams
10
10.1 Using the 3RS25 analog device to implement a simple 2-step
controller
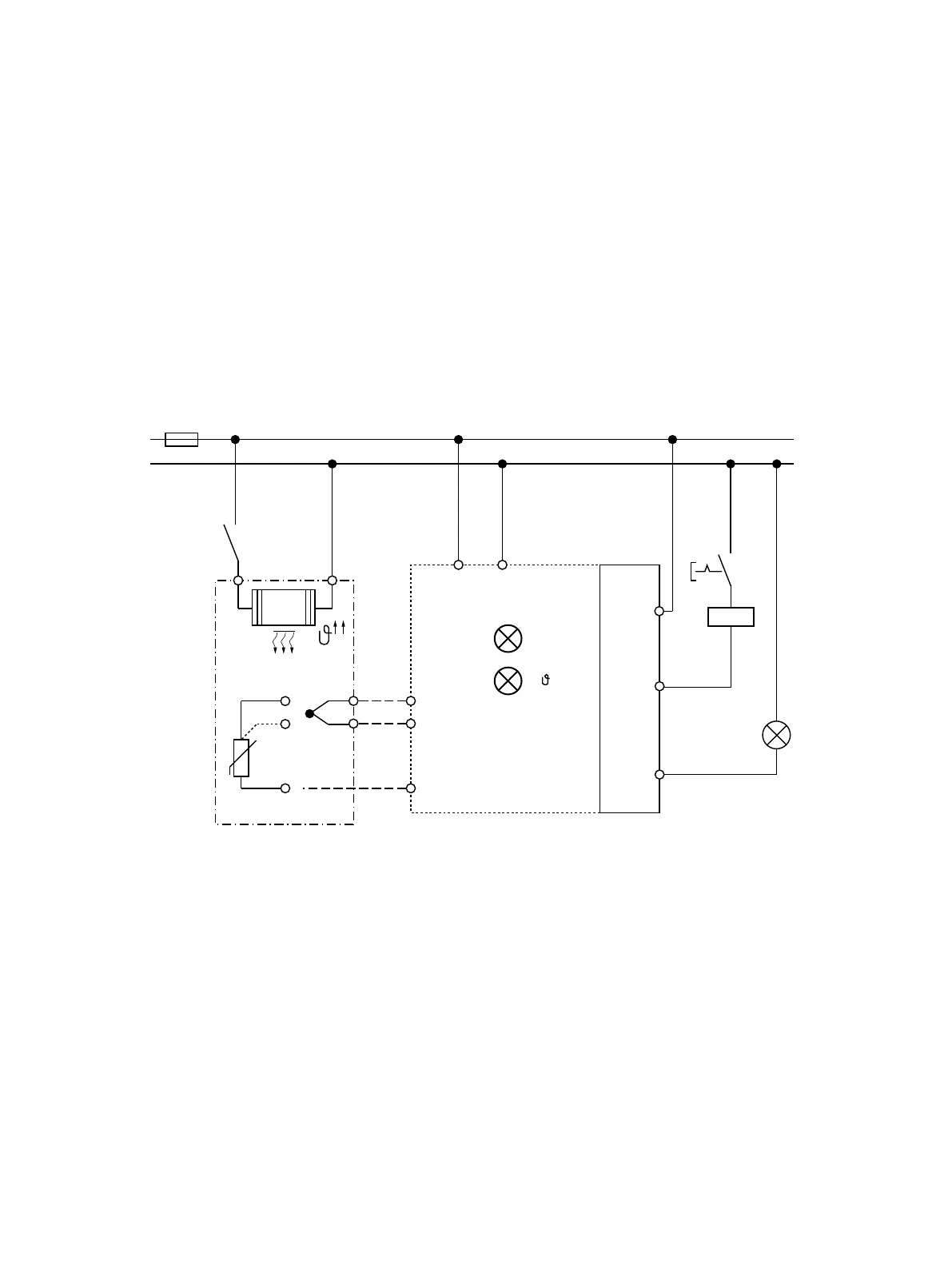
Example of wiring: Two-step heating control
The 3S25 analog device can be used to implement a simple two-step controller.
5HDG\
&
$
9/Ù
$
12
1&
77
7&-.
77
7
37
6
.
.
91Ù
Figure 10-1 Simple two-step heating control
Terminals:
Supply voltage: A1, A2
Resistance sensors: T1, T2, T3
Thermocouples: T+, T-
Output/actuator: 14 N0, 11 C (change-over contact's NO contact)
Signaling output: 12 NC, 11 C (change-over contact's NC contact)
Operating principle:
If the temperature set on the device is undershot, the output relay connects the heating.
3RS2 temperature monitoring relay
Equipment Manual, 02/2022, A5E42462552002A/RS-AB/002 71

Table of Contents

Related product manuals