EasyManua.ls Logo

Siemens CPU 948 - Page 96

Siemens CPU 948
548 pages
Print Icon
To Next Page IconTo Next Page
To Next Page IconTo Next Page
To Previous Page IconTo Previous Page
To Previous Page IconTo Previous Page
Loading...
Note
Load operations do not affect the condition codes.
Transfer operations clear the OS bit.
When a byte or word is loaded the extra bits are cleared
in ACCU 1.
Example 2:
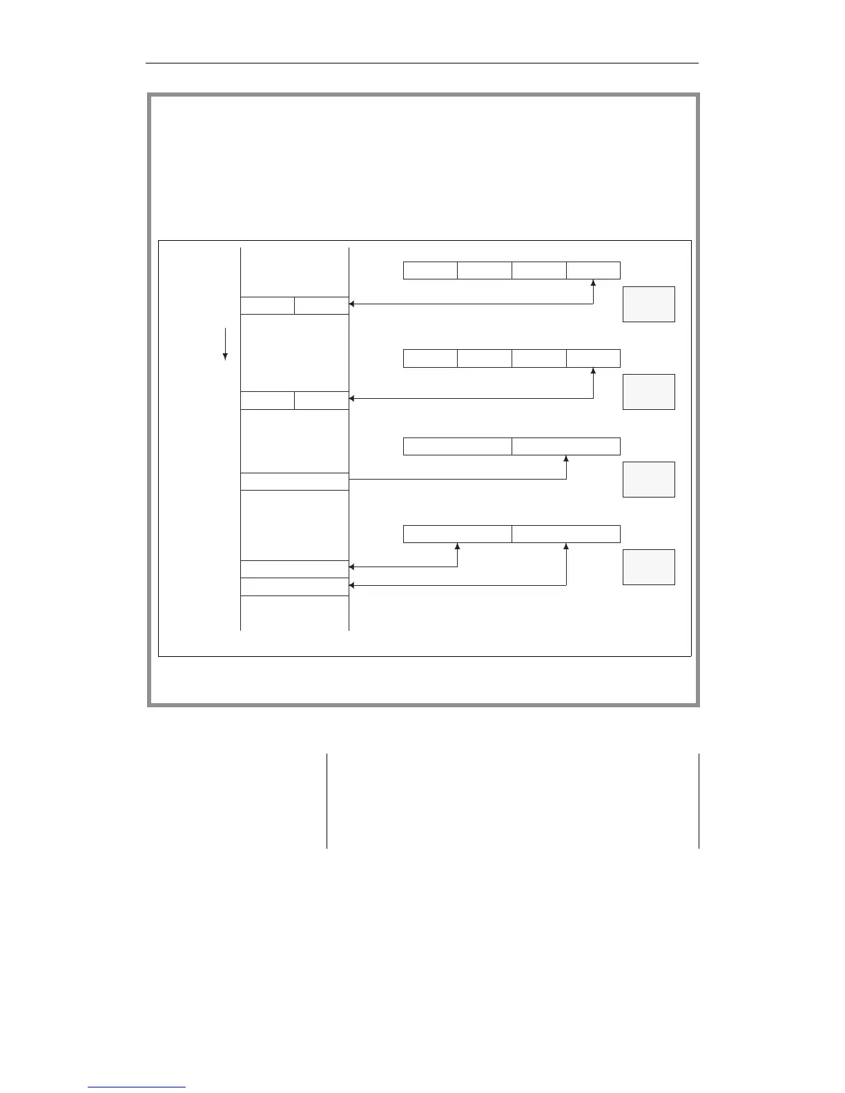
Fig. 3-7 illustrates the loading/transfer of a byte, word or double word
from/into a memory area organized in
words.
:L DR i load the right byte of data word i into ACCU-1-LL
:L DL j load the left byte of data word j into ACCU-1-LL
:L DW k load data word k into ACCU-1-L
:L DD l load data words l and l+1 into ACCU 1
l
l+1
k
31 23 15 7 0
31 23 15 7 0
31 15 0
31
15
0
ACCU 1
ACCU 1
ACCU 1
ACCU 1
15 0
l
l+1
k
j
0
00i
000
1) 1) 1)
0
1) 1) 1)
1)
left byte
Data word j
LDRi
TDRi
LDLj
TDLj
LDWk
TDWk
LDDl
TDDl
right byte
Data word i
Addresses
in
ascending
order
1)
only with load operations
Fig. 3-7 Load and transfer operations in a word-oriented memory area
Basic Operations
CPU 948 Programming Guide
3 - 24 C79000-G8576-C848-04

Table of Contents

Related product manuals