EasyManua.ls Logo

Siemens SIMATIC IPC PX-39A - Page 96

Siemens SIMATIC IPC PX-39A
124 pages
To Next Page IconTo Next Page
To Next Page IconTo Next Page
To Previous Page IconTo Previous Page
To Previous Page IconTo Previous Page
Loading...
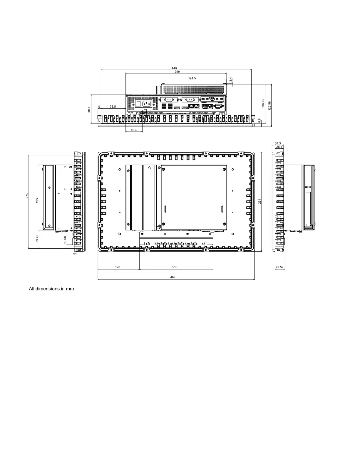
Dimension drawings
9.2 Dimension drawing of 19" device with capacitive multi-touch screen
SIMATIC IPC PX-39A
96 Operating Instructions, 08/2022, A5E51699601-AA
Device with expansion card

Table of Contents

Related product manuals