EasyManua.ls Logo

Siemens SIPROTEC 7SS523 V3.2 - Page 118

Siemens SIPROTEC 7SS523 V3.2
430 pages
To Next Page IconTo Next Page
To Next Page IconTo Next Page
To Previous Page IconTo Previous Page
To Previous Page IconTo Previous Page
Loading...
Functions
102
7SS52 V4 Manual
C53000-G1176-C182-1
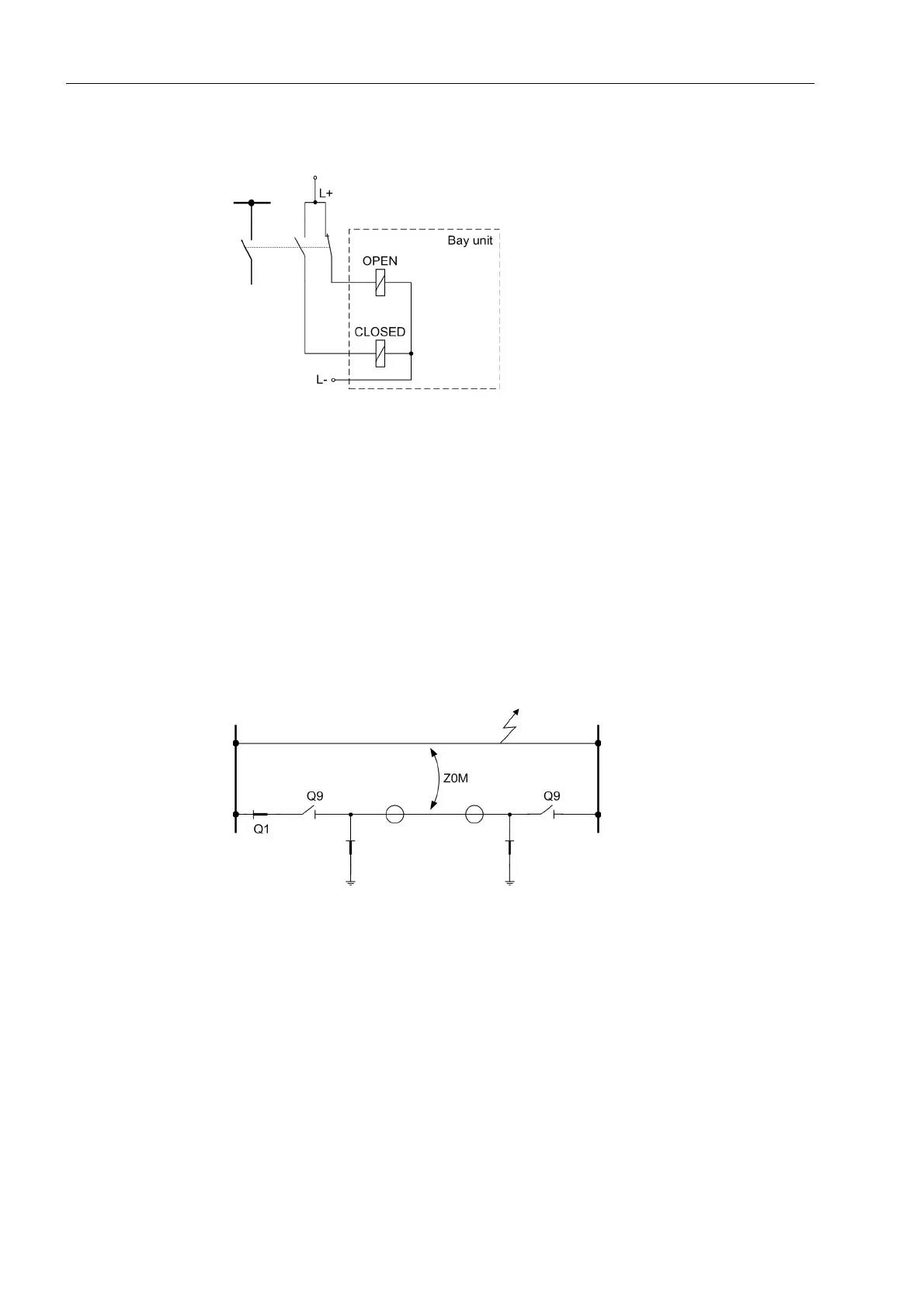
Figure 5-9, page 102 shows the basic connection scheme.
Figure 5-9 Isolator status indication
The isolator states of each feeder are indicated in the bay units 7SS523 by red or
green LEDs. The preselection can be seen in Table A-29, page 390.
The isolator replica of the entire plant can be visualized in graphic form using the
DIGSI Plant Visualization.
Recognition of the
feeder isolator sta-
tus
With parallel lines, due to the short-circuit current, a current can be induced in the
switched-off and earthed line, which is processed as differential current in the busbar
protection without Q9.(Figure 5-10, page 102). The protection sees a current in the
zero sequence system of the earthed feeder.
Integrating the feeder isolator (Q9) into the isolator logic prevents spurious tripping by
the 7SS52 V4.
Figure 5-10 Parallel feeders
The 7SS52 V4 is configured to identify an isolator automatically as a line isolator.
If an isolator is configured as line isolator, the feeder bay will only be allocated to a bus
zone if both the corresponding bus isolator and the feeder isolator are closed.

Table of Contents

Related product manuals