EasyManua.ls Logo

Simrad GC80 Compact MK2 - Power Supply Unit (Option)

Simrad GC80 Compact MK2
121 pages
Print Icon
To Next Page IconTo Next Page
To Next Page IconTo Next Page
To Previous Page IconTo Previous Page
To Previous Page IconTo Previous Page
Loading...
Simrad GC80/85 Compact MK2 Gyro Compass
988-12718-003 44
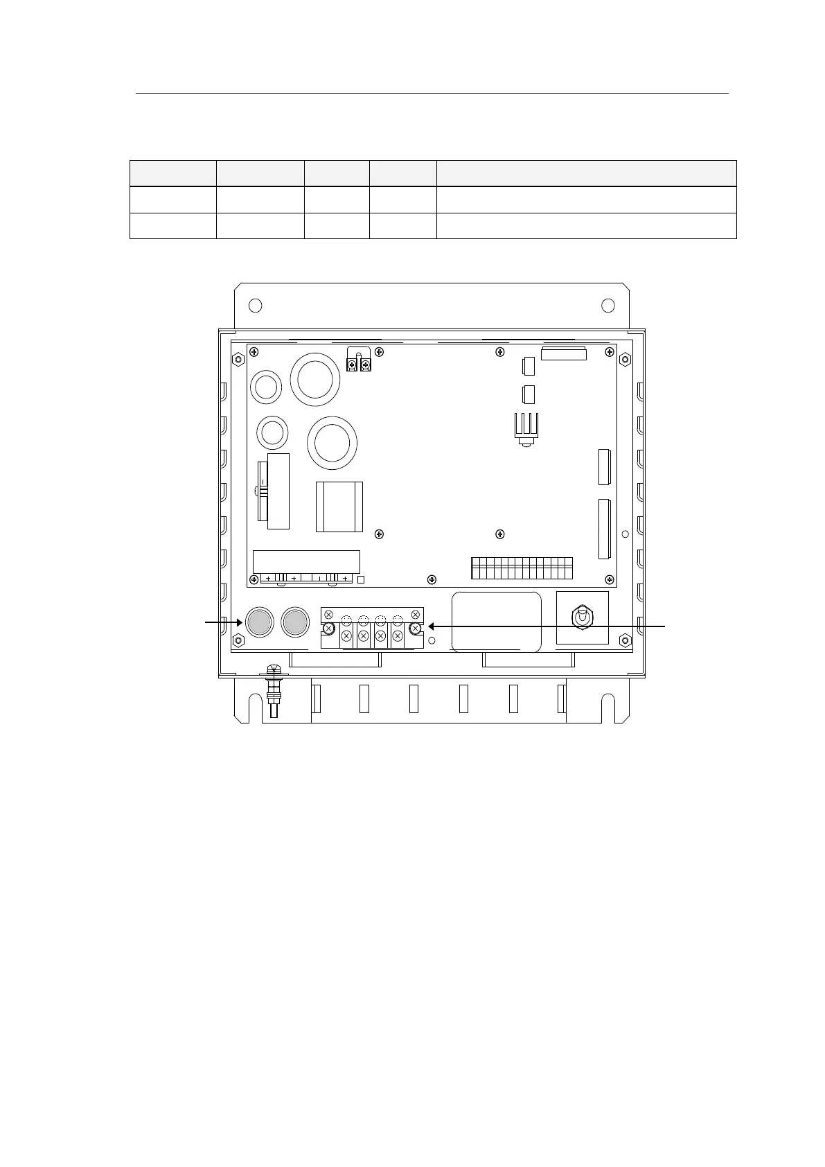
Power supply unit (option)
FUSE NO CAPACITY TB-NO SIGNAL DESCRIPTION
F201 6.3A TB201 2AC1/2 Main power supply
F202 20A TB201 2B+/- Emergency power supply
F201 F202
WARNING Make sure that power is disconnected from TB201
before any fuses are replaced.
The fuses in the Power Supply unit are located inside a fuse holder.
1 Open the fuse holder by pressing and turning the fuse holder edge
counter-clockwise with a screwdriver.
2 Replace fuse F201 and F202, and close the holder by turning it
clockwise.
F201 (6.3 A)
F202 (20 A)
TB201

Table of Contents

Related product manuals