DSC-S70
4-9 4-10
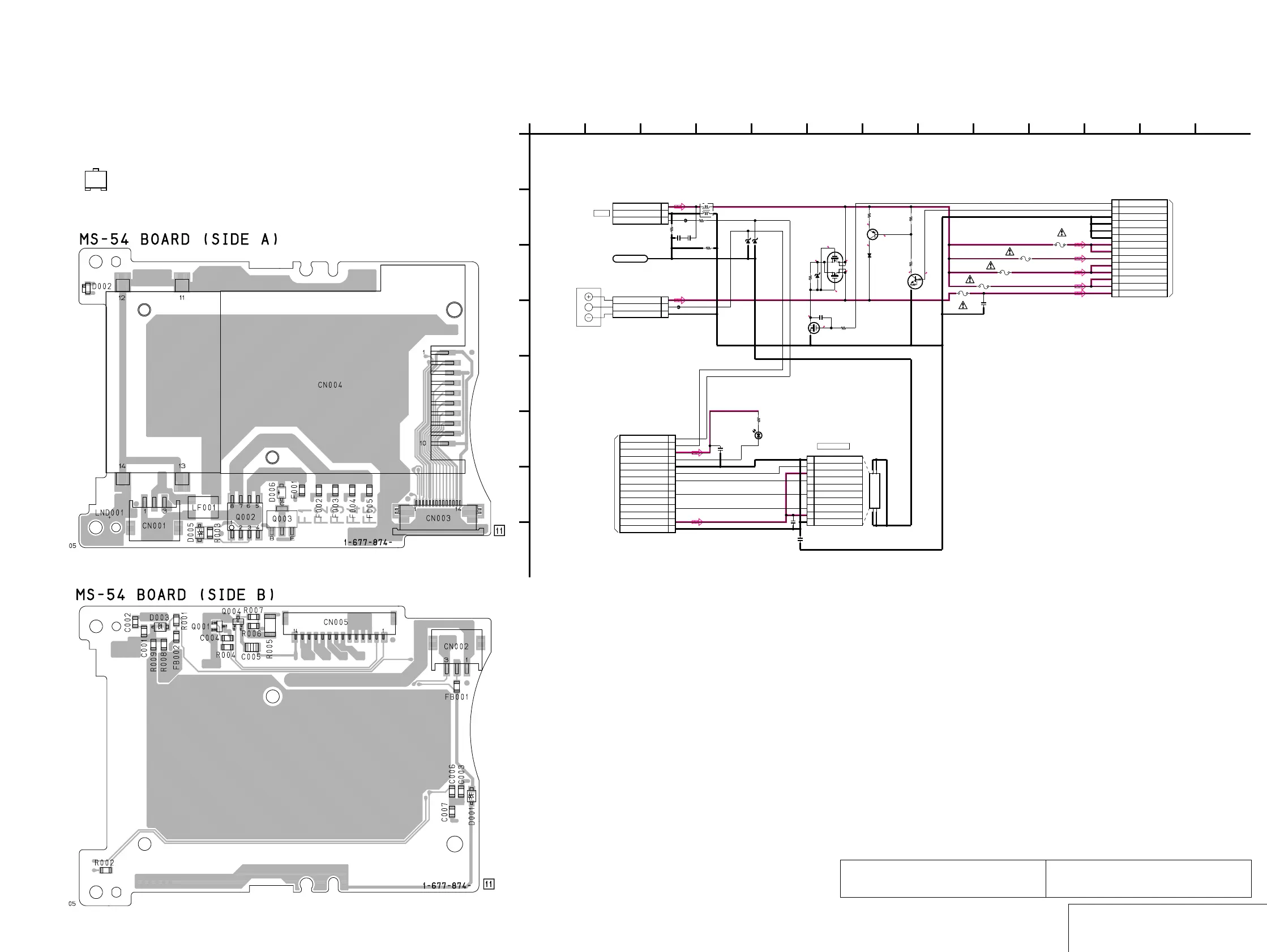
FU/MEMORY STICK
MS-54
MS-54 (FU, MEMORY STICK) PRINTED WIRING BOARD AND SHEMATIC DIAGRAM
– Ref. No.: MS-54 board; 2,000 series –
• For Printed Wiring Board.
• There are few cases that the part isn't mounted in this model
is printed on this diagram.
• Chip transistor
EB
C
The components identified by mark 0 or dotted
line with mark 0 are critical for safety.
Replace only with part number specified.
Les composants identifiés par une marque 0 sont
critiques pour la sécurité. Ne les remplacer que
par une piéce portant le numéro spécifié.
NO MARK:STILL/PB MODE
7.8
8
7.8
8.3
8
7.8
0
8.2
8.2
7.6
0
3.2
LF001
1.4A/32V
F003
XX
C005
SI4963DY-T1
Q002
3216
10
R005
470k
R003
FB002
MA8120-TX
D005
1k
R001
1.4A/32V
F004
6800
R007
3P
CN002
1BATT_UNREG
2BATT_SIG
3BATT_GND
1608
1M
R004
FB001
1SS357-TPH3
D006
0.022u
C004
2SB1122-ST-TD
Q003
1.4A/32V
F002
SSM3K03FE(TPL3)
Q001
UN9213J-(K8).SO
Q004
1k
R006
1.4A/32V
F001
14P
CN005
1
2
3
4
5
6
7
8
9
10
11
12
13
14
XX
C002
XX
C001
1k
R002
1.4A/32V
F005
110
CN004
10P
VSS
1
BS
2
VCC
3
DIO4
N.C
5
INT
6
N.C
7
SCLK
8
VCC
9
VSS
10
CL-270HR-C-TS
D002
LND001
FLAME_GND
0.1u
C003
3P
CN001
1ACV_UNREG
2ACV_GND
3BATT/XEXT
14P
CN003
1
2
3
4
5
6
7
8
9
10
11
12
13
14
0.1u
C006
MA8082-(K8).S0
D001
XX
R008
0
R009
2200p
C007
MA8082-(K8).S0
D003
1
A
8
1
2
6
7
REG_GND
REG_GND
FAST_CHARGE
INIT_CHARGE_ON
4
53
(ACCESS LED(RED))
REG_GND
REG_GND
UNREG5(ST_UNREG)
UNREG1(BATT_UNREG)
UNREG4(BL_UNREG/ACV)
UNREG2(D3.2/1.8V)
UNREG5(ST_UNREG)
UNREG2(D3.2/1.8V)
UNREG3(TRANS/A4.9)
UNREG3(TRANS/A4.9)
XMS_IN
REG_GND
MS_BS
MS_DIO
ACCESS_LED
MS_VCC
GND_GARD
MS_SCLK
BATT_SIG
GND_GARD
BATT/XEXT
A_4.9V
REG_GND
GND_GARD
FU/MEMORY STICK (FU/MS BLOCK)
11
E
72
B
38131056
F
05
4
H
G
9
C
D
MS-54 BOARD
12
MEMORY STICK
Q002,003
BATTERY
CHARGE/DISCHARGE
SWITCHING
SWITCHING
SY-58 BOARD (6/8)
(SEE PAGE 4-25)
CN001
(SEE PAGE 4-43)
BATTERY
TERMINAL
DC IN
DD-141 BOARD (1/3)
XX MARK:NO MOUNT
-REF.NO.:2,000 SERIES-
S
BT901
CN704
(THROUGH THE
FP-024 FLEXIBLE)
(THROUGH THE
YP-052 HARNESS)