EasyManua.ls Logo

Sony HCD-J3MD - Main Section

Sony HCD-J3MD
96 pages
Print Icon
To Next Page IconTo Next Page
To Next Page IconTo Next Page
To Previous Page IconTo Previous Page
To Previous Page IconTo Previous Page
Loading...
HCD-J3MD
4848
REC
BIAS
BIAS
TRAP
R-CH
R-CH
R CH
BIAS
OSC
Q462,463
RV440
Q461
TC +7V
C438,L437
ERASE
HEAD
REC/PB
HEAD
PB(L)
LEVEL
PB EQ
AMP
IC431
RV431
IC432
REC/PB SWITCH
REC
EQ
BIAS
SW
DOLBY
B
NORM
CROM
REC(L)
LEVEL
RV401
IC401
DOLBY NR/REC EQ AMP
40
1
2
3
4
48
46
A
B
70
120
PB
REC
DOL
PAS
PB
REC
36
33
32
38
39
CD-L
SPEAKER
J602
RY881
L
R
TM881
AM
FM 75
FM 300
ANTENNA
TUNER UNIT
L
R
STEREO
TUNED
DO
DI
CLK
CE
MUTE
STEREO
TUNED
DO
DI
CLK
CE
MUTE
R-CH
LINE
IN
R-CH
MD-L
MD-REC-L
I2C SDA
I2C SCL
MD-LEVEL L
RESET
P.DOWN
43
SELECT
SWITCH
14
12
13
9 10
BA
IC302
INPUT SELECTOR
37
38
39
36
SELECT
SWITCH
MICON
INTERFACE
22 2021
25
35
26
LAT
CLK
DATA
BASS
R-CH
IC301
DIGITAL SOUND
CONTROLLER
TC
CD
MD
TU
STEREO
TUNED
DO
DI
CLK
CE
MUTE
I2C SDA
I2C SCL
MD-LEVEL L
CD-RESET
59
50
STEREO
BIAS ON/OFF
2019
B NORM/CROM/METAL
ALC ON/OFF
15
RM ON/OFF
22
NR ON/OFF
23
REC PB/PASS
24
LM ON/OFF
25
79
ALC
76
BIAS
75
REC MUTE
74
NR ON/OFF
73
R/P PASS
72
LM ON/OFF
MS OUT
26
65
AMS IN
SWITCH
Q471,472
CAPM CNT1
69
78
TC RELAY
B HALF
93
B SHUT
2
B PLAY SW
80
SWITCH
Q473,474
B TRG
68
PACK
CrO2
F.REC
R.REC
SENSOR
PLAY SW
CAP M+
16
TRIG M+
TC MOTOR
BLOCK
51
TUNED
54
ST-DIN
53
ST-DOUT
55
ST-CLK
52
ST-CE
49
ST-MUTE
30
I2C-SDA
29
I2C-SDL
94
MD-REC-L
45
FUNC-SEL1
47
62DATA
48
62CLK
38
62LAT
6
TA MUTE
DATA
CLK
LAT
27
PROTECT IN
MUTE
CONTROL
Q552
MUTE SW
Q801
MUTE SW
Q551
MUTE SW
Q841
DBFB SW
Q301
DBFB DET
D881
POWER
AMP
IC801
1
10
8
PROTECT SW
Q872,873
OVER LOAD
DETECTOR
Q802,871
RELAY
DRIVE
Q881
HEADPHONES
J601
R-CH
R-CH
1
STK POWER
3
F-RY
4
HEADPHONE
IC501
MASTER
CONTROL
SQ-DATA IN
32
SENS
56
CD-DATA
81
CD-LAT
58
CD-CLK
82
SCOR
19
SQ-CLK
33
HOLD
57
59
32
56
81
58
82
19
33
57
OPEN SW
71
IN SW
70
LOAD IN
67
LOAD OUT
66
VOL A
86
MOTOR
DRIVE
IC211
6 5
2
10
M
M103
LOADING
MOTOR
VOL B
87
XIN
15
ROTARY
ENCODER
S601
VOLUME
..
...
40 41
44 63 60 61
89 91
KEY 0
KEY 2
S602-620
23 26
LED
DRIVE
Q620-630
KEY 2
LED
STANDBY
39
D601-608
D610,611
XOUT
13
SUB XIN
10
SUB XOUT
11
FL-RESET
34
X501
16MHz
X502
62.768kHz
FL-CHIP SELECT
36
FL-CLK
37
FL-DATA
35
59 33 31 24
.
13
RST
14
CS
15
SCK
16
DATA
42
FL-ON
11 1 64 62
.
DIG1
DIG14
DIG0
12
DIG15
61
BUFFER
Q601
BUFFER
Q602
SEG0
SEG34
FLUORESCENT
INDICATOR TUBE
FL601
VF
VF
RY991
AC
IN
RELAY
DRIVE
Q991
T900
POWER
TRANSFORMER
VF SW
Q972,973
VF
VF
SWITCH
Q974
SWITCH
Q975,976
RECT
D975-978
RECT
D971-974
+5.6V
REG
1
3
2
IC908
D908
CHARGER
Q908
BT921
BACKUP
BATTERY
D911
D910
D909
BACKUP +2.7V
BACKUP +5V
SYS +5V
-30V REG
Q971,D979,980
SWITCH
Q542
VP (-30V)
RECT
D992,993
AC OFF
DET
1
3
IC941
D941
Q942
AC ON
RESET
Q941
S901
RESET
D944
D945
T901
SUB
TRANSFORMER
RECT
D982-985
RECT
D981
RECT
D832
+B
-B
+12V
REG
1
3
IC901
+12V
REG
1
3
IC903
-7V
REG
2
3
IC902
+7V
REG
1
3
IC909
TA +7V
TC +7V
TC M+12V
TC -7V
+5V
REG
1
3
IC907
TC +5V
MD M+5V
+5V
REG
1
3
IC906
CHARGER
Q904
D904
D905
D906
BACKUP 3.3V
SYS +3.3V
A +3.3V
LED,MD M+5V
+7V
REG
1
3
IC904
CD M+7V
+5V
REG
1
3
IC905
SWITCH
Q902
SWITCH
Q903
A +3.3V
CD D+5V
A +5V
MD
RESET
5
3
IC931
RESET
SWITCH
Q931
MD RESET
SWITCH
Q932
12
RESET
22
AC-CUT
43
POWER-ON
28
MD-RESET
D947
D943
CD-POWER
5
FFM
FCD
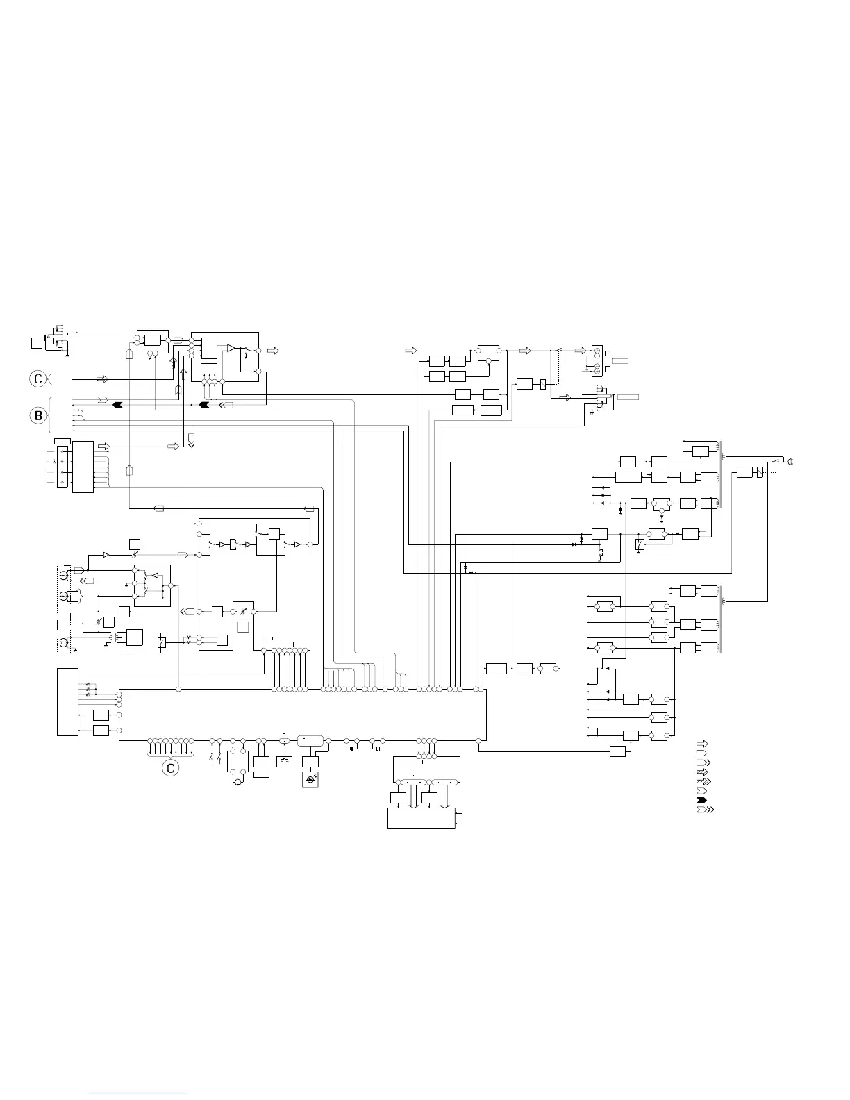
RCH is omitted
• Signal Path
FCD iDIGITAL OUT j
FPB iTAPE j
FREC iTAPE j
FPB iMD j
FREC iMD j
FPB iDIGITAL OUT j
BD (CD) SECTION
BD (MD)
SECTION (2/2)
BD (CD) SECTION
(Page 45)
(Page 47)
(Page 45)
– MAIN SECTION –

Table of Contents

Related product manuals