EasyManua.ls Logo

TGW NBC - Guardrail Mounting on Nbc

Default Icon
129 pages
Print Icon
To Next Page IconTo Next Page
To Next Page IconTo Next Page
To Previous Page IconTo Previous Page
To Previous Page IconTo Previous Page
Loading...
NBC™ Flat Belt - IOM
P/N: 1118140 Rev: 07/29/2020 Page 49 of 129
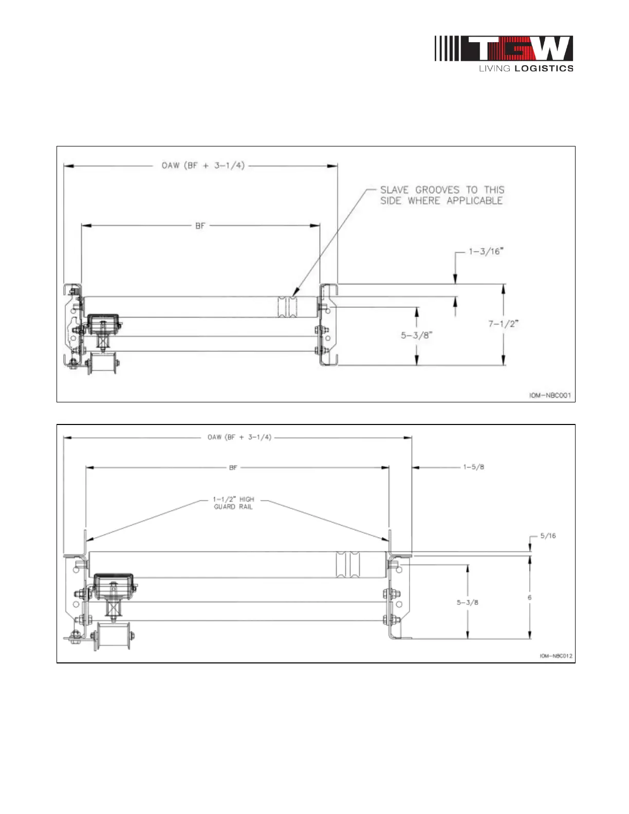
1.26: GUARDRAIL MOUNTING ON NBC
NBC can be supplied with rollers low which uses the CRUZ side channel 1 ½” high guardrail. If C6
channel is supplied, any of several height angle guardrail can be used.
CRUZchannel side frame acts as a guardrail
Use 1-1/2" angle for C6 channel guardrail
Use any of several height angle guardrails on C6 channel depending on photoeye placement, and
conveyor usage.
For all elevations requiring high guardrail, the NBC is designed to use adjustable guardrail. The
configurations and associated part numbers are shown below.

Table of Contents

Other manuals for TGW NBC

Related product manuals