EasyManua.ls Logo

TOHO TTM-i4N - Proportional Cycle Setting for OUT1; Setting of Anti-Reset Windup

TOHO TTM-i4N
74 pages
Print Icon
To Next Page IconTo Next Page
To Next Page IconTo Next Page
To Previous Page IconTo Previous Page
To Previous Page IconTo Previous Page
Loading...
37
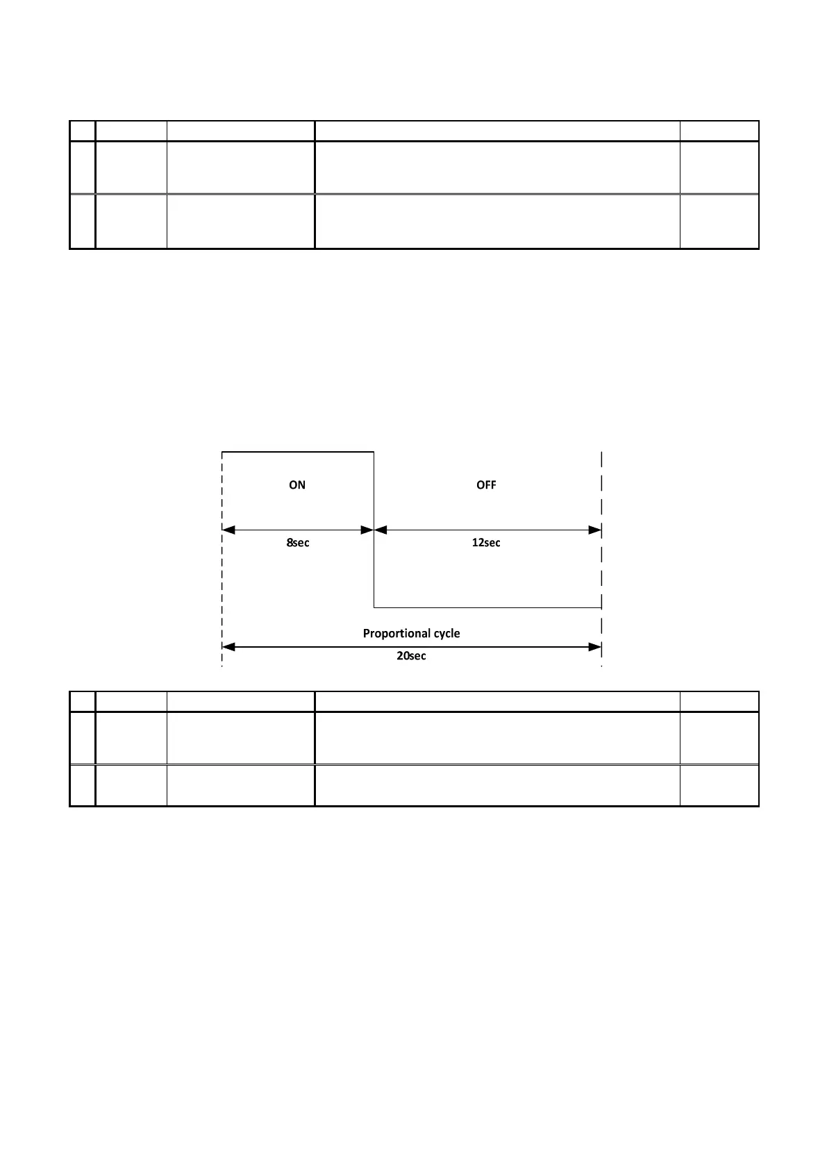
Proportional cycle setting for OUT1
Character
Name
Description
Initial Value
1
SET3
CNT
Setting Mode Selection
Screen
Control Parameter Mode
Settings about Control
15
T1
Proportional cycle
setting for OUT1
Setting Range: 1–120
Setting Unit: Second
201
12
1: A default value of which the type of Output 1 is R (Relay Contact Output).
2: A default value of which the type of Output 1 is P (Voltage Output for SSR Drive).
Sets the proportional cycle of output 1.
Since the output of relay contact point and voltage for SSR drive only have a state of either ON or OFF, proportional
operation cannot be performed. To make the proportional operation work in such a state, the concept is called “Time
Proportional Operation.”
In a time proportional control, the method of turning ON for a fixed period of time and turning OFF for the rest of the time
will be repeated in accordance with the designated proportional cycle (time cycle).
Example: If proportional cycle is 20 seconds and manipulated variable (MV) is 40%
Setting of Anti-reset Windup
Character
Name
Description
Initial Value
1
SET3
CNT
Setting Mode Selection
Screen
Control Parameter Mode
Settings about Control
16
ARW
Setting of Anti-reset
Windup
Setting Range: 0.0–110.0
Setting Unit: %
1100
Sets the maximum value of the calculated reset manipulated variable.
[Sample Setting]
If ARW is set to 50%, the manipulated variable to be accumulated in the reset operation will reach up to 50%.
Anti-reset windup is an operation to suppress the excessive resetting in the reset operation.
If the reset operation is included in the control, it will be used to limit the influence of reset operation so that an overshoot
can be prevented.
Note: Reset action loses its effect if ARW is set to 0%.

Table of Contents