EasyManua.ls Logo

Toro 30410 - Test No. 12: Traction Circuit Reducing Valve (PR) Pressure

Toro 30410
250 pages
Print Icon
To Next Page IconTo Next Page
To Next Page IconTo Next Page
To Previous Page IconTo Previous Page
To Previous Page IconTo Previous Page
Loading...
Groundsmaster 4000--DHydraulic System (Rev. B) Page 4 -- 46
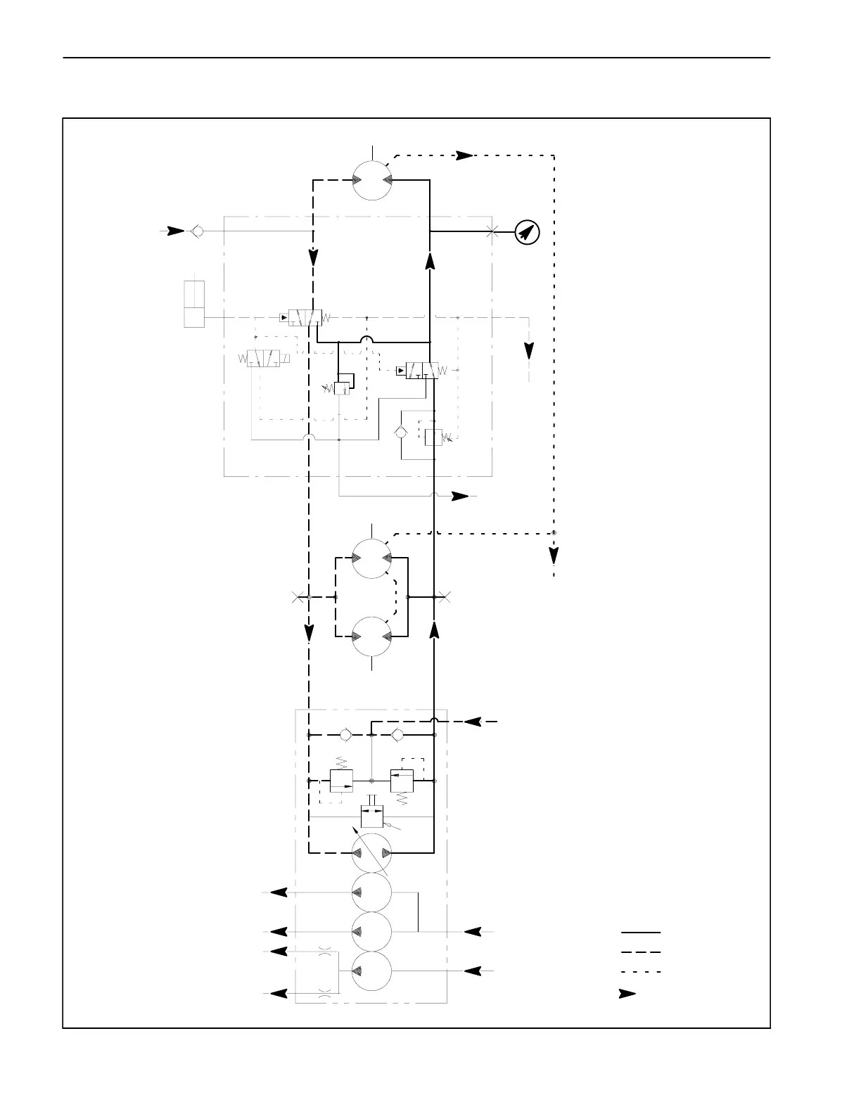
TEST NO. 12: Traction Circuit Reducing Valve (PR) Pressure (Using Pressure Gauge)
Working Pressure
Low Pressure
Return or Suction
Flow
CHG M1
G
G
GAGE
CYL
PD2
CV
PR
CHG
8
3
5B
7
2
5A
SV
PD1
RV5
1.2
T
P1
2.01
FRONT
TOW
VALVE
M2
M1
REAR
P2
1.2
2.48
4000
PSI
5000
PSI
.58
2.48
2.48
CHARGE
TO RESERVOIR
CASE DRAIN
CIRCUIT
CHARGE
CIRCUIT
TO
CHARGE
CIRCUIT
TO LIFT/LOWER CIRCUIT
TO STEERING CIRCUIT
TO PTO (MOW) CIRCUIT
FROM OIL
FROM
FILTER
RESERVOIR
TO RESERVOIR

Table of Contents

Other manuals for Toro 30410

Related product manuals