EasyManua.ls Logo

YASKAWA SGDV - Electronic Gear

YASKAWA SGDV
400 pages
Print Icon
To Next Page IconTo Next Page
To Next Page IconTo Next Page
To Previous Page IconTo Previous Page
To Previous Page IconTo Previous Page
Loading...
5.4 Operating Using Position Control with Pulse Train Reference
5-39
5
Operation
5.4.3 Electronic Gear
The electronic gear enables the workpiece travel distance per input reference pulse from the host controller to
be set to any value. The minimum position data moving a load is called a reference unit.
(1) Electric Gear Ratio
Set the electric gear ratio using Pn20E and Pn210.
If the gear ratio of the motor and the load shaft is given as n/m where m is the rotation of the motor and n is the
rotation of the load shaft,
To move a workpiece 10 mm:
When the Electronic Gear is Not Used:
Calculate the revolutions.
1 revolution is 6 mm. Therefore, 10 ÷ 6 = 1.6666 revolutions.
Calculate the required reference pulses.
1048576 pulses is 1 revolution. Therefore, 1.6666 × 1048576 = 1746928 pulses.
Input 1746928 pulses as reference pulses.
Reference pulses must be calculated per reference. complicated
When the Electronic Gear is Used:
The reference unit is 1μm. Therefore, to move the workpiece 10 mm (10000μm),
1 pulse = 1μm, so 10000 ÷ 1 = 10000 pulses.
Input 10000 pulses as reference pulses.
Calculation of reference pulses per reference is not required. simplified
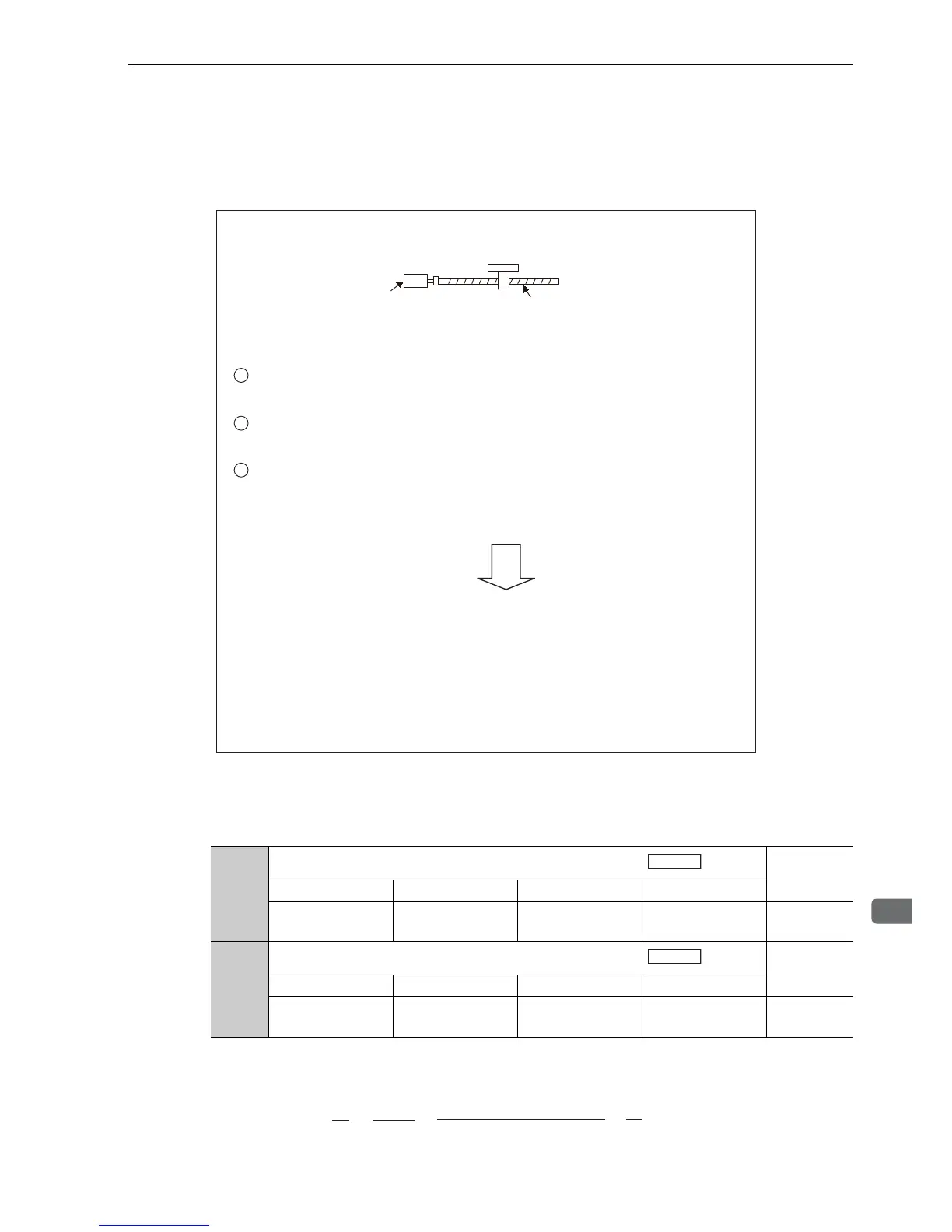
Ball screw pitch: 6 mm
Workpiece
Encoder resolution (20 bit) 1048576
1
2
3
Pn20E
Electronic Gear Ratio (Numerator)
Classification
Setting Range Setting Unit Factory Setting When Enabled
1 to 1073741824
(2
30
)
1 4 After restart Setup
Pn210
Electronic Gear Ratio (Denominator)
Classification
Setting Range Setting Unit Factory Setting When Enabled
1 to 1073741824
(2
30
)
1 1 After restart Setup
Position
Position
Electronic gear ratio:
=
A
B
Pn210
Pn20E
=
n
m
Encoder resolution
Travel distance per load
shaft revolution (reference units)
×

Table of Contents

Related product manuals