EasyManua.ls Logo

YASKAWA SGDV - D01 A Servopack

YASKAWA SGDV
400 pages
Print Icon
To Next Page IconTo Next Page
To Next Page IconTo Next Page
To Previous Page IconTo Previous Page
To Previous Page IconTo Previous Page
Loading...
1.5 Examples of Servo System Configurations
1-17
1
Outline
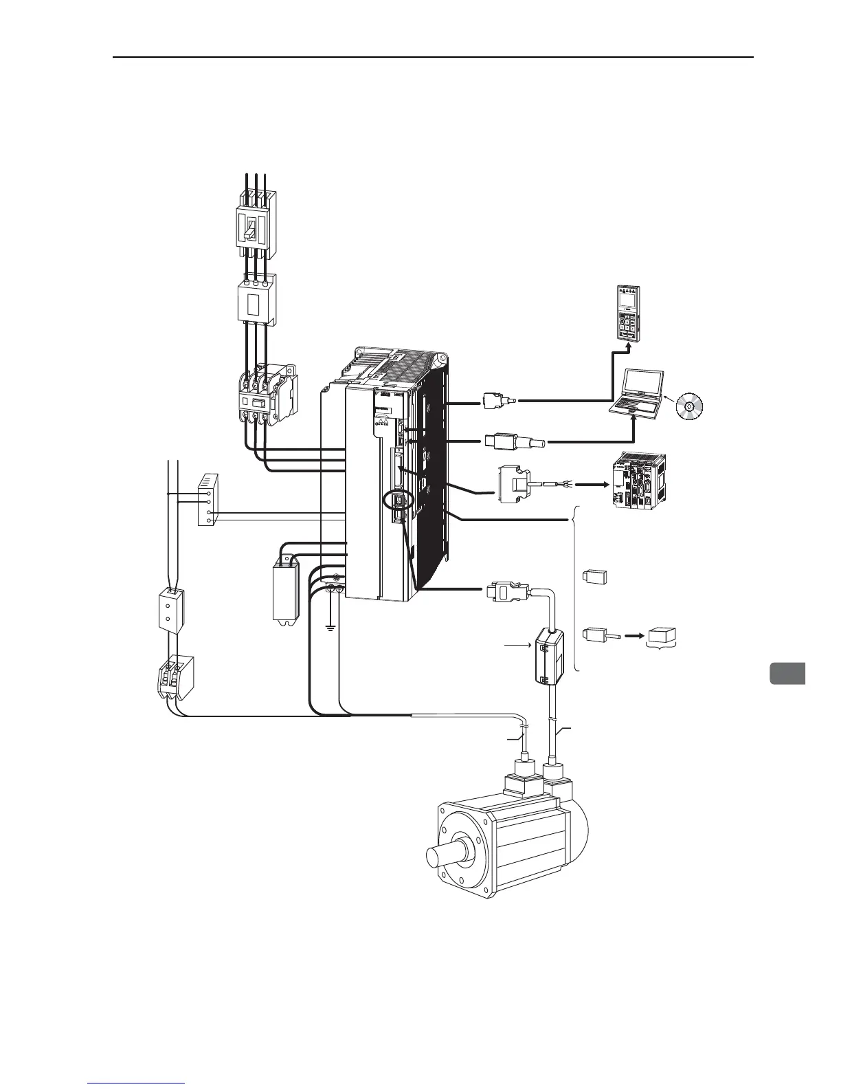
1.5.3 Connecting to SGDV-D01A SERVOPACK
∗1. Use a 24 VDC power supply with a double-shielded enclosure. (The power supply is not included)
∗2. Before connecting an external regenerative resistor to the SERVOPACK, refer to 3.6 Connecting Regenerative Resis-
tors.
∗3. Use a following power supply for 90 V brake. For details, refer to
Σ
-V series Product Catalog (KAEP S800000 42).
For 200 V input voltage: LPSE-2H01-E
For 100 V input voltage: LPDE-1H01-E
Brake power
supply*
3
Battery case
Magnetic contactor
Noise filter
Molded-case
circuit breaker
(MCCB)
Magnetic
contactor
Host controller
I/O signal cable
Power supply
Three-phase 400 VAC
Protects the power
supply line by shutting
the circuit OFF when
overcurrent is
detected.
Used to eliminate
external noise from
the power line.
Used for a servomotor
with a 90 V brake.
Turns the servo
ON and OFF.
Install a surge
absorber.
Turns the brake power supply
ON and OFF.
Install a surge absorber.
(when an absolute
encoder is used.)
Connection cable
for digital operator
Connection cable
for personal computer
Digital
operator
Personal
computer
Regenerative
resistor
*
2
Motor main
circuit cable
Encoder cable
SGMGV/SGMSV
Servomotor
When not using the safety function,
use the SERVOPACK with the safety
function jumper connector
(JZSP-CVH05-E, provided as an
accessory) inserted.
When using the safety function,
insert a connection cable specifically
for the safety function.
Safety function
devices
SGDV-D01A
SERVOPACK
R S T
DC power
supply (24 V
*1
100/200 VAC

Table of Contents

Related product manuals