EasyManua.ls Logo

ABB IRB 920 - Calibrating Axis 3 and Axis 4

ABB IRB 920
1008 pages
Print Icon
To Next Page IconTo Next Page
To Next Page IconTo Next Page
To Previous Page IconTo Previous Page
To Previous Page IconTo Previous Page
Loading...
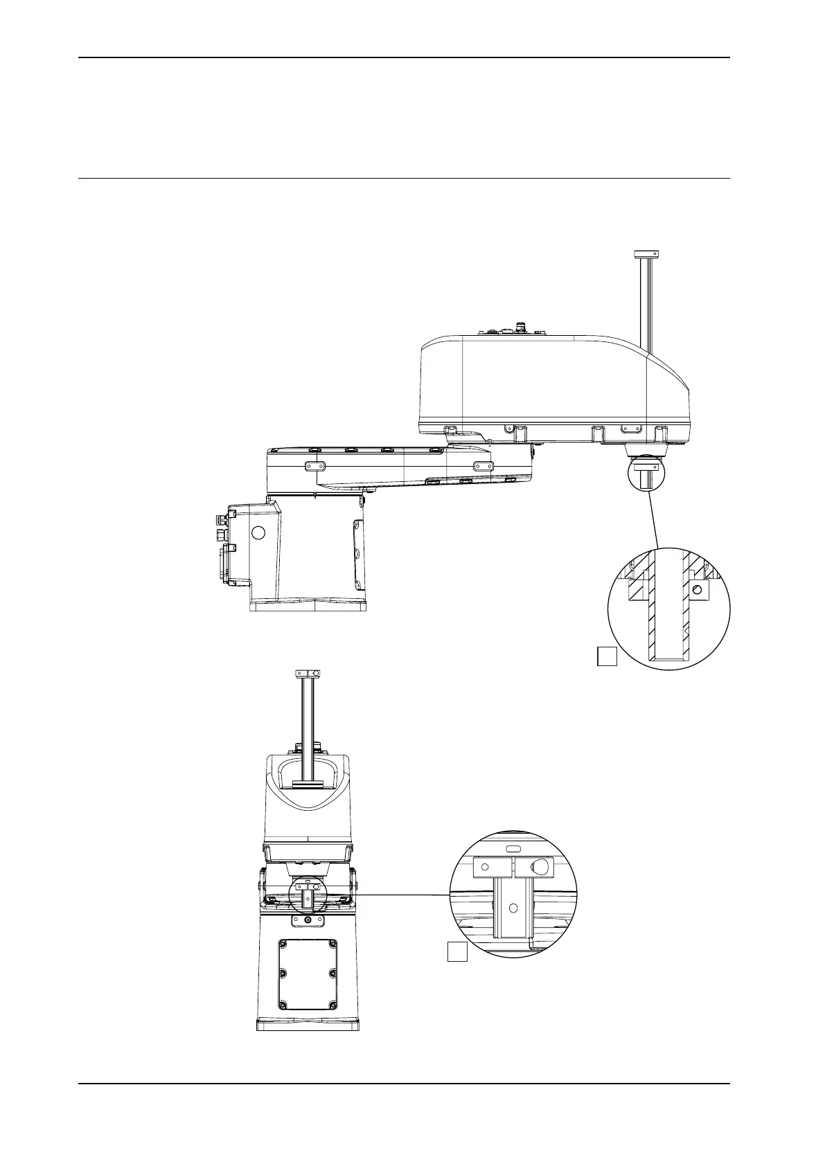
6.5.3 Calibrating axis 3 and axis 4
Calibration position of axis 3 and axis 4
The figure shows axis 3 and axis 4 in calibration position. The axes 3 and 4 are
calibrated together.
4
3
xx2000001165
Continues on next page
970 Product manual - IRB 920
3HAC075721-001 Revision: C
© Copyright 2022 ABB. All rights reserved.
6 Calibration
6.5.3 Calibrating axis 3 and axis 4

Table of Contents

Related product manuals