EasyManua.ls Logo

ABB RER620 - Connections

ABB RER620
584 pages
Print Icon
To Next Page IconTo Next Page
To Next Page IconTo Next Page
To Previous Page IconTo Previous Page
To Previous Page IconTo Previous Page
Loading...
Section 9 1MAC309294-MB F
Other functions
430 RER620
Technical Manual
9.1.4 Connections
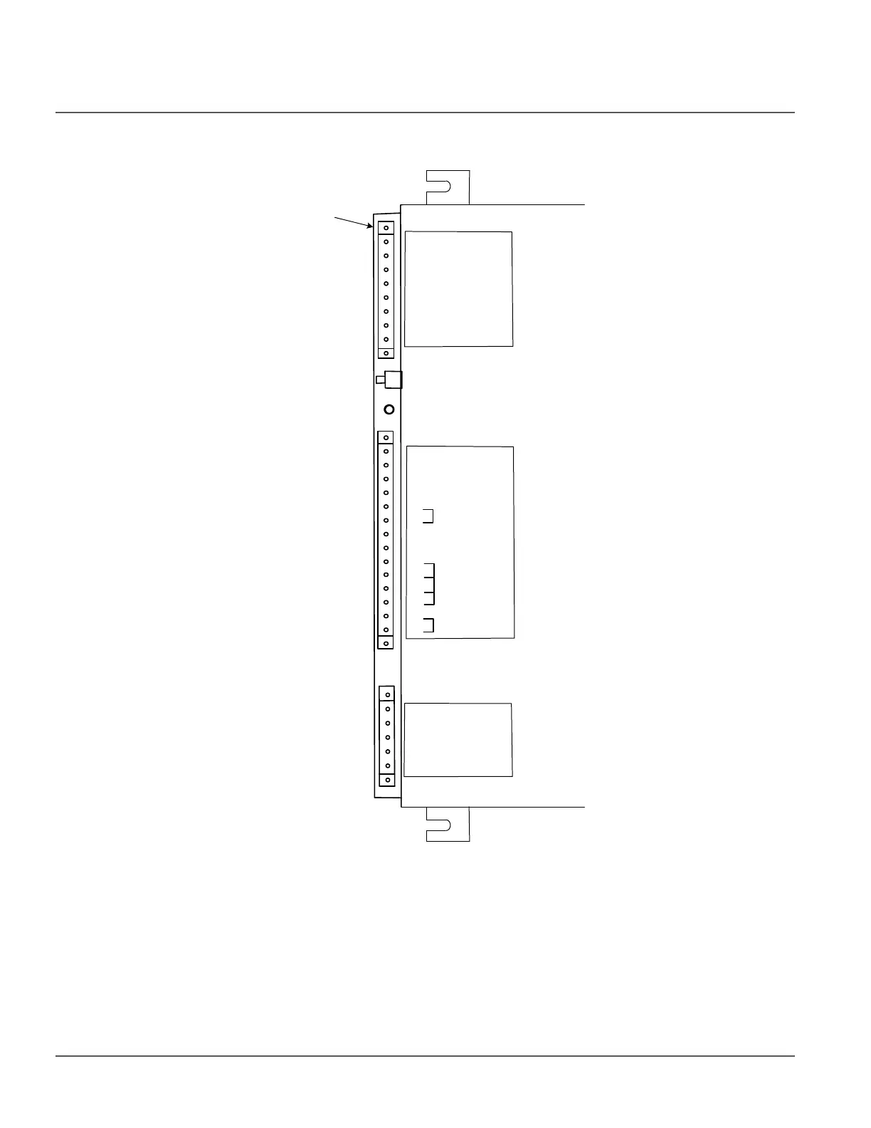
Figure 222: Uninterruptible Power Supply (UPS) connections
Connector W1
Battery Start
Status LED D21
Connector W3
1
2
3
4
EARTH
5
485 COM
- 485
+ 485
No Connection
L2 (neutral)
1
2
3
4
5
6
+ AUX12/24
7
8
L1
- AUX
+ 60VDC
60 Return
No Connection
No Connection
ALARM N/C
Connector W2
Heater 2
ALARM COM
1
2
3
4
5
6
7
ALARM N/O
8
9
10
11
12
13
14
+ BATTERY
- BATTERY
RETURN
+ BOOST
No Connection
Connect ground
to case screw.
Heater 1

Table of Contents

Other manuals for ABB RER620

Related product manuals