EasyManua.ls Logo

Agilent Technologies E4417A - Page 108

Agilent Technologies E4417A
183 pages
Print Icon
To Next Page IconTo Next Page
To Next Page IconTo Next Page
To Previous Page IconTo Previous Page
To Previous Page IconTo Previous Page
Loading...
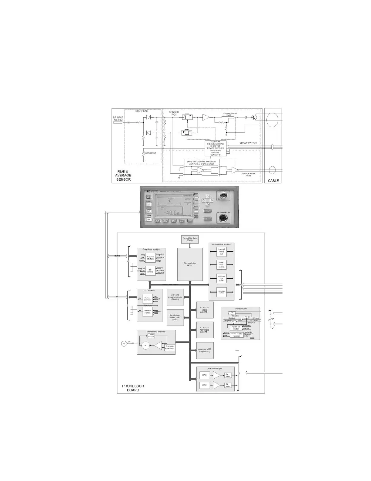
Theory of Operation 4
E4416A/E4417A Power Meters Service Guide 87
Artisan Technology Group - Quality Instrumentation ... Guaranteed | (888) 88-SOURCE | www.artisantg.com

Table of Contents

Other manuals for Agilent Technologies E4417A

Related product manuals