EasyManua.ls Logo

Allen-Bradley 2094-AC05-MP5 - Establishing Noise Zones

Allen-Bradley 2094-AC05-MP5
290 pages
Print Icon
To Next Page IconTo Next Page
To Next Page IconTo Next Page
To Previous Page IconTo Previous Page
To Previous Page IconTo Previous Page
Loading...
Rockwell Automation Publication 2094-UM001J-EN-P - March 2017 37
Plan the Kinetix 6000 Drive System Installation Chapter 2
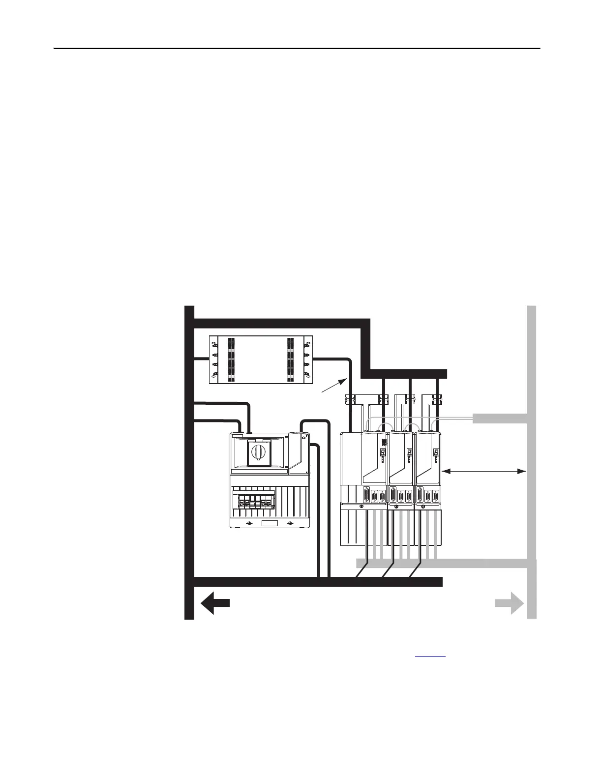
Establishing Noise Zones
Observe these guidelines when the 2094-ALxxS, 2094-BLxxS, or
2094-XL75S-Cx LIM module is used in the Bulletin 2094 system and
mounted left of the IAM module with the AC (EMC) line filter mounted
above the LIM module:
The clean zone (C) is to the right and beneath the Bulletin 2094 system
(gray wireway).
The dirty zone (D) is to the left and above the Bulletin 2094 system, and
above and below the LIM module (black wireway).
The very dirty zone (VD) is from the filter output to IAM module.
Shielded cable is required on the EMC filter (load side) and the braided
shield attached to the clamp provided.
The Sercos fiber-optic cables are immune to electrical noise, but due to
their delicate nature, route them in the clean zone.
Figure 10 - Noise Zones (LIM mounted left of IAM module)
(1) If drive system I/O cable contains (dirty) relay wires, route cable with LIM module I/O cable in dirty wireway.
(2) When space does not permit the 150 mm (6.0 in.) segregation, use a grounded steel shield instead. For examples, refer to the
System Design for Control of Electrical Noise Reference Manual, publication GMC-RM001
.
C
C
D
VD
D
D
D
D
D
D
VD
D
Line Interface Module
Kinetix 6000 System
Dirty Wireway
Clean Wireway
I/O
(1)
and Feedback Cables
Motor Power Cables
Very Dirty Filter/IAM Connections
Segregated (not in wireway)
Route 24V DC I/O
shielded cable.
Route encoder/analog/registration
shielded cables.
Fiber-optic Cable
VAC Load
VAC Line
AC Line Filter
(required for CE)
No sensitive
(2)
equipment within
150 mm (6.0 in.).

Table of Contents

Related product manuals