EasyManua.ls Logo

Bend-Tech Dragon mAchines - Trolley & Chuck Troubleshooting; X-Axis Motor Troubleshooting; X-Axis Will Not Jog

Bend-Tech Dragon mAchines
74 pages
Print Icon
To Next Page IconTo Next Page
To Next Page IconTo Next Page
To Previous Page IconTo Previous Page
To Previous Page IconTo Previous Page
Loading...
35Bend-Tech Dragon
Troubleshooting Guide
Trolley & Chuck Troubleshooting
06
06
Trolley & Chuck
Troubleshooting
6.1 X-Axis Motor Troubleshooting
6.1.1 X-Axis Will Not Jog
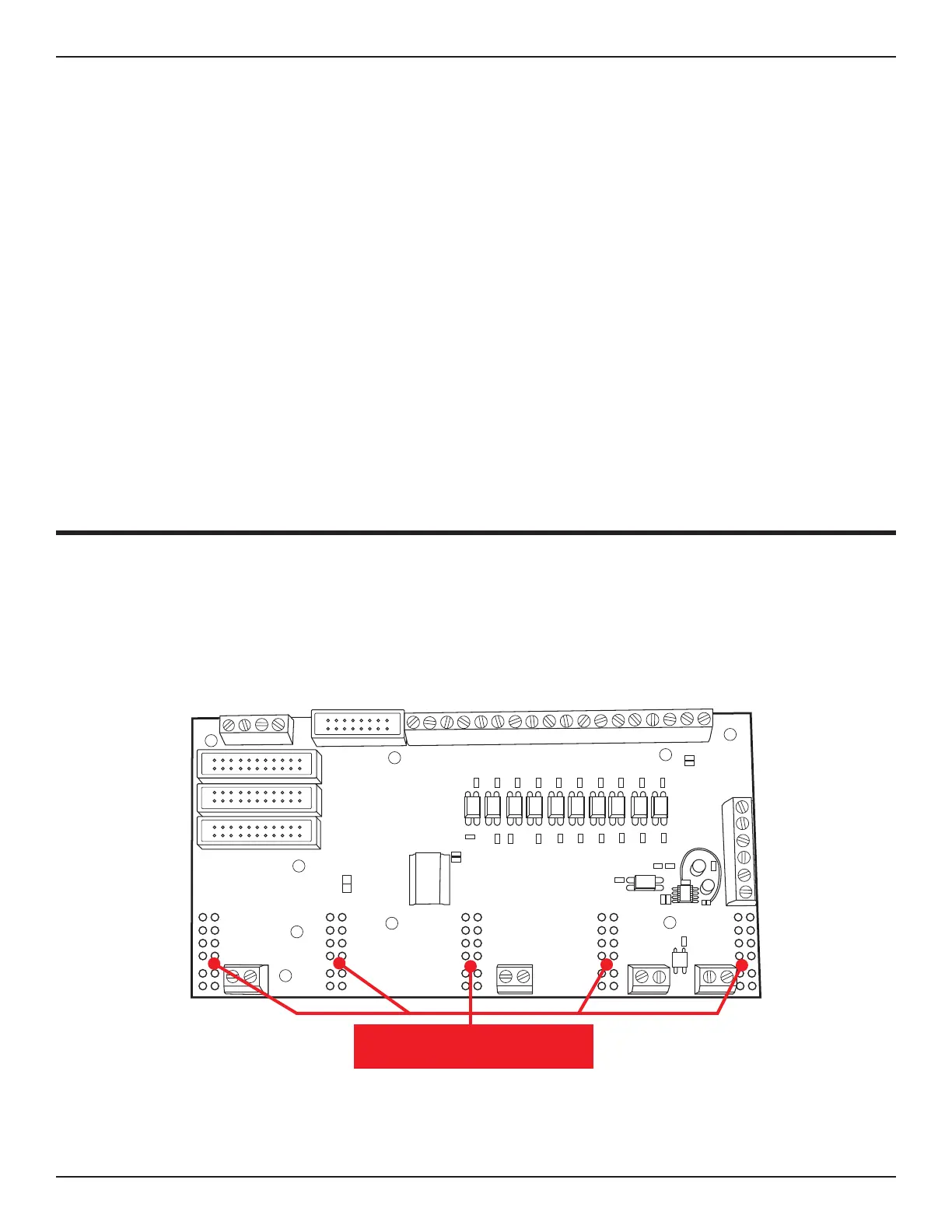
Breakout Board has come unseated from the Motor Drivers
󰀨

Board is seated properly on the motor drivers.
Press here when checking the
Breakout Board

Table of Contents

Other manuals for Bend-Tech Dragon mAchines

Related product manuals