EasyManua.ls Logo

bora M Pure - Preparing Kitchen Units for the Exhaust Air Model; Installation Dimensions; Preparing the Appliance

bora M Pure
62 pages
Print Icon
To Next Page IconTo Next Page
To Next Page IconTo Next Page
To Previous Page IconTo Previous Page
To Previous Page IconTo Previous Page
Loading...
Installation
EN
bora.com 113
9.6.1
Preparing kitchen units for
the exhaust air model
T
The back panel of the floor unit must be adapted for
the exhaust air duct.
T
A minimum clearance of 120 mm between the back
panel of the unit and an adjacent kitchen unit or
room wall must be kept for the air duct.
T
No false floor is necessary below the cooktop.
Adjusting the back panel of the unit
u
Before installation, check the suitability of the floor unit
with regard to the necessary installation dimensions for
the appliance and the planned duct system.
u
If necessary, adjust the position of the back panel
according to the required installation dimensions.
9.6.2
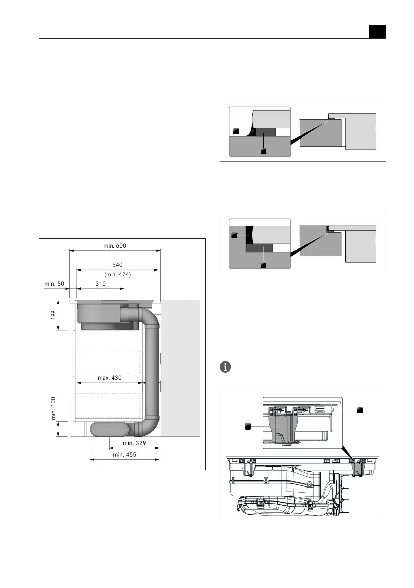
Installation dimensions
Fig.9.9
Installation dimensions for exhaust air,
worktop depth 600 mm
9.6.3
Preparing the appliance
Attaching the sealing tape
u
In the case of surface mounting, attach the enclosed
sealing tape around the outer edges of the underside
of the cooktop. Do not leave any gaps.
u
In the case of flush installation, attach the sealing
tape to the contact surfaces in the worktop cut-out,
even if you are sealing the cooktop with a silicone
sealing compound or similar.
1
2
Fig.9.10
Sealing tape in the case of surface mounting
[1] Black, heat-resistant silicone sealant
[2] Sealing tape
1
2
Fig.9.11
Sealing tape in the case of flush installation
[1] Black, heat-resistant silicone sealant
[2] Sealing tape
Fitting the installation clamps
u
Push 2 installation clamps onto each side of the cooktop
until they come to a stop in the retaining brackets provided.
2 installation clamps must be fitted to each side
of the cooktop.
1
2
Fig.9.12
Fitting the installation clamps
[1] Retaining brackets
[2] Installation clamps

Table of Contents

Related product manuals