EasyManua.ls Logo

bora M Pure - Inserting the Cooktop - Recirculation

bora M Pure
62 pages
Print Icon
To Next Page IconTo Next Page
To Next Page IconTo Next Page
To Previous Page IconTo Previous Page
To Previous Page IconTo Previous Page
Loading...
Installation
EN
118 bora.com
Fig.9.26
Installation dimensions for recirculation
installation variant A, depth of worktop 675 mm
and over
The telescopic pull-out is used to connect the duct
to the back panel of the kitchen unit. This can be
used to flexibly bridge the gap between the
cooktop and the back panel of the kitchen unit
(max. 80 mm). If necessary, the telescopic pull-
out can be extended by a further 105 mm using
the extension PULBTA (available as an accessory).
1234
Fig.9.27
Extending the telescopic pull-out
[1] Air purification box with telescopic pull-out
[2] Telescopic pull-out adhesive tape
[3] Telescopic pull-out extension PULBTA
[4]
Adhesive tape for telescopic pull-out extension PULBTA
u
Remove the protective film from the adhesive tape
on the front of the telescopic pull-out.
u
Attach the extension PULBTA (available as an
accessory including screws for attachment) to the
telescopic pull-out.
u
Remove the protective film from the adhesive tape
on the front of the extension PULBTA.
9.7.9
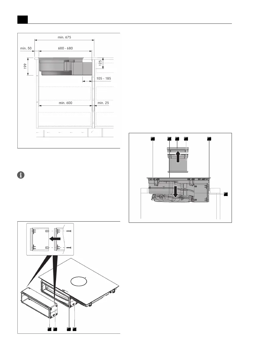
Inserting the cooktop –
recirculation
1 2 3 4 5
6
Fig.9.28
Positioning the cooktop in the centre
[1] Cooktop
[2] Inlet opening
[3] Air inlet nozzle
[4] Stainless steel grease filter
[5] Worktop cut-out
[6] Adhesive tape
u
Before inserting the cooktop, remove the air inlet
nozzle and the stainless steel grease filter.
u
Remove the protective film from the adhesive tape
on the front of the telescopic pull-out.
u
Use the inlet opening as a handle during insertion.
u
Keep the cooktop straight as you lift it into the
worktop cut-out.
u
Insert the cooktop into the centre of the worktop
cut-out.
u
Precisely align the cooktop.

Table of Contents

Related product manuals