EasyManua.ls Logo

BWT AQA perla XL - Einbau; Einbauschema

BWT AQA perla XL
Print Icon
To Next Page IconTo Next Page
To Next Page IconTo Next Page
To Previous Page IconTo Previous Page
To Previous Page IconTo Previous Page
Loading...
13
13
DE
6 Einbau
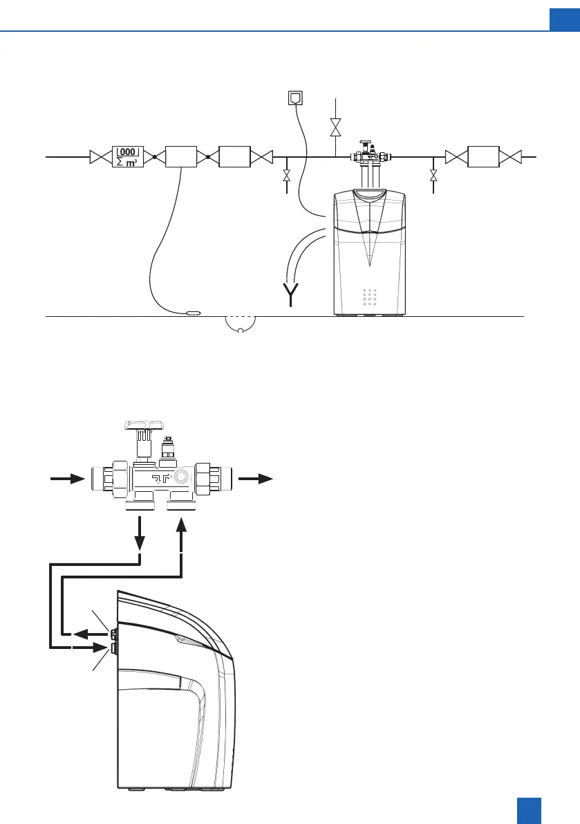
6.1 Einbauschema
Wasserstop, Druckminde-
rer, Dosieranlage optional
erforderlich je nach Be-
triebsbedingungen.
Probenahmehähneerfor-
derlich je nach Anforde-
rungen
Wasser-
stop
Druckmin-
derer
Boden-
sensor
Boden-
ablauf
Probenahmehahn
Filter
Dosier-
anlage
Die Anlage gem. nebenstehendem Schema
anschliessen.
Im Multiblock X ist ein Bypass integriert.
Der Einbau ist in waagerecht und senkrecht verlau-
fende Rohrleitungen möglich.
Bitte die separaten Einbau- und Bedienungsanlei-
tungen für Multiblock und Anschluss-Set DN 32/32
beachten, da sonst im Schadensfall die Gewähr-
leistung erlischt.
EventuellvorhandeneSchmutzpartikeldurchÖff-
nen des Handrades am Multiblock Modul ausspülen.
Beim Anschluss Fliessrichtungspfeile beachten!
Wellrohrschlauch an den Multiblock Ausgang
anschliessenundmitdemHartwassereingang(6)
verbinden.
Wellrohrschlauch an den Multiblock Eingang
anschliessen und mit Weichwasserausgang(5)
dichtend verbinden.
Multiblock X
5
6
Ausgang
zu6
Eingang
von 5

Table of Contents

Related product manuals