EasyManua.ls Logo

Condair Sigma - Functional Description

Condair Sigma
80 pages
Print Icon
To Next Page IconTo Next Page
To Next Page IconTo Next Page
To Previous Page IconTo Previous Page
To Previous Page IconTo Previous Page
Loading...
12 Product Overview
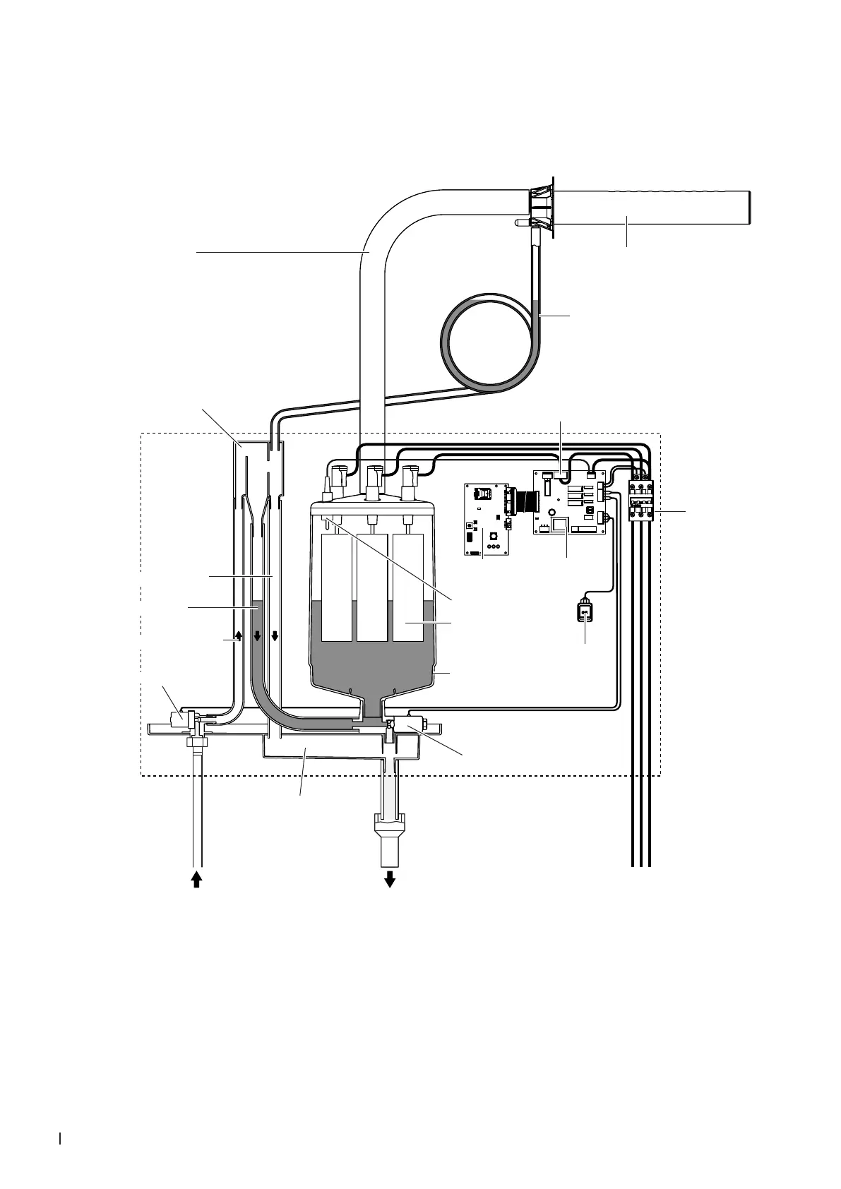
3.4 Functional description
The steam generator Condair Sigma is a pressureless steam generator that utilizes an electrode heat-
ing. The steam generator Condair Sigma is designed for SPA applications.
Steam distributor
Condensate hose with siphon
(if steam distributor is installed
above the device)
Steam hose
Water cup
Overow hose
Filling hose
Water supply hose
Inlet valve
Base tub
Drain valve
Steam cylinder
Electrodes
Level sensor
Control board
Power board
Unit switch
Main
contactor
Current sensor
Abb. 3: Functional diagram

Table of Contents

Related product manuals