EasyManua.ls Logo

CUMMINS QST30 - 7. Optional Enclosure Fuel Tank System; Fuel System Overview and Controls

CUMMINS QST30
183 pages
Print Icon
To Next Page IconTo Next Page
To Next Page IconTo Next Page
To Previous Page IconTo Previous Page
To Previous Page IconTo Previous Page
Loading...
7-1
Copyright 2017 Cummins Inc.
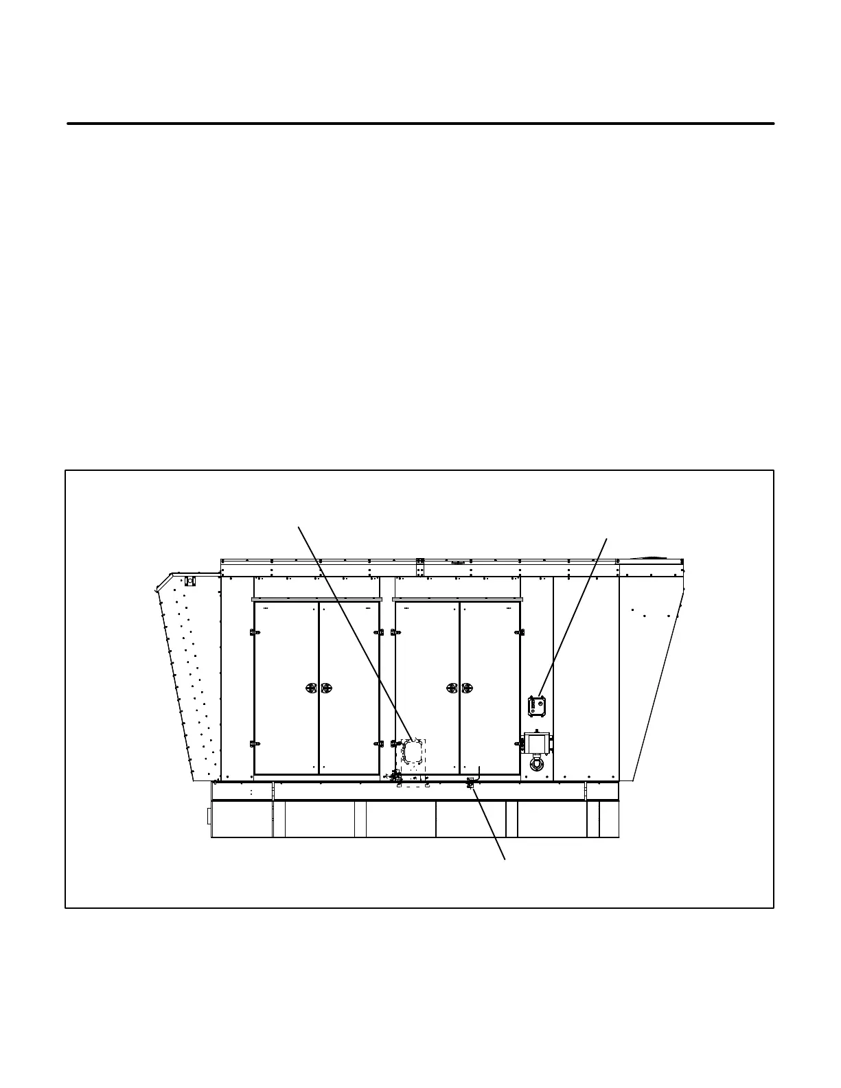
7. Optional Enclosure Fuel Tank System
GENERAL
This section describes the operation and testing of
the components of the optional fuel tank system
shown in Figure 7-1.
When a sub-base fuel tank is provided, a fuel trans-
fer pump with control and external or internal fuel
alarm panel are available as options.
WIRING CONNECTIONS
Fuel Transfer Control Customer Outputs
See Enclosure/Options Wiring Diagram in Section
8 for customer connections to remote annunciators.
PCC Customer Inputs
PCC Customer Fault Inputs 3 (Low Fuel) and 4
(Rupture Basin) are prewired to the sub-base fuel
tank when shipped from the factory.
The “Low Fuel” warning message, when displayed
by the PCC, indicates that the fuel level has
dropped below the low fuel level (approximately
62%).
The “Rupture Basin” warning message is used to in-
dicate that fuel is detected in the fuel tank basin.
EXTERNAL
FUEL ALARM
PANEL
FUEL TRANSFER
PUMP AND CONTROL
INTERNAL FUEL
ALARM PANEL
FIGURE 7-1. FUEL TANK SYSTEM OPTIONAL COMPONENTS

Table of Contents

Related product manuals