EasyManua.ls Logo

CVC 310 - Page 37

CVC 310
128 pages
Print Icon
To Next Page IconTo Next Page
To Next Page IconTo Next Page
To Previous Page IconTo Previous Page
To Previous Page IconTo Previous Page
Loading...
CVC TECHNOLOGIES, INC. CVC 310 OPERATION MANUAL
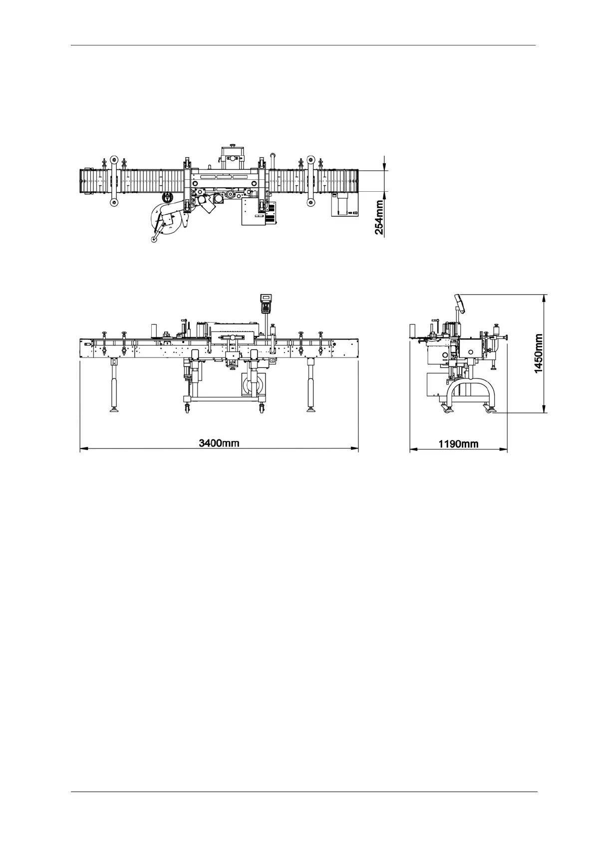
6.6.2 10” Conveyor Labeling Machine (Option)
Fi
g
6.6-2
6 - 10

Table of Contents

Related product manuals