EasyManua.ls Logo

Danfoss VLT AHF 005 - Page 113

Danfoss VLT AHF 005
156 pages
Print Icon
To Next Page IconTo Next Page
To Next Page IconTo Next Page
To Previous Page IconTo Previous Page
To Previous Page IconTo Previous Page
Loading...
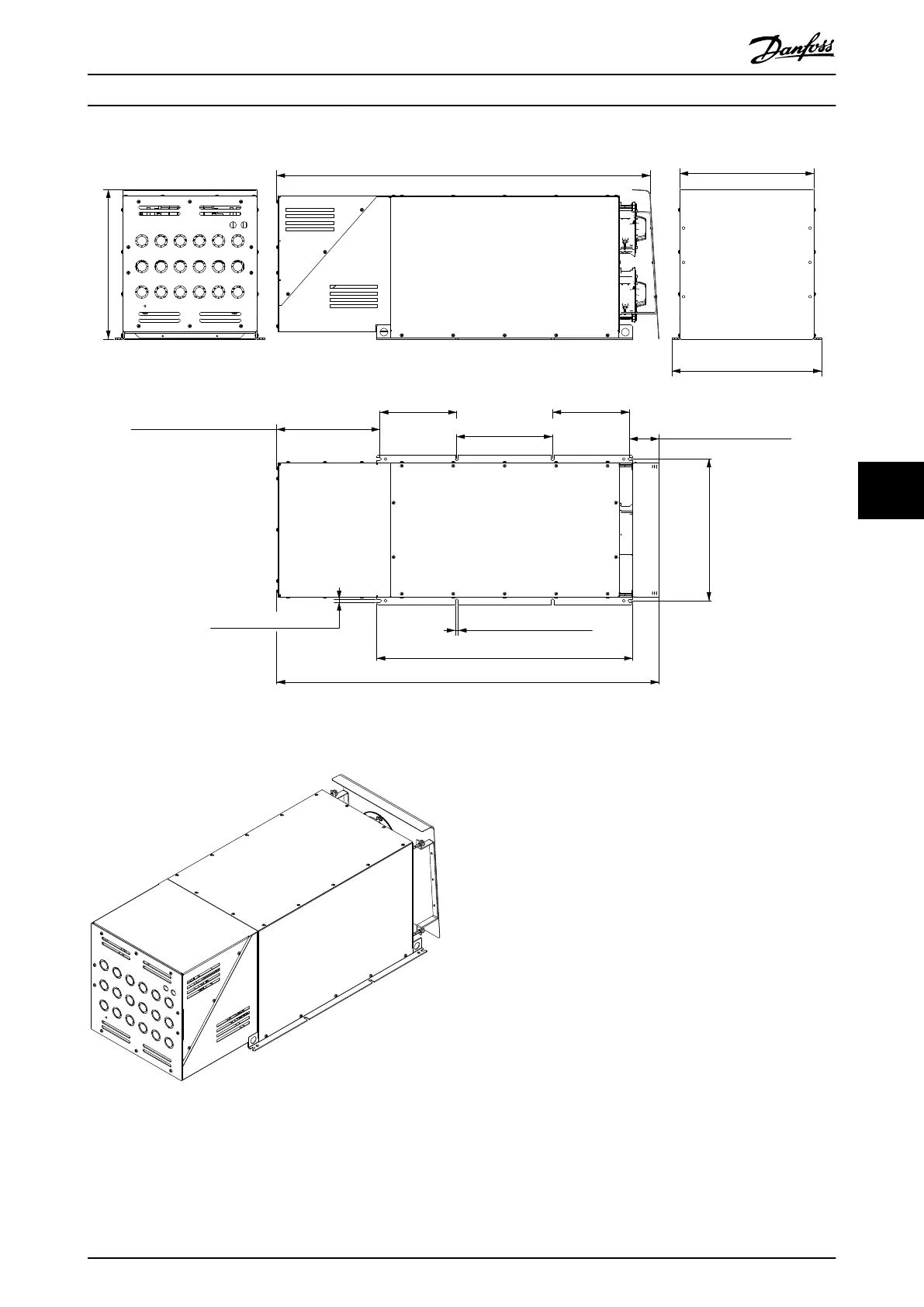
130BE519.10
1169 ±4.0 mm [46.0 ±0.16 in]
420.0 ±2.5 mm [16.5 ±0.1 in]
800.0 ±2.5 mm [31.5 ±0.1 in]
92.8 ±2.5 mm [3.7 ±0.1 in]
300.0 ±1.0 mm [11.8 ±0.04 in]
323.3 ±2.5 mm [12.7 ±0.1 in]
240.0 ±1.0 mm [9.4 ±0.04 in]240.0 ±1.0 mm [9.4 ±0.04 in]
9.0 ±1.0 mm [0.4 ±0.04 in]
9.0 ±1.0 mm [0.4 ±0.04 in]
1196 ±4.0 mm [47.1 ±0.16 in]
468.0 ±2.5 mm [18.4 ±0.1 in]
467.6 ±2.5 mm [18.4 ±0.1 in]
443.0 ± 2.5 mm [17.4 ± 0.10 in]
Illustration 7.107 X7 IP21 External Fan 2
130BE520.10
Illustration 7.108 X7 IP21 External Fan 2, 3D View
Specications Design Guide
MG80C502 Danfoss A/S © 10/2016 All rights reserved. 111
7 7

Table of Contents

Related product manuals