EasyManua.ls Logo

Danfoss VLT AHF 005 - Page 114

Danfoss VLT AHF 005
156 pages
Print Icon
To Next Page IconTo Next Page
To Next Page IconTo Next Page
To Previous Page IconTo Previous Page
To Previous Page IconTo Previous Page
Loading...
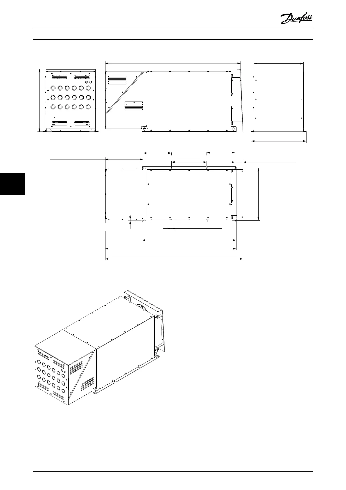
1151.5 ±4.0 mm [45.3 ±0.16 in]
421.0 ±2.5 mm [16.6 ±0.1 in]
800.0 ±2.5 mm [31.5 ±0.1 in]
68.7 ±2.5 mm [2.7 ±0.1 in]
300.0 ±1.0 mm [11.8 ±0.04 in]
323.3 ±2.5 mm [12.7 ±0.1 in]
240.0 ±1.0 mm [9.4 ±0.04 in]240.0 ±1.0 mm [9.4 ±0.04 in]
9.0 ±1.0 mm [0.4 ±0.04 in]
9.0 ± 1.0mm [0.4 ±0.04 in]
1172.1 ±4.0 mm [46.1 ±0.16 in]
1113.4 ±4.0 mm [43.8 ±0.16 in]
468.0 ±2.5 mm [18.4 ±0.1 in]
530.9 ±2.5 mm [20.9 ±0.1 in]
443.0 ±2.5 mm [17.4 ±0.1 in]
130BE521.10
Illustration 7.109 X8 IP21 Internal Fan 1
130BE520.10
Illustration 7.110 X8 IP21 Internal Fan 1, 3D View
Specications
VLT
®
Advanced Harmonic Filter AHF 005/AHF 010
112 Danfoss A/S © 10/2016 All rights reserved. MG80C502
77

Table of Contents

Related product manuals