EasyManua.ls Logo

Danfoss VLT AHF 005 - Page 115

Danfoss VLT AHF 005
156 pages
Print Icon
To Next Page IconTo Next Page
To Next Page IconTo Next Page
To Previous Page IconTo Previous Page
To Previous Page IconTo Previous Page
Loading...
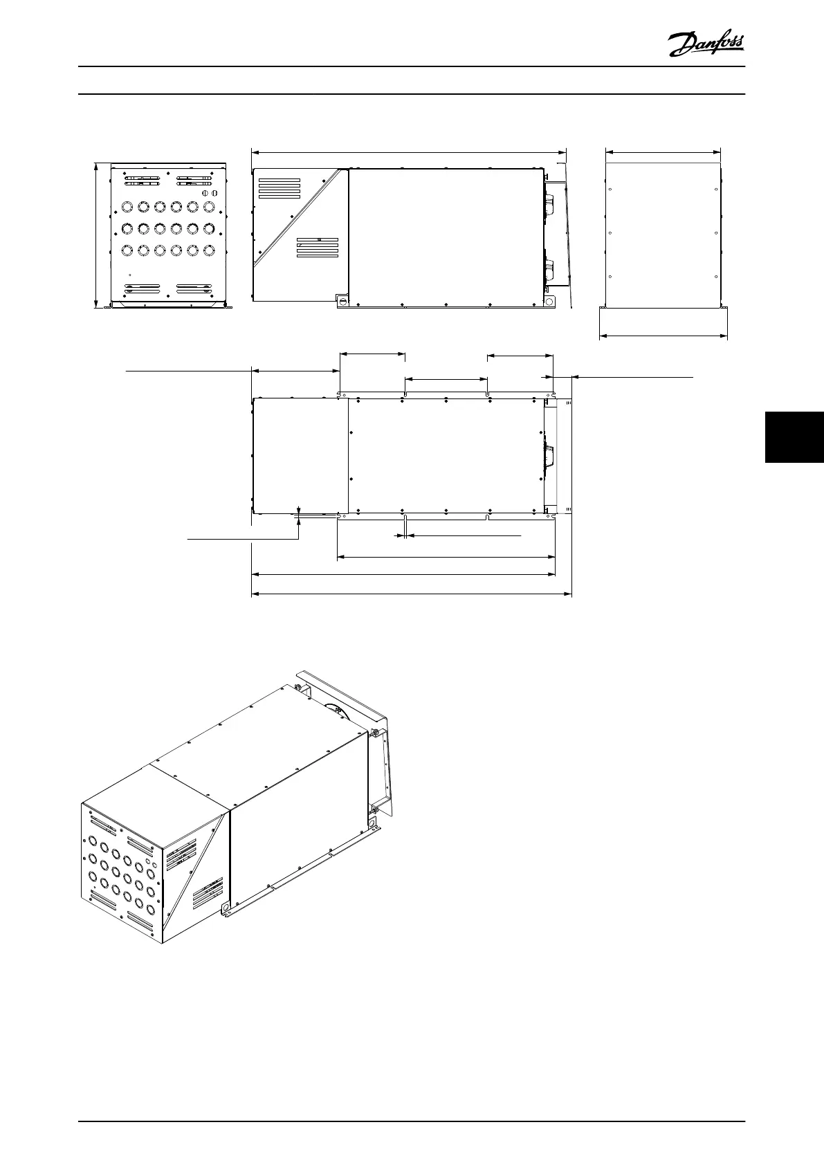
1151.5 ±2.5 mm [45.3 ±0.1 in]
421.0 ±2.5 mm [16.6 ±0.1 in]
800.0 ±2.5 mm [31.5 ±0.1 in]
68.7 ±2.5 mm [2.7 ±0.1 in]
300.0 ±1.0 mm [11.8 ±0.04 in]
323.3 ±2.5 mm [12.7 ±0.1 in]
240.0 ±1.0 mm [9.4 ±0.04 in]240.0 ±1.0 mm [9.4 ±0.04 in]
9.0 ±1.0 mm [0.4 ± 0.04 in]
9.0 ±1.0 mm [0.4 ±0.04 in]
1172.1 ±4.0 mm [46.1 ±0.16 in]
1113.4 ±4.0 mm [43.8 ±0.16 in]
468.0 ±2.5 mm [18.4 ±0.1 in]
530.9 ±2.5 mm [20.9 ±0.1 in]
130BE523.10
Illustration 7.111 X8 IP21 Internal Fan 2
130BE520.10
Illustration 7.112 X8 IP21 Internal Fan 2, 3D View
Specications Design Guide
MG80C502 Danfoss A/S © 10/2016 All rights reserved. 113
7 7

Table of Contents

Related product manuals