EasyManua.ls Logo

Danfoss VLT AHF 005 - Page 27

Danfoss VLT AHF 005
156 pages
Print Icon
To Next Page IconTo Next Page
To Next Page IconTo Next Page
To Previous Page IconTo Previous Page
To Previous Page IconTo Previous Page
Loading...
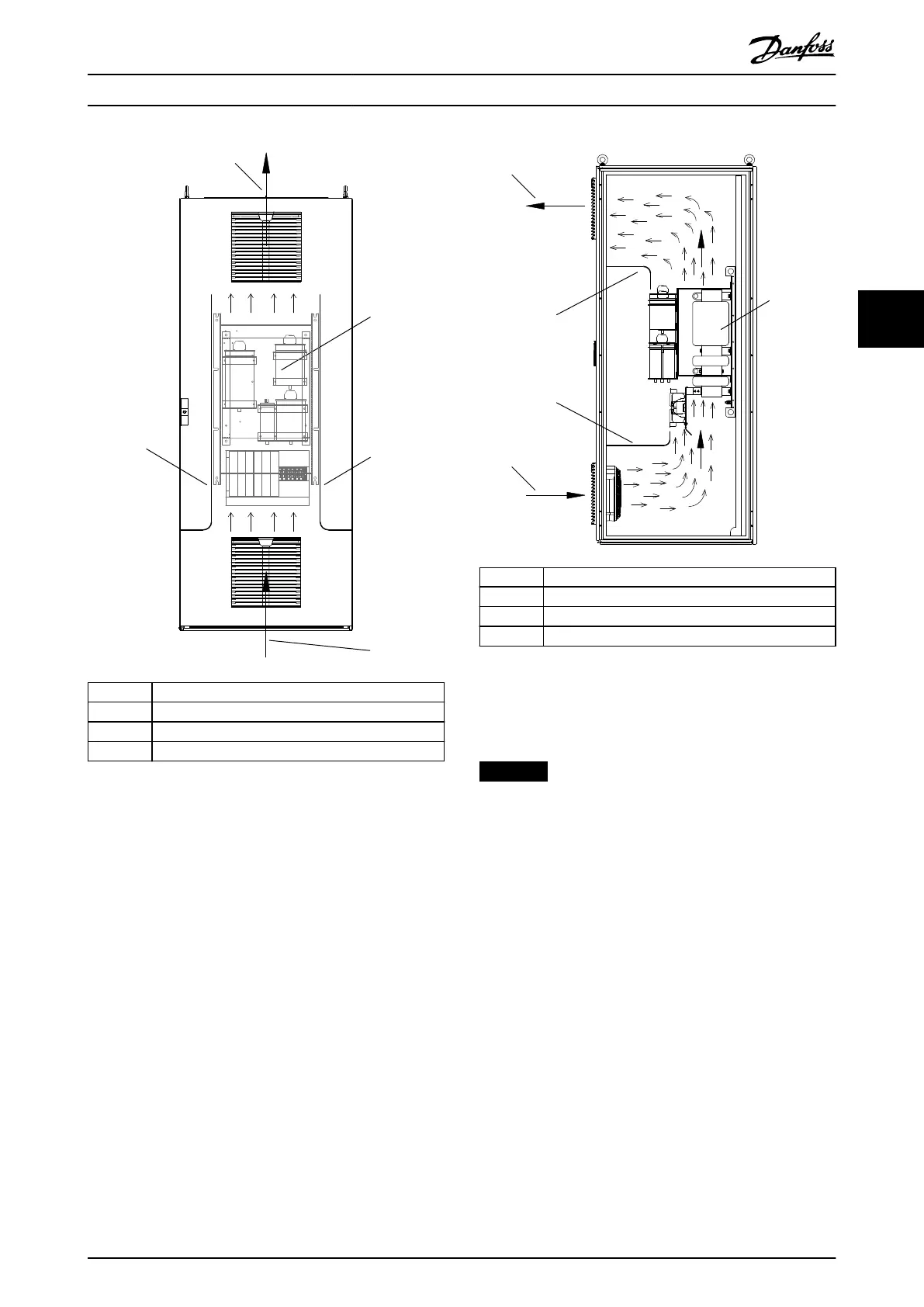
1 Outlet for outgoing airow
2 Inlet for ingoing airow
3 AHF lter
4 Air baes guiding the airow through the lter
Illustration 4.11 Correct Installation in Deep and/or Wide
Cabinets - Air Baes Force Airow Through the Filter - Front
View
130BE069.10
1
4
4
2
3
1 Outlet for outgoing airow
2 Inlet for ingoing airow
3 AHF lter
4 Air baes guiding the airow through the lter
Illustration 4.12 Correct Installation in Deep and/or Wide
Cabinets - Air Baes Force Airow Through the Filter - Side
View
NOTICE
POSSIBLE INSUFFICIENT AIRFLOW
If the thermal switch activates repeatedly in IP00 instal-
lations, it is probably caused by insucient airow
through the lter.
Evaluate the airow and the installation
conditions.
Make the required changes to provide proper
cooling.
For more information about overtemperature protection,
refer to chapter 4.2.3 Overtemperature Protection.
Requirements for Installati... Design Guide
MG80C502 Danfoss A/S © 10/2016 All rights reserved. 25
4 4

Table of Contents

Related product manuals